QQ登录

只需一步,快速开始

登录 | 注册 | 找回密码

三维网

 找回密码
 注册

QQ登录

只需一步,快速开始

展开

通知     

查看: 2076|回复: 4
收起左侧

[求助] 斜孔工装标注问题

[复制链接]
发表于 2011-1-10 09:36:40 | 显示全部楼层 |阅读模式 来自: 中国浙江金华

马上注册,结识高手,享用更多资源,轻松玩转三维网社区。

您需要 登录 才可以下载或查看,没有帐号?注册

x
本帖最后由 书米号 于 2011-1-10 09:45 编辑 2 h  m1 Q  U3 D8 p( K$ u$ y, h

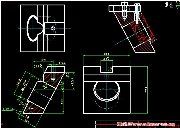
3 M+ z4 n2 C- l  c/ F 1.JPG 我这是一个钻斜孔的工装 现在标注是一个问题 这个孔标注貌似不好检 因为关系到一个基准的问题 所以请各位看图说话  谢谢啊~
发表于 2011-1-10 10:25:51 | 显示全部楼层 来自: 中国吉林长春
你做工装的话应该是数量不少,调试试钻几个孔,检测零件就行了。
7 S! P1 \! [; E# s看你工装的两部分用一个螺纹孔连接,不准也容易松,再加两个销子吧
发表于 2011-1-10 10:59:05 | 显示全部楼层 来自: 中国山西太原
1  此工装是用于在红色零件上钻一斜孔,红色零件需有定位和固定装置。, h" j3 h+ L& f8 g6 V4 U5 f7 U
2  钻模部分仅靠一个M10的螺钉定位和固定是不够的,右上图中上部是靠槽两边前后定位,但槽的左右方向就无法定位,应设卡台或定位销定位。( {, V. W  ?& e, @7 h+ V3 w+ o
3  图中斜孔标注是可以的,但中心线与基准底面需标注角度和角度公差。
 楼主| 发表于 2011-1-10 12:49:45 | 显示全部楼层 来自: 中国浙江金华
3# gaoyns
8 |# ^/ a! r% ~谢谢这位高人,此工装确实是钻红色所示的工件,因为是在摇臂钻上的而且只是直径3的油孔,工件放入套筒后就无需固定,螺栓起到左右固定和调整用,我想如此小的孔,10的螺栓应该足够固定;另外的就是以斜孔中心为基准可否加工另外尺寸?谢谢
发表于 2011-1-10 17:33:24 | 显示全部楼层 来自: 中国山西晋中
本帖最后由 gaoyns 于 2011-1-10 17:34 编辑
6 R$ W) J7 P7 X4 z! m9 Z( P- Z, \, q7 g# v
4# 书米号 $ N( T1 E! K+ `3 z
此夹具是以底面为基准,标注斜孔中心线的角度及公差,斜孔的上端面也应标注与基准底的角度(28°)及公差,两者都与基准底面发生关系,也就保证了斜孔上端面与斜孔中心线垂直度要求。这样可避免累积测量误差,同时也便于测量。此工装主要是钻油孔,其实公差要求不必太高。
发表回复
您需要登录后才可以回帖 登录 | 注册

本版积分规则


Licensed Copyright © 2016-2020 http://www.3dportal.cn/ All Rights Reserved 京 ICP备13008828号

小黑屋|手机版|Archiver|三维网 ( 京ICP备2023026364号-1 )

快速回复 返回顶部 返回列表