QQ登录

只需一步,快速开始

登录 | 注册 | 找回密码

三维网

 找回密码
 注册

QQ登录

只需一步,快速开始

展开

通知     

全站
7天前
查看: 2405|回复: 11
收起左侧

[已解决] 两张国外的图纸帮忙出个模型

[复制链接]
发表于 2011-1-11 17:54:04 | 显示全部楼层 |阅读模式 来自: 中国河北秦皇岛

马上注册,结识高手,享用更多资源,轻松玩转三维网社区。

您需要 登录 才可以下载或查看,没有帐号?注册

x
本帖最后由 bwg998 于 2011-1-12 12:41 编辑 ! _# S0 j4 j& N

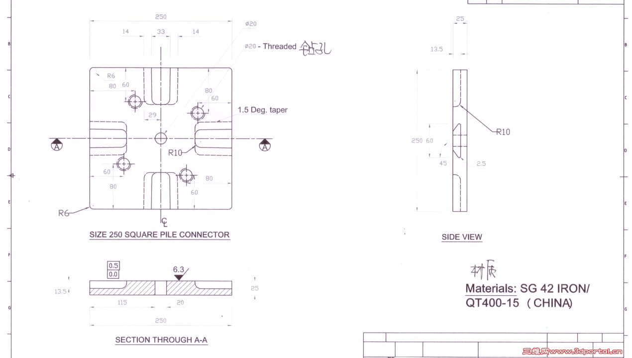
* d2 B: P$ u- I' {1 U' R 1.jpg 2.jpg 这两张图纸我怎么呀画不出来呀   大家帮忙看看吧
发表于 2011-1-11 18:58:33 | 显示全部楼层 来自: 中国山东临沂
这个可以吗??

零件1.zip

198.54 KB, 下载次数: 39

发表于 2011-1-11 19:00:00 | 显示全部楼层 来自: 中国福建厦门
没时间出图,不过帮楼主指出一下,那个threaded就攻牙,不是钻孔
 楼主| 发表于 2011-1-11 19:46:30 | 显示全部楼层 来自: 中国河北秦皇岛
谢谢二位了   现在在家 没有装 SW  马上装一个
发表于 2011-1-11 20:00:06 | 显示全部楼层 来自: 中国山东青岛
本帖最后由 bluet 于 2011-1-11 20:28 编辑
7 W4 L/ g0 D9 K7 T0 X  |6 }# K) N/ B, f, v
是这个样子滴么?2 P9 O% N2 ~# L) n; d& V& m, q
- r; A/ G% `% }1 p

+ U) N3 y$ l: ^- L1.5° 的衰减角没画出来,明天再看看吧
1.JPG
2.JPG
发表于 2011-1-11 22:49:32 | 显示全部楼层 来自: 中国江苏镇江
明天回办公室画,今天太晚了
 楼主| 发表于 2011-1-12 07:59:36 | 显示全部楼层 来自: 中国河北秦皇岛
谢谢各位了
 楼主| 发表于 2011-1-12 09:10:02 | 显示全部楼层 来自: 中国河北秦皇岛
我还是无法 完全理解这两张图中  是不是图纸有问题 还是我没看懂
发表于 2011-1-12 10:21:20 | 显示全部楼层 来自: 中国广东广州
本帖最后由 mc_cloud 于 2011-1-12 11:25 编辑 % e) x; h$ e; w1 J- @. [
% Y4 T# u, G+ I* l  \4 G
是图纸有问题,第一张图纸中间标注R10,在第二张图纸却标注R5。
6 F# h  y. D) N4 _
) I. i; t& e: \2 X! _5 E& M附件可用SW2010打开。

外国零件1.zip

309.87 KB, 下载次数: 18

 楼主| 发表于 2011-1-12 12:40:27 | 显示全部楼层 来自: 中国河北秦皇岛
这样的零件好加工吗
发表于 2011-1-12 14:01:51 | 显示全部楼层 来自: 中国广东韶关
看起来不是很难!
发表于 2011-1-12 14:20:53 | 显示全部楼层 来自: 中国北京
这么简单的图还要求助吗?
发表回复
您需要登录后才可以回帖 登录 | 注册

本版积分规则


Licensed Copyright © 2016-2020 http://www.3dportal.cn/ All Rights Reserved 京 ICP备13008828号

小黑屋|手机版|Archiver|三维网 ( 京ICP备2023026364号-1 )

快速回复 返回顶部 返回列表