QQ登录

只需一步,快速开始

登录 | 注册 | 找回密码

三维网

 找回密码
 注册

QQ登录

只需一步,快速开始

展开

通知     

全站
9天前
查看: 1661|回复: 6
收起左侧

[求助] 看看这个工件怎么确定工件原点?

[复制链接]
发表于 2011-1-29 13:57:04 | 显示全部楼层 |阅读模式 来自: 中国重庆

马上注册,结识高手,享用更多资源,轻松玩转三维网社区。

您需要 登录 才可以下载或查看,没有帐号?注册

x
本帖最后由 wcb114 于 2011-1-29 13:58 编辑 : S' |$ A& ]$ T; [& W3 }  [( g) i
4 d9 f5 {! [. U
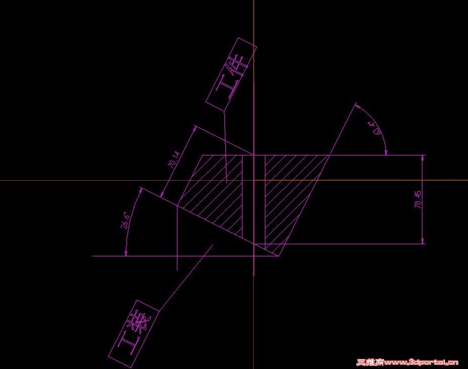
各位大虾,这个怎么确定工件原点,有剖线的是工件,,加工一个通孔,,如图所示

示意图

示意图

旋转后加工示意图

旋转后加工示意图
发表于 2011-1-31 21:19:16 | 显示全部楼层 来自: 中国黑龙江哈尔滨
看情况是个批量件,可在工装上计算出一个相对此孔的基准位置。" w- e; m5 r9 d; G4 t! P8 @; @
只要工装没有动,每次更换工件就不用重新找正了。
4 i& C) O9 b( o5 U只要夹紧开程序就行。
发表于 2011-2-1 14:46:29 | 显示全部楼层 来自: 中国江苏徐州
看图楼主是有工装的,你在设计时就应计算好孔在工装上的位置,加工时找正工装就行了。
发表于 2011-2-4 09:07:12 | 显示全部楼层 来自: 中国江苏徐州
设计夹具是一般应以该零件的两个直角边交点为基准点,设计和加工都比较方便。

评分

参与人数 1三维币 +7 收起 理由
xl.zhuo + 7 技术讨论2+节日奖励5

查看全部评分

发表于 2011-2-5 14:19:25 | 显示全部楼层 来自: 中国江苏徐州
按零件的标注情况,夹具设计时应以侧面和底面为定位基准。

评分

参与人数 1三维币 +7 收起 理由
xl.zhuo + 7 技术讨论2+节日奖励5

查看全部评分

发表于 2011-2-7 03:14:05 | 显示全部楼层 来自: 中国河北石家庄
把尺寸折算到上平面上

评分

参与人数 1三维币 +7 收起 理由
xl.zhuo + 7 技术讨论2+节日奖励5

查看全部评分

发表于 2011-2-7 11:26:06 | 显示全部楼层 来自: 中国山东烟台
把定位基准与测量基准重合就行了
发表回复
您需要登录后才可以回帖 登录 | 注册

本版积分规则


Licensed Copyright © 2016-2020 http://www.3dportal.cn/ All Rights Reserved 京 ICP备13008828号

小黑屋|手机版|Archiver|三维网 ( 京ICP备2023026364号-1 )

快速回复 返回顶部 返回列表