QQ登录

只需一步,快速开始

登录 | 注册 | 找回密码

三维网

 找回密码
 注册

QQ登录

只需一步,快速开始

展开

通知     

查看: 1845|回复: 17
收起左侧

[求助] 液压振颤怎么解决?

[复制链接]
发表于 2011-2-14 22:58:01 | 显示全部楼层 |阅读模式 来自: 中国河北张家口

马上注册,结识高手,享用更多资源,轻松玩转三维网社区。

您需要 登录 才可以下载或查看,没有帐号?注册

x
本帖最后由 ygzygz775 于 2011-2-14 23:09 编辑 # I7 M6 h3 n# p  U- l

) K% n1 I! a5 J5 }  n8 S. r, U Doc1.rar (44.45 KB, 下载次数: 23)
发表于 2011-2-15 08:31:25 | 显示全部楼层 来自: 中国江苏徐州
检查一下管路是否有过长的地方,尽量短一些,减少冲击和节流现象。
发表于 2011-2-15 09:19:29 | 显示全部楼层 来自: 中国辽宁大连
速度变化大不大?工作压力多大?图看的不是很清楚,两支缸是同时动作吗?2#说的有理,管路宜短不宜长
发表于 2011-2-15 14:53:28 | 显示全部楼层 来自: 中国四川
若我们说错的话,你用的应该是恒压变量泵+蓄能器组吧?# ~! f+ l  q7 v. V) D
1,检查蓄能器压力是否正常。
( B7 E3 E; X; |6 _2,管路过长产生节流也有可能。
& @5 D4 d# T$ T+ b; }3 E9 B3,泵的变量机构卡滞或流量不足
 楼主| 发表于 2011-2-26 18:37:01 | 显示全部楼层 来自: 中国河北张家口
因为有斜坡,速度有一定变化,管路是长了一些,和另一个冷床设计的一样,那一个没有这种现象
发表于 2011-2-28 10:41:13 | 显示全部楼层 来自: 中国辽宁大连
判断主阀没有问题的情况下,液压锁肯定是有问题了,也可以把液压锁的泄油单独接出来试一下
 楼主| 发表于 2011-2-28 22:38:40 | 显示全部楼层 来自: 中国河北张家口
把液压锁的泄油怎么单独接出来试啊?液压锁是插装阀
 楼主| 发表于 2011-2-28 22:39:23 | 显示全部楼层 来自: 中国河北张家口
我用的是恒压变量泵+蓄能器组
发表于 2011-3-1 08:38:58 | 显示全部楼层 来自: 中国辽宁大连
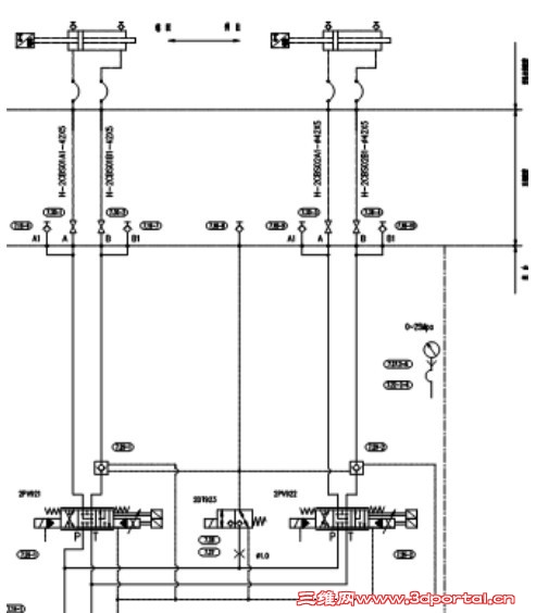
你的液压锁是插装式的??你画那个图形谁能理解成插装式的,太简易了吧,能提供一下型号吗?LZ的问题是液压震颤?是指油缸在走形过程中出现抖动,走行不平稳吧?低速情况下也是如此?如果就是压力波动而不影响负载的运动我觉得也是正常的
 楼主| 发表于 2011-3-2 21:22:07 | 显示全部楼层 来自: 中国河北张家口
我说的就是指油缸在走形过程中出现抖动,走行不平稳,带着冷床都响
 楼主| 发表于 2011-3-2 21:41:00 | 显示全部楼层 来自: 中国河北张家口
我调了一下比例阀的开口度,也不有多大效果
发表于 2011-3-2 23:04:33 | 显示全部楼层 来自: 中国辽宁鞍山
看看阀的输入信号是否平稳
发表于 2011-3-3 08:31:48 | 显示全部楼层 来自: 中国江苏南通
比例阀是否工作正常?3 A9 _( u3 v. O- w: t8 t
有调零过吗?
. ^1 p+ _' t7 O2 J' \' k* s+ S( S, u+ u3 y8 D% A: Q4 l
图纸不清晰
33.jpg
 楼主| 发表于 2011-3-5 03:30:05 | 显示全部楼层 来自: 中国河北张家口
电气的人员说输出的是直流信号,不会有问题的
发表于 2011-3-5 10:01:21 | 显示全部楼层 来自: 中国江苏徐州
抖动具体是什么情况,是两个方向都抖还是只右移时抖?
发表于 2011-3-5 12:28:58 | 显示全部楼层 来自: 中国浙江宁波
在油缸附近加蓄能器可以啦
发表于 2011-3-7 14:38:14 | 显示全部楼层 来自: 中国浙江杭州
应当是液压锁的问题,! ]3 x( _/ i2 [" L1 J% r; z9 R2 S" ^$ y
控制不稳
 楼主| 发表于 2011-3-7 23:51:31 | 显示全部楼层 来自: 中国河北张家口
是液压锁的问题又怎么解决呢?
发表回复
您需要登录后才可以回帖 登录 | 注册

本版积分规则


Licensed Copyright © 2016-2020 http://www.3dportal.cn/ All Rights Reserved 京 ICP备13008828号

小黑屋|手机版|Archiver|三维网 ( 京ICP备2023026364号-1 )

快速回复 返回顶部 返回列表