QQ登录

只需一步,快速开始

登录 | 注册 | 找回密码

三维网

 找回密码
 注册

QQ登录

只需一步,快速开始

展开

通知     

查看: 1758|回复: 3
收起左侧

[已解决] 看下这个锻件

[复制链接]
发表于 2011-2-22 19:59:27 | 显示全部楼层 |阅读模式 来自: 中国山东青岛

马上注册,结识高手,享用更多资源,轻松玩转三维网社区。

您需要 登录 才可以下载或查看,没有帐号?注册

x
本帖最后由 Q初行者Q 于 2011-2-23 18:06 编辑
* y9 D& e" d+ E- F1 r, i
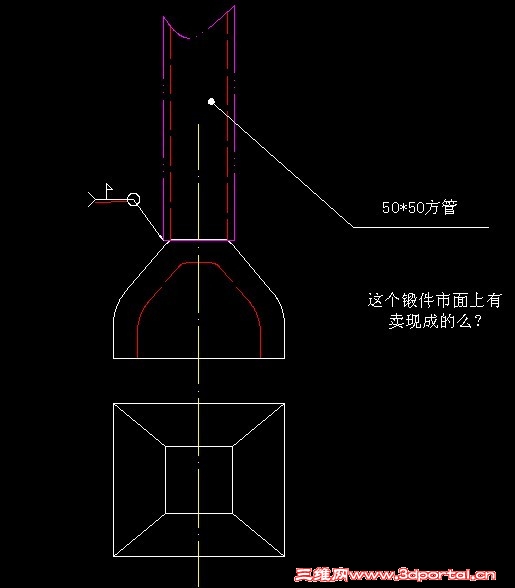
* G4 c# `( e9 S5 S6 ]这个件市面上有卖现成的么? 量不是很大  开模的话 成本比较高
$ Z+ U5 v- c7 t0 T$ X, K 未命名.jpg
发表于 2011-2-23 09:59:51 | 显示全部楼层 来自: 中国山西太原
现成的可能没有,可订制。上面的方管可用型钢锯切,下面的空心平截棱锥可锻制,形状简单,如果本单位不能加工锻模可外协加工,费用不会很高。

评分

参与人数 1三维币 +2 收起 理由
虎强 + 2 技术讨论

查看全部评分

 楼主| 发表于 2011-2-23 18:06:09 | 显示全部楼层 来自: 中国山东青岛
恩  谢谢了
发表于 2011-3-16 09:41:38 | 显示全部楼层 来自: 中国河北石家庄
做什么用的呀??一定要锻件吗?还是焊接比较快 呵呵
发表回复
您需要登录后才可以回帖 登录 | 注册

本版积分规则


Licensed Copyright © 2016-2020 http://www.3dportal.cn/ All Rights Reserved 京 ICP备13008828号

小黑屋|手机版|Archiver|三维网 ( 京ICP备2023026364号-1 )

快速回复 返回顶部 返回列表