QQ登录

只需一步,快速开始

登录 | 注册 | 找回密码

三维网

 找回密码
 注册

QQ登录

只需一步,快速开始

展开

通知     

查看: 2062|回复: 18
收起左侧

[求助] 支承辊道无法定位???

[复制链接]
发表于 2011-2-22 22:20:59 | 显示全部楼层 |阅读模式 来自: 中国江苏无锡

马上注册,结识高手,享用更多资源,轻松玩转三维网社区。

您需要 登录 才可以下载或查看,没有帐号?注册

x
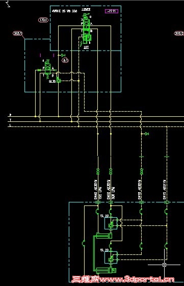
公司一支撑辊道,2侧通过油缸带动机构上升,升降辊道。该系统阀架布置在-7米处,阀架距离油缸大概有10米左右。采用比例阀控制,要求在保持在要求的位置。现在出现当无杆腔进油时,辊道上升后,到高位时往下掉大概100MM后锁住。我认为是比例阀中位机能选择错误,液控单向阀是外控外泄的,因为管路较长,在关闭的瞬间,油液通过中位流向T.请教大家:1.该问题是由于何种原因所致?2.有没有什么样的快速解决方法?现在正在调试,很急,期望能得到各位的帮助,谢谢!

支撑辊道液压原理图

支撑辊道液压原理图
发表于 2011-2-23 08:18:03 | 显示全部楼层 来自: 中国河南新乡
刚设计的系统还是改造的系统?之前工作正常嘛?
 楼主| 发表于 2011-2-23 20:18:34 | 显示全部楼层 来自: 中国江苏无锡
老外提供的基本设计图纸。国内转化制造的
 楼主| 发表于 2011-2-23 20:19:55 | 显示全部楼层 来自: 中国江苏无锡
大家帮帮忙啊
发表于 2011-2-23 22:48:48 | 显示全部楼层 来自: 中国甘肃嘉峪关
很感兴趣,楼主有么有清晰的系统图dwg,这个jpg的看着拖动不便啊
 楼主| 发表于 2011-2-26 19:32:41 | 显示全部楼层 来自: 中国江苏无锡
有的; S# V1 E; h0 `/ R8 e5 Y
但是不知道怎么上传DWG文件
发表于 2011-2-27 08:23:15 | 显示全部楼层 来自: 中国江苏南通
可以上传来看看。。9 I1 E" w5 ]& L9 l4 o5 v
" |& \& Z8 \3 ~7 r: o6 r6 x- h
点附件上传即可
发表于 2011-2-27 14:20:54 | 显示全部楼层 来自: 中国辽宁本溪
图纸看不清,也没仔细看,希望看看DWG ,我觉得和比例阀没有任何关系,就是液控单向阀(或平衡阀)有问题,是阀自身的问题。
 楼主| 发表于 2011-2-28 23:09:41 | 显示全部楼层 来自: 中国江苏无锡
谢谢大家帮忙?很急,在线等解决方法!!!

1.rar

143.74 KB, 下载次数: 13

摆动辊道升降原理图

 楼主| 发表于 2011-3-4 20:55:20 | 显示全部楼层 来自: 中国江苏无锡
有人帮忙吗?如何解决?谢谢了
发表于 2011-3-4 21:33:18 | 显示全部楼层 来自: 中国福建三明
10# zjdlove23 没流量,想看看。能不能发我邮箱;468233370@qq.com
发表于 2011-3-4 22:31:36 | 显示全部楼层 来自: 中国辽宁鞍山
看换向阀的节流阀全部开到最大,外控回油单独接回油别接回油过滤器,液控单向阀的开启压力大的.
 楼主| 发表于 2011-3-5 19:25:36 | 显示全部楼层 来自: 中国江苏无锡
这是个比例阀控制系统
 楼主| 发表于 2011-3-7 20:51:59 | 显示全部楼层 来自: 中国江苏无锡
有人帮忙吗?
发表于 2011-3-8 07:08:03 | 显示全部楼层 来自: 中国四川乐山
T管上有没有背压阀?你测一下3.220压力多少。
发表于 2011-3-9 10:37:54 | 显示全部楼层 来自: 美国
比例阀的中位就算是Y型也不可能如你所想大量油从中位走的.同是Y型,但是比例阀和普通换向阀是不一样的.  q4 O9 }3 C9 p' z" P5 h# {" a
二,只要是控制系统(区别与传动系统),尤其是阀控系统,控制件到执行元件管路长就不行,我举例:我NG10的阀(如PQ)到油缸(大概5米左右,不到),停止位置要误差3,4毫米(小油缸).如果你程序里可以做出和时间相关的图,可以很轻易得出响应曲线.
5 b5 v: J6 L4 Z! \. E# c如上面兄弟所讲,先看看这个状态的时候320或319的压力情况.
, h8 j3 L- }0 e' O3 v  K( w另外你怀疑阀机能问题,那么这就是没有验证的系统,那么这图纸在国外图纸的基础上修改了什么?
 楼主| 发表于 2011-3-9 20:37:15 | 显示全部楼层 来自: 中国江苏无锡
这图纸国内只是根据原理图直接转化,并没有做任何修改。
发表于 2011-3-10 08:12:01 | 显示全部楼层 来自: 美国
就是说阀选型是不同的,别的东西一样?
 楼主| 发表于 2011-3-10 20:37:53 | 显示全部楼层 来自: 中国江苏无锡
按照图纸要求选型的啊,通径,中位机能等。谢谢您的帮忙。请问有好的解决方法吗?
发表回复
您需要登录后才可以回帖 登录 | 注册

本版积分规则


Licensed Copyright © 2016-2020 http://www.3dportal.cn/ All Rights Reserved 京 ICP备13008828号

小黑屋|手机版|Archiver|三维网 ( 京ICP备2023026364号-1 )

快速回复 返回顶部 返回列表