QQ登录

只需一步,快速开始

登录 | 注册 | 找回密码

三维网

 找回密码
 注册

QQ登录

只需一步,快速开始

展开

通知     

查看: 2925|回复: 6
收起左侧

[求助] 圆锥滚子轴承背靠背安装问题

[复制链接]
发表于 2011-3-4 23:44:30 | 显示全部楼层 |阅读模式 来自: 中国陕西

马上注册,结识高手,享用更多资源,轻松玩转三维网社区。

您需要 登录 才可以下载或查看,没有帐号?注册

x
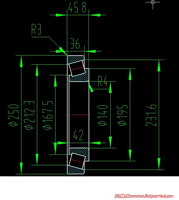
圆锥滚子轴承背靠背安装,中间是否要加垫片?如果要加的话,30228需要加多厚啊?
发表于 2011-3-5 04:38:57 | 显示全部楼层 来自: 中国江苏南京
本帖最后由 cayuer 于 2011-3-5 04:58 编辑 ) q# H+ S7 x  L
$ \! p7 B7 k0 N) Z8 u, i! V
自己算吧 应该加2个隔圈 内隔圈和外隔圈 实际上加垫起不到什么作用 个人认为是为了维修便于装卸
; Q4 v& r3 e5 E 如果两个轴承并在一起 因为轴承一般为过盈配合 一个轴承质量出现问题 就不好办了 拆卸起来比较费事 有可能损坏零件 : q! ?1 e9 u; M) j% C, `5 j3 y' U
我想这个你要看应用在什么场合和范围 还有其他一些影响到的因素
未命名.JPG
发表于 2011-3-5 07:18:12 | 显示全部楼层 来自: 中国辽宁大连
自己算吧 应该加2个隔圈 内隔圈和外隔圈 实际上加垫起不到什么作用 个人认为是为了维修便于装卸
3 T! v9 n0 U% N0 O0 a' H* N8 }如果两个轴承并在一起 因为轴承一般为过盈配合 一个轴承质量出现问题 就不好办了 拆卸起来比较费事 有可 ...
2 n3 X' g; {0 |7 B3 ocayuer 发表于 2011-3-5 04:38 http://www.3dportal.cn/discuz/images/common/back.gif
, m0 i: f8 B  K, E" |

/ A  `* I* ^' u& P7 Q隔圈起调整游隙的作用。
2 f8 @- |& n  E5 J至于LZ想知道的隔圈宽度,要根据实际情况而定。SKF的一个标准背靠背结构的装配高是106,如系此标准,可据此装配高度推算出内、外隔圈的宽度尺寸。
发表于 2011-3-5 08:45:55 | 显示全部楼层 来自: 中国浙江杭州
需要加垫圈,二且必须内外隔圈分开,一则是调整间隙所需,另外一般圆锥滚子轴承保持架会高出轴承端面,加垫圈可以避免干涉。
发表于 2011-3-6 09:30:57 | 显示全部楼层 来自: 中国江苏南京
3# manchang1973 + \9 ?9 L/ n# g; @7 b1 O4 T9 b' G
不错 学到了点 我的观点是自己在维修中体会的
 楼主| 发表于 2011-3-9 16:25:53 | 显示全部楼层 来自: 中国陕西渭南
谢谢各位大师,我加上隔圈了。
头像被屏蔽
发表于 2011-3-11 09:09:42 | 显示全部楼层 来自: 中国广东深圳
提示: 作者被禁止或删除 内容自动屏蔽
发表回复
您需要登录后才可以回帖 登录 | 注册

本版积分规则


Licensed Copyright © 2016-2020 http://www.3dportal.cn/ All Rights Reserved 京 ICP备13008828号

小黑屋|手机版|Archiver|三维网 ( 京ICP备2023026364号-1 )

快速回复 返回顶部 返回列表