QQ登录

只需一步,快速开始

登录 | 注册 | 找回密码

三维网

 找回密码
 注册

QQ登录

只需一步,快速开始

展开

通知     

全站
7天前
查看: 2237|回复: 4
收起左侧

请帮我审图

[复制链接]
发表于 2006-2-11 14:48:38 | 显示全部楼层 |阅读模式 来自: 中国河北石家庄

马上注册,结识高手,享用更多资源,轻松玩转三维网社区。

您需要 登录 才可以下载或查看,没有帐号?注册

x
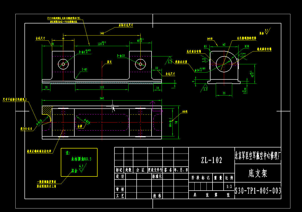
这里是铸造件的图,肯定有很多的地主不对!请在这里的朋友有空帮我审一下,使我下一次不在犯同样的错误
  v5 x" d: H3 x# a谢绝

005-003底支架.rar

43.88 KB, 下载次数: 71

发表于 2006-2-11 21:41:43 | 显示全部楼层 来自: 中国重庆
几点建议仅供参考。3 Z, z; s9 R+ r
对“底支架”:7 |; u8 n! M# X
1、图形中虚线应尽量避免,尺寸不要标在虚线上。粗糙度标注应尽量与相关的尺寸标注放在一起。如2×Φ34+0.025的标注。
7 s: q( G0 `8 ]) z+ k2、尺寸120的两侧面,无加工粗糙度要求不妥。建议两侧各加出一个小台阶圆台面。
5 W: H) K+ Z5 ~. C5 N3、尺寸62应加注公差,而尺寸60不应加注公差。
  s4 L! J: {& q* H对“上支架”:& j" U3 Y: O  \. K4 n
1、尺寸58应添公差要求和加工粗糙度要求。
9 L  `9 z1 e0 U" c4 H, q1 r9 _' N2、15°两内侧斜面单靠尺寸80不能控制大端开口尺寸93, 应添相关尺寸。0 M% c! O$ E1 \; }: h6 g- i  z
3、A-A图中的上方一个Φ20在俯视图上未见体现; 左方的一个Φ20不存在,应标为直线尺寸20。
9 h8 q* k+ w0 W# W& e) q4、主视图上的Φ8应改为R4,深4。
$ M4 |" ?; w6 [3 f* q5、B向Φ38指什么?
4 I6 s% z3 ?+ d1 M3 V% w0 Z0 Z6、Φ34是通孔,其孔内部分不应画有孔Φ10的虚线。
发表于 2006-2-13 08:22:56 | 显示全部楼层 来自: 中国江苏南通
1、图形中虚线应尽量避免,尺寸不要标在虚线上。粗糙度标注应尽量与相关的尺寸标注放在一起。如2×Φ34+0.025的标注。# S; s/ D0 T' E) q
2、尺寸120的两侧面,无加工粗糙度要求不妥。建议两侧各加出一个小台阶圆台面。
% l  x3 c; C9 `- H3、尺寸62应加注公差,而尺寸60不应加注公差。
6 M% D0 j( \) x5 ]; ~楼上的说的很有道理啊.5 G  u. v# ]/ P% e3 h
学习,进步
发表于 2006-2-13 17:26:16 | 显示全部楼层 来自: 中国浙江金华
我来加几点:8 v; T! n) D2 F" I1 G9 ^
底支架:, S7 h( T7 r* n# u/ i% A
1、主视图对称中心线,上面应高出轮廓,下面多出轮廓太多,它已经和尺寸115、260重合了。
$ z* f' A- y. ?  f- p2、尺寸46、120、和48应平齐。
发表于 2006-2-23 23:33:38 | 显示全部楼层 来自: 中国湖北十堰
抽时间看了一下,提出几点意见。不对之处请凉解。
. L  g9 C- d5 ~8 i+ p9 W
8 I, J$ Z6 G5 \5 d& X8 }: }8 q[ 本帖最后由 zth 于 2006-2-23 23:47 编辑 ]

上支架

上支架

底支加

底支加

005支架.rar

52.05 KB, 下载次数: 18

原文件

发表回复
您需要登录后才可以回帖 登录 | 注册

本版积分规则


Licensed Copyright © 2016-2020 http://www.3dportal.cn/ All Rights Reserved 京 ICP备13008828号

小黑屋|手机版|Archiver|三维网 ( 京ICP备2023026364号-1 )

快速回复 返回顶部 返回列表