QQ登录

只需一步,快速开始

登录 | 注册 | 找回密码

三维网

 找回密码
 注册

QQ登录

只需一步,快速开始

展开

通知     

全站
8天前
查看: 2424|回复: 22
收起左侧

[已解决] 关于装配体的明细表

[复制链接]
发表于 2011-4-6 10:47:45 | 显示全部楼层 |阅读模式 来自: 中国浙江宁波

马上注册,结识高手,享用更多资源,轻松玩转三维网社区。

您需要 登录 才可以下载或查看,没有帐号?注册

x
你们好,在做装配图时,由于零件设计次序,默认的零件序号我通过自定义属性,把零件序号在图形的标准上改了(为了序号从下到上排列),但是明细表上的序号及名称,不会相应改,怎么办。请高手批点
发表于 2011-4-6 11:32:05 | 显示全部楼层 来自: 中国天津
本帖最后由 oneteng 于 2011-4-6 11:47 编辑 8 U: d8 e5 B; K, R' M5 V1 }
6 v3 W& B; }% {4 Q1 A8 P# k
改得方法不对。先点一下图上要修改的零件号,再在左边下拉单中选择要使用的“号”就可以了。
零件号.jpg

评分

参与人数 1三维币 +2 收起 理由
chenjun520601 + 2 技术讨论

查看全部评分

 楼主| 发表于 2011-4-6 13:20:16 | 显示全部楼层 来自: 中国浙江宁波
楼上,好像改不了
发表于 2011-4-6 22:04:35 | 显示全部楼层 来自: 日本
 楼主| 发表于 2011-4-7 09:56:45 | 显示全部楼层 来自: 中国浙江宁波
我按楼上的方法一一做下来,还是改不过项目号呀!急!
发表于 2011-4-7 10:08:49 | 显示全部楼层 来自: 中国辽宁盘锦
上图再说
 楼主| 发表于 2011-4-7 10:30:10 | 显示全部楼层 来自: 中国浙江宁波
本帖最后由 囡囡娘 于 2011-4-7 10:31 编辑
# X! B% m/ _  H" X
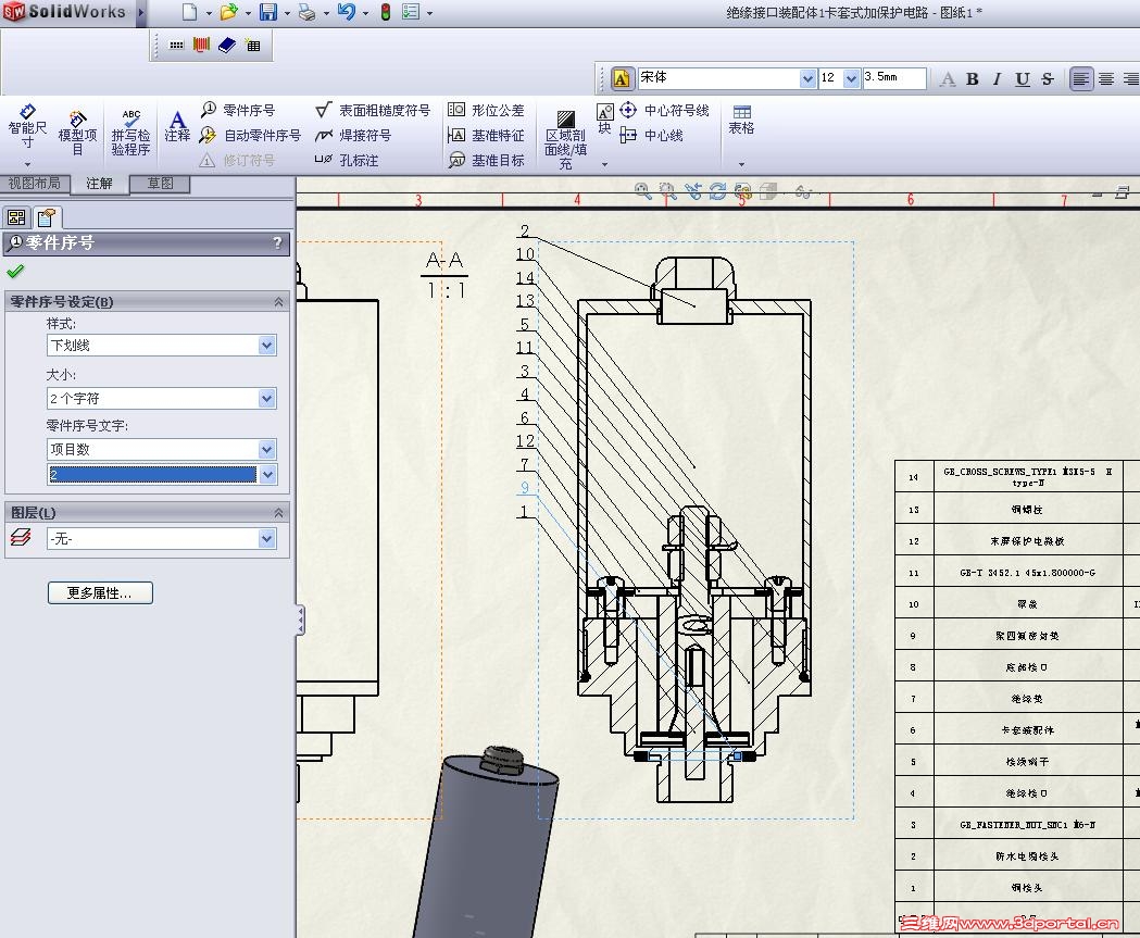
  U$ E$ E9 t6 K& O9 a% o- F$ H  ~7 r' A请看附图,就是改不过来,很急呀! 项目号.JPG
发表于 2011-4-7 10:39:08 | 显示全部楼层 来自: 中国辽宁盘锦
这种情况我也遇见过,肯定你的装配里有子装配,而且明细表理还要把子装配里的也一次要表达出来,序号层次选择最深导致的
发表于 2011-4-7 10:39:38 | 显示全部楼层 来自: 中国辽宁盘锦
我的解决办法就是把装配重新做了下
发表于 2011-4-7 12:33:00 | 显示全部楼层 来自: 日本
装配里有子装配,也可以的啊
发表于 2011-4-7 12:43:26 | 显示全部楼层 来自: 日本
那再弄个视频给你看看?要不你加我的QQ,把你的文件给我,我看看,给你弄
发表于 2011-4-7 13:34:57 | 显示全部楼层 来自: 中国湖南岳阳
我的QQ 是:260245784,希望和你交个朋友
发表于 2011-4-7 15:55:07 | 显示全部楼层 来自: 中国辽宁盘锦
装配里有子装配,也可以的啊
/ d- f+ A# Q: Y* d( ^2 y4 ~hongwei_1987jp 发表于 2011-4-7 12:33 http://www.3dportal.cn/discuz/images/common/back.gif
我做的有子装配,想把子装配也列在明细表内就像他那个样子
发表于 2011-4-7 15:56:42 | 显示全部楼层 来自: 中国江西南昌
理解了,,,,,,
发表于 2011-4-7 22:05:42 | 显示全部楼层 来自: 中国天津
请看附图,就是改不过来,很急呀!18696568 m4 z7 m+ {7 e4 ~8 F
囡囡娘 发表于 2011-4-7 10:30 http://www.3dportal.cn/discuz/images/common/back.gif

" u! |+ y- n: c4 l! Y; e( k" e要点一下左边菜单中的“2”,出现下拉单后修改。
发表于 2011-4-8 08:09:21 | 显示全部楼层 来自: 中国辽宁盘锦
要点一下左边菜单中的“2”,出现下拉单后修改。/ h  E; [" B- D, D+ _1 K
oneteng 发表于 2011-4-7 22:05 http://www.3dportal.cn/discuz/images/common/back.gif
那种情况就真的是个“2”,找不到别的数了
发表于 2011-4-8 08:28:56 | 显示全部楼层 来自: 日本
我做的有子装配,想把子装配也列在明细表内就像他那个样子
& p2 i& c6 k7 p# Y1 G0 {阿帕奇 发表于 2011-4-7 15:55 http://www.3dportal.cn/discuz/images/common/back.gif

1 N9 v  r7 e# }6 w. U3 Y' Z# A; l
" {& @2 O  S$ f) v3 [" X( f+ s2 C1 w  n$ x' w2 `6 Y  w
如果是为了出1张明细图,先备份一个装配体文件,打开装配体,再把子装配体解散,就可以了。" P- `3 t  {" x' y; B
就不需要再重新一个一个去组装了。
 楼主| 发表于 2011-4-8 08:31:47 | 显示全部楼层 来自: 中国浙江宁波
谢谢合位,我先解散子装配体试
 楼主| 发表于 2011-4-8 08:36:57 | 显示全部楼层 来自: 中国浙江宁波
我试过不是有子装配的原因,我找了一个没有子装配的结构做明细表,还是改不了
 楼主| 发表于 2011-4-8 08:42:50 | 显示全部楼层 来自: 中国浙江宁波
不过我在更改项目号时,在图纸上改不了,而明细表的序号栏有相应的更改。急,大家过来帮忙吧,是不是我哪儿设置造成现在的结果
发表于 2011-4-8 08:56:57 | 显示全部楼层 来自: 中国辽宁盘锦
明细表不在图纸上吗?
发表于 2011-4-8 09:08:03 | 显示全部楼层 来自: 日本
我做了个视频,请确认/ u' O) C' d$ C* u" m, _; M
http://www.3dportal.cn/discuz/vi ... =1027335&extra=
 楼主| 发表于 2011-4-8 14:34:12 | 显示全部楼层 来自: 中国浙江宁波
已经解决,在插入明细表中的设置改一下就可以了!
发表回复
您需要登录后才可以回帖 登录 | 注册

本版积分规则


Licensed Copyright © 2016-2020 http://www.3dportal.cn/ All Rights Reserved 京 ICP备13008828号

小黑屋|手机版|Archiver|三维网 ( 京ICP备2023026364号-1 )

快速回复 返回顶部 返回列表