QQ登录

只需一步,快速开始

登录 | 注册 | 找回密码

三维网

 找回密码
 注册

QQ登录

只需一步,快速开始

展开

通知     

查看: 2418|回复: 5
收起左侧

[已答复] 光杠摩擦传动

[复制链接]
发表于 2011-4-15 20:29:50 | 显示全部楼层 |阅读模式 来自: 中国山东烟台

马上注册,结识高手,享用更多资源,轻松玩转三维网社区。

您需要 登录 才可以下载或查看,没有帐号?注册

x
请教
! I# }& o& W  q5 ^: Z/ u7 Q  V9 }     光杠摩擦传动机构的构成、结构,最好有图示。以及应用场合。
发表于 2011-4-17 18:12:48 | 显示全部楼层 来自: 中国湖北武汉
就是无牙丝杆
发表于 2011-4-22 08:19:50 | 显示全部楼层 来自: 中国湖南岳阳
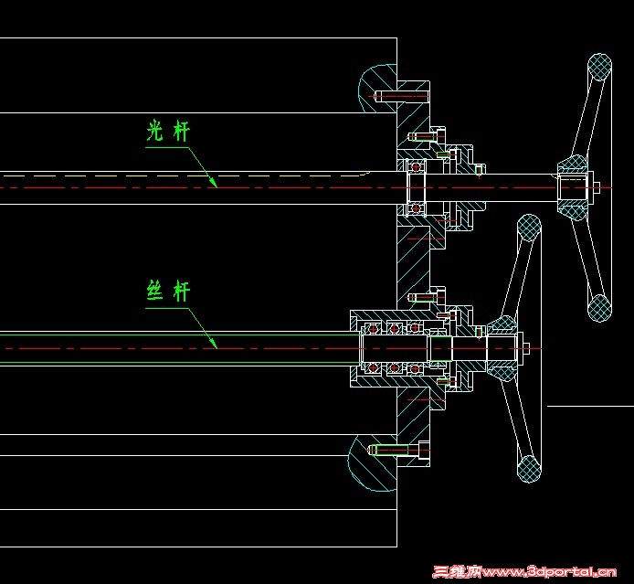
光杆只起传递扭矩的作用,最后驱动刀架或滑枕移动的还是丝杆螺母。请参考立车滑枕升降机构示意图。
2.jpg
3.jpg

评分

参与人数 1三维币 +2 收起 理由
虎强 + 2 技术讨论

查看全部评分

发表于 2011-4-22 18:04:40 | 显示全部楼层 来自: 中国广东深圳
没听说过光杠摩擦传动。
( A/ ~% h4 ]& \+ K光杠一般起导向作用,摩擦越小越好,配合铜套或直线轴承使用。
发表于 2011-4-27 03:13:58 | 显示全部楼层 来自: 中国江苏苏州
有这种传动的,叫做光杆排线器,光轴转动,带动上面的机构来回摆动。纺织机械、电线电缆开卷机等用来排线的。
3 e0 q* ^) Y7 L! @$ a* L结构图暂时找不着了,下次再传。
gpc20d.jpg
gpc40d.jpg

评分

参与人数 1三维币 +2 收起 理由
虎强 + 2 技术讨论

查看全部评分

发表于 2011-4-27 03:29:30 | 显示全部楼层 来自: 中国江苏苏州
http://3dportal.cn/discuz/viewthread.php?tid=857543
  b. q: w% d; \! C$ S  |这个帖子里有介绍。应该是你要的东西吧。
发表回复
您需要登录后才可以回帖 登录 | 注册

本版积分规则


Licensed Copyright © 2016-2020 http://www.3dportal.cn/ All Rights Reserved 京 ICP备13008828号

小黑屋|手机版|Archiver|三维网 ( 京ICP备2023026364号-1 )

快速回复 返回顶部 返回列表