QQ登录

只需一步,快速开始

登录 | 注册 | 找回密码

三维网

 找回密码
 注册

QQ登录

只需一步,快速开始

展开

通知     

查看: 1693|回复: 6
收起左侧

[求助] 求加工方案

[复制链接]
发表于 2011-4-16 09:09:07 | 显示全部楼层 |阅读模式 来自: 中国上海

马上注册,结识高手,享用更多资源,轻松玩转三维网社区。

您需要 登录 才可以下载或查看,没有帐号?注册

x
本帖最后由 lauhob 于 2011-4-16 09:20 编辑 ! P! X& c' ~& I0 D1 U
* o" ^8 [9 k, R. O! g
图片我请朋友帮我传上来了。
111.jpg
 楼主| 发表于 2011-4-16 09:17:04 | 显示全部楼层 来自: 中国上海
现在问题如下:
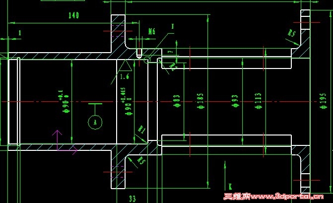
, k0 m+ i8 y* e- P该零件结构是工字型结构,最大外径200mm,总高320mm,现有一内孔,直径90mm,要求在深150mm处加工一个直径90H5盲孔,需要加工长度35mm。思考再三,选用磨床则需要搭中心架,这样圆度无法保证,上其它设备,有担心H5的公差无法保证,想请各位帮忙考虑一个适当的加工手段。谢谢!
发表于 2011-4-16 10:35:36 | 显示全部楼层 来自: 中国山西晋中
1  夹左端,加支撑板顶右端,找正后车成φ195和φ185外圆。
3 r- e: C4 R4 w) P2  夹φ195右法兰,用中心架架φ185,找正。粗车半精车各加工部分,φ90H5孔处留余量0.1mm并在R1处车砂轮越程槽。4 k# g" ~2 s/ V1 }
3  同样装夹方法、找正。精磨φ90H5孔处,留余量0.03—0.05mm。% O7 Q/ T$ w* h
4  研磨φ90H5孔处,最终研磨至要求尺寸。
2 o+ Y4 `+ w) F, `' _: K此处是否装轴承?精度与表面粗糙度不匹配。要是φ90H6就容易加工了。
 楼主| 发表于 2011-4-16 19:45:11 | 显示全部楼层 来自: 中国上海
此处确实是装轴承用的,抱歉有一点没有表示出来,既是大外圆端面与轴中心线要求0.02mm的跳动要求,这点让我很为难。至于是用研磨的方式,我也考虑过了,可是觉得不妥当,搭中心架后磨削出来的椭圆度有0.03mm,用研磨的方式难以校正,是否有类式圆盘磨的,可以调整而不用中心架。
发表于 2011-4-17 19:27:19 | 显示全部楼层 来自: 中国湖北孝感
150MM不算深呀.工差和光洁度也不算高.普车就完全能搞定了,,上数车就简单了.
 楼主| 发表于 2011-4-18 18:44:15 | 显示全部楼层 来自: 中国上海
请各位帮忙看看啊!!!多谢
发表于 2011-4-22 08:28:29 | 显示全部楼层 来自: 中国河南开封
本帖最后由 kflsy 于 2011-4-22 08:32 编辑
/ Z2 u# g/ K( M, a, }' M5 v: t, C/ Y# b
φ90H5尺寸处,用浮动研磨头研磨就可以了,但是孔的圆度和位置度需要上一道工序保证,其实很简单,只要车床精度能达到加工精度就可以了。浮动研磨头可用钻床、车床、镗床装夹加工。
: G3 X) `* q  r- {1 c加工的关键,就在浮动研磨头。加工时可以自动调整,主要是保证粗糙度要求和孔尺寸要求。镗床手册上有,你可以参考。
发表回复
您需要登录后才可以回帖 登录 | 注册

本版积分规则


Licensed Copyright © 2016-2020 http://www.3dportal.cn/ All Rights Reserved 京 ICP备13008828号

小黑屋|手机版|Archiver|三维网 ( 京ICP备2023026364号-1 )

快速回复 返回顶部 返回列表