QQ登录

只需一步,快速开始

登录 | 注册 | 找回密码

三维网

 找回密码
 注册

QQ登录

只需一步,快速开始

展开

通知     

goto3d 说: 在线网校重磅上线MC2022&Inventor2022全新课程,虞为民老师、大表哥同事精彩讲解,快去围观!
2021-06-25
查看: 3993|回复: 10
收起左侧

[求助] proe怎么画角度为60度凸包

[复制链接]
发表于 2011-4-16 14:44:19 | 显示全部楼层 |阅读模式 来自: 中国广东深圳

马上注册,结识高手,享用更多资源,轻松玩转三维网社区。

您需要 登录 才可以下载或查看,没有帐号?注册

x
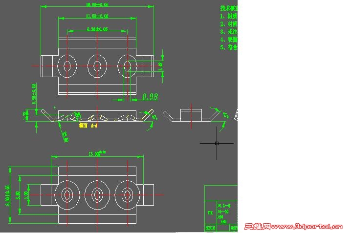
我要画个底部是1.48   0.59的个椭圆,然后是沿60度角向上延伸至一个面上,但与面相交的尺寸不知道,所以不知道怎么用混合特征,用拔模角度太大,画不出,请叫下高手指点。谢谢!
发表于 2011-4-18 08:59:58 | 显示全部楼层 来自: 中国广东东莞
你要向上延伸多少高度?
* A7 {9 b0 z2 `1 b, y你的底部太小了,高度太高的话会造成自相交失败。
) y# w4 w$ m7 [/ |' v我做了下,高度为0.1, 可以改到0.2,再多些就会失败。
daojiao.jpg

daojiao.prt.rar

120.55 KB, 阅读权限: 5, 下载次数: 10

 楼主| 发表于 2011-4-26 18:34:58 | 显示全部楼层 来自: 中国广东深圳
高度为0.5mm
发表于 2011-4-26 19:28:42 | 显示全部楼层 来自: 中国广东东莞
长轴1.48mm  短轴 0.59mm的椭圆,然后是沿60度角向上延伸0.5mm的特征会自相交,所以会失败,或者说这个图形不存在,你要么加大底部的椭圆的尺寸或者减小高度。
发表于 2011-4-26 23:51:35 | 显示全部楼层 来自: 中国辽宁沈阳
你看看这个行不? prt0001.prt.rar (135.9 KB, 下载次数: 22)
发表于 2011-4-27 19:59:16 | 显示全部楼层 来自: 中国辽宁沈阳
你看这个行不? prt0001.prt.rar (135.9 KB, 下载次数: 3)
 楼主| 发表于 2011-4-30 12:33:00 | 显示全部楼层 来自: 中国广东深圳
不好意思是1.48,0.98的椭圆。
发表于 2011-4-30 22:32:35 | 显示全部楼层 来自: 中国台湾
抱歉 我不是業內人士 也沒有 ProE 經驗. S% Y4 y" J% V
想由數學觀念提出一個講法 不可行請不要罵我; k& K! `" J9 N. t& g

- R3 C$ B( w2 M& ?  _! a  Q30-60-90 直角三角形三邊長比例是 1 : 2 : 1.7321 K. X  x+ z( ^. v* e7 |
高度0.5且在60度角對邊 那麼30度角對邊長是 0.5/1.732=0.288683 ^7 w4 R6 K, x' }3 C
長軸1.48-2*0.28868=0.90264
2 P, t+ @9 K/ G0 W% t4 z8 B短軸0.98-2*0.28868=0.402646 i/ A8 p, Q+ k, l
那麼在高度 0.5 處畫個 0.90264 , 0.40264 的橢圓是否可行?
发表于 2011-5-3 17:37:00 | 显示全部楼层 来自: 中国辽宁沈阳
我修改了一下,你再看看。 prt0001.prt.rar (80.62 KB, 下载次数: 2)
 楼主| 发表于 2011-5-4 18:41:56 | 显示全部楼层 来自: 中国广东深圳
8楼的想法是对的,谢谢你们,不过我还是画不出这个零件,现传个图给大家看下,帮忙指导下;初次上论坛,不好意思不知道怎么上图片,上个附件。' h8 \0 {0 x1 O5 g6 f0 m* A. b

asd.rar

93.08 KB, 下载次数: 2

 楼主| 发表于 2011-5-4 18:55:46 | 显示全部楼层 来自: 中国广东深圳
是这个图,大家可以看下。
2.JPG
发表回复
您需要登录后才可以回帖 登录 | 注册

本版积分规则


Licensed Copyright © 2016-2020 http://www.3dportal.cn/ All Rights Reserved 京 ICP备13008828号

小黑屋|手机版|Archiver|三维网 ( 京ICP备2023026364号-1 )

快速回复 返回顶部 返回列表