QQ登录

只需一步,快速开始

登录 | 注册 | 找回密码

三维网

 找回密码
 注册

QQ登录

只需一步,快速开始

展开

通知     

查看: 1637|回复: 9
收起左侧

[已解决] 帮看看这

 关闭 [复制链接]
发表于 2011-4-17 16:55:43 | 显示全部楼层 |阅读模式 来自: 中国新疆乌鲁木齐

马上注册,结识高手,享用更多资源,轻松玩转三维网社区。

您需要 登录 才可以下载或查看,没有帐号?注册

x
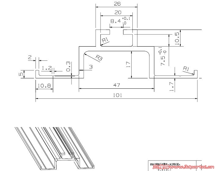
大家帮看看这怎么成型的 不要焊接哦 没做过 大家别笑
未命名1.JPG
未命名2.JPG
发表于 2011-4-17 17:15:29 | 显示全部楼层 来自: 中国山西晋中
第一张图片可轧制成型,也可用坯料加工成型,然后攻螺孔。
4 f8 G& O% k# I' {. P第二个图片可用铜铝型材挤压机,挤压成型。

评分

参与人数 1三维币 +2 收起 理由
天际孤帆 + 2 鼓励交流

查看全部评分

发表于 2011-4-18 09:35:58 | 显示全部楼层 来自: 中国安徽合肥
主要看两种型材属于是什么类型,如果都是型钢的话,第一种可以直接轧制成形,第二种可以轧制加焊接成形。

评分

参与人数 1三维币 +2 收起 理由
plc + 2 技术讨论

查看全部评分

发表于 2011-4-18 11:52:14 | 显示全部楼层 来自: 中国江苏南京
第一张是机加工图,第二张应该是冷拉挤压出来的

评分

参与人数 1三维币 +2 收起 理由
plc + 2 技术讨论

查看全部评分

发表于 2011-4-18 13:15:36 | 显示全部楼层 来自: 中国江苏盐城
楼主高人!
发表于 2011-4-18 13:28:04 | 显示全部楼层 来自: 中国广东深圳
楼上灌水
- m- o' R% @7 e0 R2 _* q  k) n& w# s# I/ ^8 B
gaoyns  已经说明的很明确。 gaoyns 一出手,一般想再补充说明都很少有机会。:lol:
发表于 2011-4-19 17:20:13 | 显示全部楼层 来自: 中国江苏苏州
两个零件应该是输送线上用的吧,要看你是量产还是单件了。. x% h8 L; E& x# Y+ B# w8 x
模具成型或者机加工都可以
发表于 2011-4-20 09:12:00 | 显示全部楼层 来自: 中国广东
第一种是机加工零件,第二种是型材类,是挤压成型的。但做产品需考虑批量去选择结构与加工方式。
发表于 2011-4-23 19:54:23 | 显示全部楼层 来自: 中国浙江杭州
这两个零件现在市场上都有标准件(标准型材)$ b+ @5 b) k4 r: w
第一件
' g9 e5 I' A* _8 C+ n1、小批量、小量生产,可以通过直接方钢机加工完成  f  w% {% k9 |& O% L% \; `
2、大批量生产,可通过冷拉成型(毛坯),外形可不再加工,两端需要截断加工,再加工螺纹) D! e" r$ Z. Q6 ^2 Y  v5 A( s- Q- A
第二件
, }' d4 R% p8 _; Q* E5 n1、市场上主要为铝材,直接通过冷拉成型(目前主要用于组合结构、流水线等)
发表于 2011-4-24 22:19:31 | 显示全部楼层 来自: 中国辽宁沈阳
图纸条件给的不全,最重要的材料牌号都没给,怎么成型?要是合金钢的冷拉成型就困难了
发表回复
您需要登录后才可以回帖 登录 | 注册

本版积分规则


Licensed Copyright © 2016-2020 http://www.3dportal.cn/ All Rights Reserved 京 ICP备13008828号

小黑屋|手机版|Archiver|三维网 ( 京ICP备2023026364号-1 )

快速回复 返回顶部 返回列表