QQ登录

只需一步,快速开始

登录 | 注册 | 找回密码

三维网

 找回密码
 注册

QQ登录

只需一步,快速开始

展开

通知     

全站
11天前
查看: 2474|回复: 2
收起左侧

[讨论] 标注精度的讨论

[复制链接]
发表于 2011-5-4 23:14:47 | 显示全部楼层 |阅读模式 来自: 中国广东深圳

马上注册,结识高手,享用更多资源,轻松玩转三维网社区。

您需要 登录 才可以下载或查看,没有帐号?注册

x
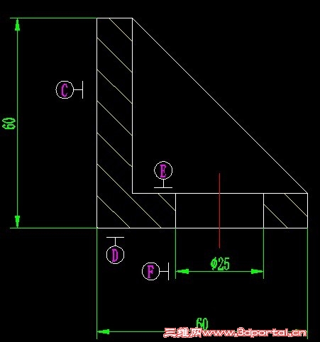
如图,现用推头1将一钢丝挡圈2装入工件3中,如图,显然主要是保证F对A的垂直度啦!图中标示的各面及中心要素的精度该怎么标,标多少合适,还是根本就不需要,为什么呢?(B面对A面的垂直度,C的平面度,E对C的垂直度,D对从C的垂直度要吗?F对C的垂直度,是标H对G 的垂直度呢,还是G对H的垂直度,即是以G还是H为基准,为什么?)) z8 C9 D5 t8 j& c/ f
如果我以A为基准,标B对A的垂直度x,与以B为基准,标A对B的垂直度y,如果按手册,因为B的主参数值比A的主参数值大,不在一个区间内,x<y,我觉得从加工的角度讲这两个应该是一样的吧!这两个应该是互为基准加工吧!
& G- N6 u/ L# I- v' V  `查机械手册的话,我感到很疑惑的是主参数是350mm,它的垂直度(俩平面如图中的A、B)公差7级就有0.08了,我的问题就是那些机床具体的加工精度(尺寸、形位)是多少,比如车床可以加工7级精度的工件,这里的7级精度包括尺寸精度外,包括它的形位公差精度吗?
8 X1 `; x, p8 m9 ^" i0 [( ~$ R- j6 w如果图不清楚,可以下载图纸,图纸是2007版的。
2.jpg
3.jpg
4.jpg
1.jpg

问题.rar

54.04 KB, 下载次数: 3

发表于 2011-5-5 11:15:10 | 显示全部楼层 来自: 中国山西太原
1  第一个图应下面A为基准要求B面的垂直度;第二个图应以C面为基准要求E面的垂直度;第三个图应以孔中心线为基准,要求G面的垂直度。
8 M) m2 m, \7 W2 s5 a5 D- _' Z2 T' m2  形位公差的公差值应小于尺寸公差的值,第一个图中A、B面的主参数是100mm,7级精度的垂直度公差是0.04mm,选时根据要求可往高选,如选6级精度。, v$ ], \2 u& {( q( w' T. `, N
3  各个零件装配后积累误差较大,应分别提高各零件垂直度精度等级。
! J' b) Z+ a$ k& W& I; ~% C+ k4  各种机床达到的加工精度可参考机械加工工艺手册提供的数据。
发表于 2011-5-11 10:48:28 | 显示全部楼层 来自: 中国广东深圳
该问题的讨论取决于钢丝挡圈装入工件3中时有无特殊要求,如起限位等特殊作用,那么必须确保导向套内孔中心线H与第一基准A的垂直误差最小,其中除需考虑导向套孔巾心线H与安装面G的垂直度外,还需考虞安装面E与第一基准A的平行度误差最小,选择精度视钢丝挡圈装入工件3中要求而定。
发表回复
您需要登录后才可以回帖 登录 | 注册

本版积分规则


Licensed Copyright © 2016-2020 http://www.3dportal.cn/ All Rights Reserved 京 ICP备13008828号

小黑屋|手机版|Archiver|三维网 ( 京ICP备2023026364号-1 )

快速回复 返回顶部 返回列表