QQ登录

只需一步,快速开始

登录 | 注册 | 找回密码

三维网

 找回密码
 注册

QQ登录

只需一步,快速开始

展开

通知     

查看: 2397|回复: 3
收起左侧

[已解决] 不规则图形的标注问题

[复制链接]
发表于 2011-5-24 23:25:40 | 显示全部楼层 |阅读模式 来自: 中国湖南长沙

马上注册,结识高手,享用更多资源,轻松玩转三维网社区。

您需要 登录 才可以下载或查看,没有帐号?注册

x
未命名.jpg
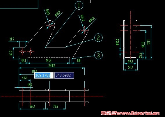
4 l9 a' t0 s, r9 v+ t. M! A自己对这种不规则图形的标注很是头疼,有前辈指导下不,图里面的1,2,3处本来是有圆角的,但如果有圆角,俯视图的话圆角不用划线,那应该怎样才能在这个三视图里表达整体尺寸呢,哪位前辈有空帮我修改下,我自己好好学习下

jiazi.zip

41.47 KB, 下载次数: 4

发表于 2011-5-25 10:12:01 | 显示全部楼层 来自: 中国湖北宜昌
路过,顺便说一下,没看懂……
发表于 2011-5-25 10:26:12 | 显示全部楼层 来自: 中国浙江杭州
这个圆角需要画上去才标准,俯视图的那个折线是不用画的,在主视图中标注尺寸时可以用双点划线来延长圆弧两边的线相交一个点做标注点,不知楼主明白没?

评分

参与人数 1三维币 +3 收起 理由
woaishuijia + 3 应助

查看全部评分

 楼主| 发表于 2011-5-25 20:54:51 | 显示全部楼层 来自: 中国湖南长沙
呵呵   谢谢   我明白了
发表回复
您需要登录后才可以回帖 登录 | 注册

本版积分规则


Licensed Copyright © 2016-2020 http://www.3dportal.cn/ All Rights Reserved 京 ICP备13008828号

小黑屋|手机版|Archiver|三维网 ( 京ICP备2023026364号-1 )

快速回复 返回顶部 返回列表