QQ登录

只需一步,快速开始

登录 | 注册 | 找回密码

三维网

 找回密码
 注册

QQ登录

只需一步,快速开始

展开

通知     

全站
6天前
查看: 3463|回复: 7
收起左侧

[已解决] 起重量3吨的主梁和走台等相关尺寸要怎么订

 关闭 [复制链接]
发表于 2011-5-25 20:14:40 | 显示全部楼层 |阅读模式 来自: 中国广东广州

马上注册,结识高手,享用更多资源,轻松玩转三维网社区。

您需要 登录 才可以下载或查看,没有帐号?注册

x
本帖最后由 开亮 于 2011-5-25 20:24 编辑
) }2 t' l0 @# t! d5 ?/ \/ r7 Q  @" [
起重量:3吨
# y2 c& e0 g0 K* ?' F0 E跨度:11米& T: j, L5 c$ f5 `% X4 Y: S
提升高度:4米3 G- c7 T* A4 f  R
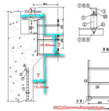
求如图:相关尺寸多少才符合标准。
71.jpg
72.jpg
73.JPG
发表于 2011-5-26 08:57:45 | 显示全部楼层 来自: 中国山西太原
没有计算,根据荷载估计。
* b' H" u% j: ^+ A0 p! W  p9 ]1  牛腿上部凸出平台,安装轻轨用,根据吊车主梁伸出长度,宽度300—350mm。6 Z' o# j$ ?- o0 d9 A% V( `% g
2  中间高度尺寸:350—400mm。- A+ H; O" ^8 I0 A
3  下部宽度:150—200mm。
2 a) s* b% Y# }, x: [' T; T图中接电滑触角钢架应向右移动,现在看与牛腿凸出部分相碰,距牛腿100mm为宜。

评分

参与人数 1三维币 +10 收起 理由
开亮 + 10 经验分享!

查看全部评分

发表于 2011-5-26 09:20:14 | 显示全部楼层 来自: 中国上海
下面是一个相关的设计,希望能对你有所帮助; w9 [8 S& B- ^* o" R, z- Q2 i
/ V, w  P% Z% j1 l7 L1 a& k% v8 O
2 k3 }- a" c- |5 d8 [, A: e
. W( F, ^$ }6 `, v
起重量10t,跨度16.5m,起升高度为10m起升速度8m/min小车运行速度v=40m/min大车运行速度V=90m/min大车运行传动方式为分别传动;桥架主梁型式,箱形梁.小车估计重量4t,起重机的重量16.8t .工作类型为中级。根据上述参数确定的总体方案如下: 2 q5 j2 a2 F. f4 |4 w0 m# W* L, U
% F0 `" J# F8 z% T0 }/ z  X' j" z

% C6 E( G  X# _" y6 {. j主梁的设计:主梁跨度16.5m ,是由上、下盖板和两块垂直的腹板组成封闭箱形截面实体板梁连接,主梁横截面腹板的厚度为6mm,翼缘板的厚度为10mm,主梁上的走台的宽度取决于端梁的长度和大车运行机构的平面尺寸,主梁跨度中部高度取H=L/17 ,主梁和端梁采用搭接形式,主梁和端梁连接处的高度取H0=0.4-0.6H,腹板的稳定性由横向加劲板和,纵向加劲条或者角钢来维持,纵向加劲条的焊接采用连续点焊,主梁翼缘板和腹板的焊接采用贴角焊缝,主梁通常会产生下挠变形,但加工和装配时采用预制上拱。

评分

参与人数 1三维币 +3 收起 理由
开亮 + 3 辛苦了

查看全部评分

 楼主| 发表于 2011-5-26 09:37:40 | 显示全部楼层 来自: 中国广东广州
没有计算,根据荷载估计。. k6 ?% p8 d/ B/ `: K* \1 C  B
1  牛腿上部凸出平台,安装轻轨用,根据吊车主梁伸出长度,宽度300—350mm。' z$ W' U! ^4 P9 x" S" d4 b
2  中间高度尺寸:350—400mm。( ~8 W- @) A+ A+ \! s' P2 ~
3  下部宽度:150—200mm。
! B) g* p: I* J图中接电滑触角钢架应向右移动,现在看与牛腿凸 ...% Z. a; d+ A! {0 B+ t# m) p
gaoyns 发表于 2011-5-26 08:57 http://www.3dportal.cn/discuz/images/common/back.gif
  U: D/ n0 c4 b! O
谢谢经验分享。 ; @. \6 ^3 `" h! x8 ]. Z2 w' A
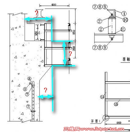
高老,你看我理解对吗?如图
( L3 i( ~5 D) v- l) @% {距牛腿100mm为宜,我还是不明白具体位置?烦请高老草图示意。谢谢
11052520140a629e87012e07db.jpg
发表于 2011-5-27 09:50:25 | 显示全部楼层 来自: 中国山西太原
本帖最后由 gaoyns 于 2011-5-27 09:52 编辑 & I  D' K2 [. x
( w" }+ V: A4 f) w: _# o8 o
4# 开亮
# F0 g% E& [* E: k是不是架裸铜线的滑触角钢架固定在道轨梁上?若是,图就没问题了。原来我看成在吊车上固定的磨托轮架了,这个架需要距牛腿有一定距离。其余尺寸都对。
 楼主| 发表于 2011-5-27 10:48:39 | 显示全部楼层 来自: 中国广东广州
已解决了!谢谢!
发表于 2011-5-28 22:21:09 | 显示全部楼层 来自: 中国浙江宁波
学习了,刚入起重行。
 楼主| 发表于 2011-5-31 09:19:30 | 显示全部楼层 来自: 中国广东广州
高老帮我看看。。。
71.jpg
发表回复
您需要登录后才可以回帖 登录 | 注册

本版积分规则


Licensed Copyright © 2016-2020 http://www.3dportal.cn/ All Rights Reserved 京 ICP备13008828号

小黑屋|手机版|Archiver|三维网 ( 京ICP备2023026364号-1 )

快速回复 返回顶部 返回列表