QQ登录

只需一步,快速开始

登录 | 注册 | 找回密码

三维网

 找回密码
 注册

QQ登录

只需一步,快速开始

展开

通知     

查看: 2958|回复: 21
收起左侧

[求助] 这种沉头孔用钻床如何快速成型?

[复制链接]
发表于 2011-5-29 10:52:17 | 显示全部楼层 |阅读模式 来自: 中国江苏南京

马上注册,结识高手,享用更多资源,轻松玩转三维网社区。

您需要 登录 才可以下载或查看,没有帐号?注册

x
本帖最后由 cayuer 于 2011-5-29 10:56 编辑
' Q$ ^2 ?% u7 g/ E6 x) _8 c  a* {9 ]7 j  w: q
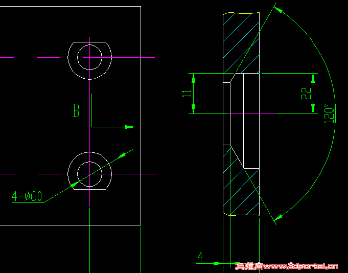
如图所示
- u0 ^- @$ G& P/ Z$ O量不是很大   F- M) t, r2 Z
也就10几块左右 大概50几个孔
115未命名截图.png
115未命名截图.png
 楼主| 发表于 2011-5-29 17:56:46 | 显示全部楼层 来自: 中国江苏南京
不得不人工置顶啊 专家呢 团队呢?
发表于 2011-5-29 18:09:01 | 显示全部楼层 来自: 中国上海
这样的孔用普通钻床是无法加工的。$ k1 g1 ~, W" y# w& K: P# t
圆孔多一块,是为了另外一边拧螺母的时候这边不用扳手什么的吧。
发表于 2011-5-29 20:15:20 | 显示全部楼层 来自: 中国山东烟台
用电火花打吧
 楼主| 发表于 2011-5-30 09:27:51 | 显示全部楼层 来自: 中国江苏南京
有没 有改进意见呢 螺栓或孔改进 满足要求就可以啊
发表于 2011-5-30 10:05:04 | 显示全部楼层 来自: 中国上海
看看沉头方颈螺栓(GB 10-1988)怎么样,或者GB/T 37-1988《T形槽用螺栓》。相对来说方形孔或者槽还是有办法加工的。
 楼主| 发表于 2011-5-30 20:20:57 | 显示全部楼层 来自: 中国江苏南京
6# lhf999
- w, n: @6 V  W. g) {6 u9 O' D( A好注意啊 因为这个螺栓也存在着同样的加工难度 这个要有铸造车间才能完成的
 楼主| 发表于 2011-5-30 20:36:37 | 显示全部楼层 来自: 中国江苏南京
图示如下 :handshake :handshake :handshake
115未命名截图.png
发表于 2011-5-30 21:10:47 | 显示全部楼层 来自: 中国山东青岛
对这种愚蠢的设计 就应该让设计者来写工艺。
发表于 2011-5-31 09:47:28 | 显示全部楼层 来自: 中国山东烟台
请问你那螺栓件1和件2是咋连接的
 楼主| 发表于 2011-5-31 14:38:37 | 显示全部楼层 来自: 中国江苏南京
本帖最后由 cayuer 于 2011-6-1 07:16 编辑
1 ~4 Q% K, v6 h5 N, K8 [
% @, G' [' s% g( I- A3 F9 L) E10# laohuw 浇铸连接
 楼主| 发表于 2011-6-1 07:17:07 | 显示全部楼层 来自: 中国江苏南京
我认为这种设计 纯粹脱裤子放屁9 s8 z1 q3 |0 B1 l' j" }: u+ T6 _
T型结构完全可以满足耐磨防转等要求
发表于 2011-6-1 08:48:20 | 显示全部楼层 来自: 中国辽宁丹东
不知道起到什么作用:
发表于 2011-6-1 09:09:24 | 显示全部楼层 来自: 中国山西太原
这种沉孔不能切削加工,可以用热冲压或铸造的方法成形。在连接板下无空间时为防止螺栓转动这用种结构。
发表于 2011-6-1 14:33:05 | 显示全部楼层 来自: 中国湖北鄂州
建议精铸或更改沉孔设计,实在不能改设计可用电火花加工
 楼主| 发表于 2011-6-3 05:18:57 | 显示全部楼层 来自: 中国江苏南京
15# wudang2
: I2 k6 q, y) G! V# M我的想法是在孔的部位周边加圆凸台 孔用T型8 Z5 x& p( y! }/ H5 p
圆凸台不要很大 只要在受冲击部位略微加高5mm左右就足够了
/ f. T0 H9 S9 O) b1 {" G1 _* `这样 做模也很简单
发表于 2011-6-3 06:07:26 | 显示全部楼层 来自: 中国天津
如果采用铸造工艺,表面质量是会影响接触面及安装情况,螺栓接合面积小,不利于安装。建议采用镶块分体结构,将止转部分通过小结构固定在沉孔上,否则是很难加工的。
发表于 2011-6-3 07:56:12 | 显示全部楼层 来自: 中国浙江杭州
这种结构设计应该是空间小及防标准件转,采用模具结构的镶块成.
发表于 2011-6-4 10:40:06 | 显示全部楼层 来自: 中国上海
LZ这笔生意估计要亏本做了
  b  c7 b( \! z% l$ ^* ?3 q& K3 y我的想法,线切割形状割出来 焊进去 表面打磨
发表于 2011-6-5 17:11:48 | 显示全部楼层 来自: 中国河北邢台
建议精铸或更改沉孔设计,实在不能改设计可用电火花加工
2 R+ F5 l9 b# J+ s! n0 i& ewudang2 发表于 2011-6-1 14:33 http://www.3dportal.cn/discuz/images/common/back.gif
0 s& u! q! Z! M* J# i2 @
只能用电火花加工了,不可能用切削的方法加工
发表于 2011-6-5 21:29:24 | 显示全部楼层 来自: 中国四川绵阳
不用电加工的话再钻孔后,用块东西补上后加工平面,他就是止动用嘛。
发表于 2011-6-7 12:55:11 | 显示全部楼层 来自: 中国上海
同意9楼  q2 X6 l6 o0 A0 x& E: q- _0 [- B
对于这么没工艺性的设计,除非对方智商达到了设计军舰,坦克的程度,否则工艺员最好叫他改设计,对他长进也有好处
发表回复
您需要登录后才可以回帖 登录 | 注册

本版积分规则


Licensed Copyright © 2016-2020 http://www.3dportal.cn/ All Rights Reserved 京 ICP备13008828号

小黑屋|手机版|Archiver|三维网 ( 京ICP备2023026364号-1 )

快速回复 返回顶部 返回列表