QQ登录

只需一步,快速开始

登录 | 注册 | 找回密码

三维网

 找回密码
 注册

QQ登录

只需一步,快速开始

展开

通知     

全站
9天前
查看: 2602|回复: 9
收起左侧

[讨论] SolidWorks如何画压力容器的三维补强圈?

[复制链接]
发表于 2011-6-10 10:54:55 | 显示全部楼层 |阅读模式 来自: 中国甘肃兰州

马上注册,结识高手,享用更多资源,轻松玩转三维网社区。

您需要 登录 才可以下载或查看,没有帐号?注册

x
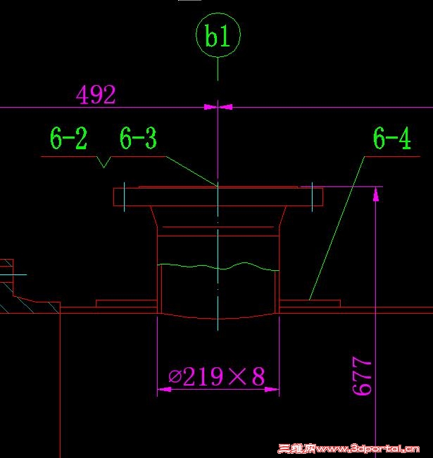
件号6-4是补强圈。
& }0 |8 p8 A' ?9 o3 Y' c: g) z' W. O( I- W+ s- A: I( Q
3.JPG 2.JPG ; V. `$ x* ~4 k2 E( u

+ F% m1 \3 U6 r8 [- k
0 _) R* M$ O8 R; K; }0 ]7 f用AUTOCAD画图示效果相当麻烦。" M, W% A0 Y3 j( p
+ z  p( O0 H! f( b# @* X
# `) M0 X4 E2 [" c* [# z6 N
1.JPG
. F! g+ v; T7 x' h2 @0 ?, C' m3 g  Q- e. Y

  d- u! W3 O5 d8 ACAD画图文件
% n9 `/ z, z; V
& m/ @2 [4 @& {$ w, J8 f" {+ U  ^* n2 j, \! a3 p
桌面.rar (31.38 KB, 下载次数: 7)
发表于 2011-6-10 12:02:47 | 显示全部楼层 来自: 日本
我用分割線然後剪裁實體的方法能實現這樣的形狀。。。
8 \6 Q% w1 k& n2 ~' L' {3 Q' | スクリーンショット(2011-06-10 13.01.49).png
* [% u3 ^5 s# G
+ j" z( a- v! C' Z5 Q另外,感覺上,變型或者壓凹可能有更簡單的做法。。。
发表于 2011-6-10 12:59:18 | 显示全部楼层 来自: 中国辽宁抚顺
可以用钣金
5 C2 Z$ R/ K/ h# F3 d5 m( m/ Z0 ^' K还有很多方法。。。
 楼主| 发表于 2011-6-10 13:22:16 | 显示全部楼层 来自: 中国甘肃兰州
我用分割線然後剪裁實體的方法能實現這樣的形狀。。。5 H" l+ T# E" @( h
1903152
* H# W) `* R: W0 ]* L# S
9 q* f9 V* d2 L1 f) `/ W另外,感覺上,變型或者壓凹可能有更簡單的做法。。。, p5 y/ ^9 p# O' l3 `- R
sihouko 发表于 2011-6-10 12:02 http://www.3dportal.cn/discuz/images/common/back.gif

9 c" p* m9 x; B2 _% q2 G& D- I7 ~8 `
谢谢回复。能否上传SW2006版的示例文件。便于掌握相关知识点。
发表于 2011-6-10 13:30:03 | 显示全部楼层 来自: 日本
4# ning84 - Z& B7 l( T4 X) y. h" C& t0 E
抱歉,在用2011版本。。。2006的沒有。。。><;
 楼主| 发表于 2011-6-10 13:52:19 | 显示全部楼层 来自: 中国甘肃兰州
本帖最后由 ning84 于 2011-6-10 13:55 编辑 : ?/ l' ?6 w/ V2 o5 C
4# ning84 6 R" i, h, U. L% R, n" m
抱歉,在用2011版本。。。2006的沒有。。。>
  y; U. j5 R0 W+ G  |7 Zsihouko 发表于 2011-6-10 13:30 http://www.3dportal.cn/discuz/images/common/back.gif
8 i6 h$ A# y3 Y) G( G

" ?. l/ z- [0 [: T" p) n谢谢,能提供一下sw2011版的下载破解版的地址吗?9 x5 k$ O- p& M, L0 l( c

$ R+ k6 u( B' k) y这种配置的计算机硬件能转起来吗?, T5 t  Y2 `9 H- c5 S
1 d# K" `  \. ?, Q* T8 i2 ?4 k" t
1.JPG
发表于 2011-6-10 14:19:10 | 显示全部楼层 来自: 中国浙江金华
件号6-4是补强圈。: `0 _/ m' V" y; |8 G9 E

  Z4 c1 H  c4 A' q* D* k9 `19031271903128; @2 e) F& j1 E6 C- e4 u4 r1 ~8 i
2 y6 b: }2 c+ E/ v6 s+ H# Z

6 C& g4 |5 G5 [用AUTOCAD画图示效果相当麻烦。
9 H/ A# h9 H" J" H' _
. b7 o& j0 ]3 D) B+ T: y7 g  J, O9 b1 B# P) F" S
1903129
: y2 j+ N+ S* G
0 [5 c1 v6 x4 P& f' z
( Q: ^- C4 ]/ e; ^CAD画图文件' a, {2 E: h: R! L  b" o0 n8 j7 |6 W

# j. M6 @# s- ~# P1 r. g5 Q0 H3 |+ |4 s! R
1903130# V7 C, \9 Z' r2 H1 {
请问:在SolidWorks如何实现,谢谢。
3 v+ N7 }3 ^: E! d8 {ning84 发表于 2011-6-10 10:54 http://www.3dportal.cn/discuz/images/common/back.gif

1 B" ?: [8 d8 L9 Q* F0 W; a一拉一切,很简单:( n% D1 O, H0 u9 m* s  y) G9 h
46.jpg
发表于 2011-6-10 14:20:33 | 显示全部楼层 来自: 中国浙江金华
谢谢,能提供一下sw2011版的下载破解版的地址吗?. y, ?5 q8 y7 v9 x
8 g( R; {" X) t( Z
这种配置的计算机硬件能转起来吗?2 c) a  I% w8 |1 E9 I. S# J
+ {3 L: J% u/ p5 }/ d: q
1903218+ E( ~3 J+ {% w3 H7 `; H4 d
ning84 发表于 2011-6-10 13:52 http://www.3dportal.cn/discuz/images/common/back.gif

# W+ i# [. r2 ?  _, j集显应该不行,很卡,稍大点的装配体根本转不起来!
发表于 2011-6-10 14:39:58 | 显示全部楼层 来自: 中国浙江嘉兴
网上找找就好了
发表于 2011-6-10 16:14:23 | 显示全部楼层 来自: 日本
8# ffda
7 N8 i; ~! S/ Z, y如果是公司用,勸你用會2006,要不然所有的文件全打不開~
发表回复
您需要登录后才可以回帖 登录 | 注册

本版积分规则


Licensed Copyright © 2016-2020 http://www.3dportal.cn/ All Rights Reserved 京 ICP备13008828号

小黑屋|手机版|Archiver|三维网 ( 京ICP备2023026364号-1 )

快速回复 返回顶部 返回列表