QQ登录

只需一步,快速开始

登录 | 注册 | 找回密码

三维网

 找回密码
 注册

QQ登录

只需一步,快速开始

展开

通知     

全站
3天前
查看: 1608|回复: 4
收起左侧

[求助] 求助建模

[复制链接]
发表于 2011-6-15 15:18:36 | 显示全部楼层 |阅读模式 来自: 中国江苏常州

马上注册,结识高手,享用更多资源,轻松玩转三维网社区。

您需要 登录 才可以下载或查看,没有帐号?注册

x
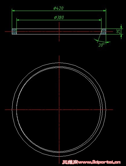
请教图示模型怎么建立?
11.jpg
发表于 2011-6-15 16:31:17 | 显示全部楼层 来自: 中国山东济南
做起来倒不复杂,作出上下两面的偏心圆,然后曲线组作出偏心柱做布尔减即可;估计也可以用扫掠也可以做,你可以试试。
1.JPG

评分

参与人数 1三维币 +5 收起 理由
beyond2009 + 5 应助

查看全部评分

 楼主| 发表于 2011-6-16 08:50:42 | 显示全部楼层 来自: 中国江苏常州
非常感谢!
. f: f9 z3 \) ~( o) D另,请教用扫描如何做?
发表于 2011-7-30 02:01:50 | 显示全部楼层 来自: 巴西
可不可以先使用内侧2个圆做一个曲面
发表于 2011-7-30 17:21:38 | 显示全部楼层 来自: 中国浙江宁波
123.jpg 以二根截面线做截面。以圆做引导线。
发表回复
您需要登录后才可以回帖 登录 | 注册

本版积分规则

Licensed Copyright © 2016-2020 http://www.3dportal.cn/ All Rights Reserved 京 ICP备13008828号

小黑屋|手机版|Archiver|三维网 ( 京ICP备2023026364号-1 )

快速回复 返回顶部 返回列表