QQ登录

只需一步,快速开始

登录 | 注册 | 找回密码

三维网

 找回密码
 注册

QQ登录

只需一步,快速开始

展开

通知     

全站
7天前
查看: 2659|回复: 6
收起左侧

[已解决] 齿轮退刀槽

 关闭 [复制链接]
发表于 2011-6-16 16:00:11 | 显示全部楼层 |阅读模式 来自: 中国上海

马上注册,结识高手,享用更多资源,轻松玩转三维网社区。

您需要 登录 才可以下载或查看,没有帐号?注册

x
本帖最后由 hbsky20 于 2011-6-16 16:02 编辑 - y! _6 R2 A* t2 A% c8 O
$ E- U4 l$ L2 |+ A& O
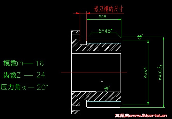
请问:如图齿轮模数是16 滚齿机上加工的退刀槽尺寸应留该多少距离?有这样滚齿机上加工退刀槽的标准吗 在机械手册上只有人字齿轮和插齿的退刀槽
齿轮退刀槽.jpg
发表于 2011-6-16 22:07:45 | 显示全部楼层 来自: 中国江苏徐州
从产品形状来分析,最好的加工方式就是用插齿。插齿的退刀槽不低于5mm就可以了。如果一定选择滚齿方式,那么退刀槽的尺寸一定不低于滚齿刀的半径,那么这个退刀槽的尺寸是比较大的,产品设计的工艺性就很差了。

评分

参与人数 1三维币 +2 收起 理由
plc + 2 技术讨论

查看全部评分

发表于 2011-6-16 22:22:57 | 显示全部楼层 来自: 中国江苏常州
本帖最后由 ftgww123 于 2011-6-16 22:24 编辑 , {- S% K: s5 w" t, T6 `7 N, o
5 h/ `  J4 n& O6 Z7 O
这个齿轮的结构不适合滚齿。( w& ~4 b( `$ d, a+ L, Q
精度多少 ,可据此决定工艺。

评分

参与人数 1三维币 +2 收起 理由
plc + 2 技术讨论

查看全部评分

发表于 2011-6-17 08:55:41 | 显示全部楼层 来自: 中国山西太原
这种结构紧凑的齿轮不适合用滚刀或盘形铣刀加工,只能用插齿机加工,用插齿机时退刀槽宽度可较小,根据使用插刀形状可以是几毫米。用滚刀加工至少需要2/3滚刀直径,才能退出齿槽。此件不适合在滚齿机上加工。

评分

参与人数 1三维币 +2 收起 理由
plc + 2 技术讨论

查看全部评分

发表于 2011-6-17 12:11:09 | 显示全部楼层 来自: 中国上海
其实可以根据滚刀直径算出来或画出来退刀槽应该有多宽。m16的镶片齿轮滚刀直径为φ250,退刀槽宽度即可算出,如图所示。(宽度要求很大啊。)
cl.jpg

评分

参与人数 1三维币 +2 收起 理由
plc + 2 技术讨论

查看全部评分

发表于 2011-7-7 17:04:31 | 显示全部楼层 来自: 中国陕西宝鸡
机械结构要素尺寸要求,下面软件能查询:
# A, P- `& T. [/ }! ?% k下载:http://www.skycn.com/soft/15294.html

评分

参与人数 1三维币 +2 收起 理由
plc + 2 应助

查看全部评分

发表于 2011-7-7 19:00:00 | 显示全部楼层 来自: 中国江苏无锡
齿轮方面的制造比较专业,顶,学习了
发表回复
您需要登录后才可以回帖 登录 | 注册

本版积分规则

Licensed Copyright © 2016-2020 http://www.3dportal.cn/ All Rights Reserved 京 ICP备13008828号

小黑屋|手机版|Archiver|三维网 ( 京ICP备2023026364号-1 )

快速回复 返回顶部 返回列表