QQ登录

只需一步,快速开始

登录 | 注册 | 找回密码

三维网

 找回密码
 注册

QQ登录

只需一步,快速开始

展开

通知     

全站
9天前
goto3d 说: 在线网校重磅上线MC2022&Inventor2022全新课程,虞为民老师、大表哥同事精彩讲解,快去围观!
2021-06-25
查看: 1401|回复: 2
收起左侧

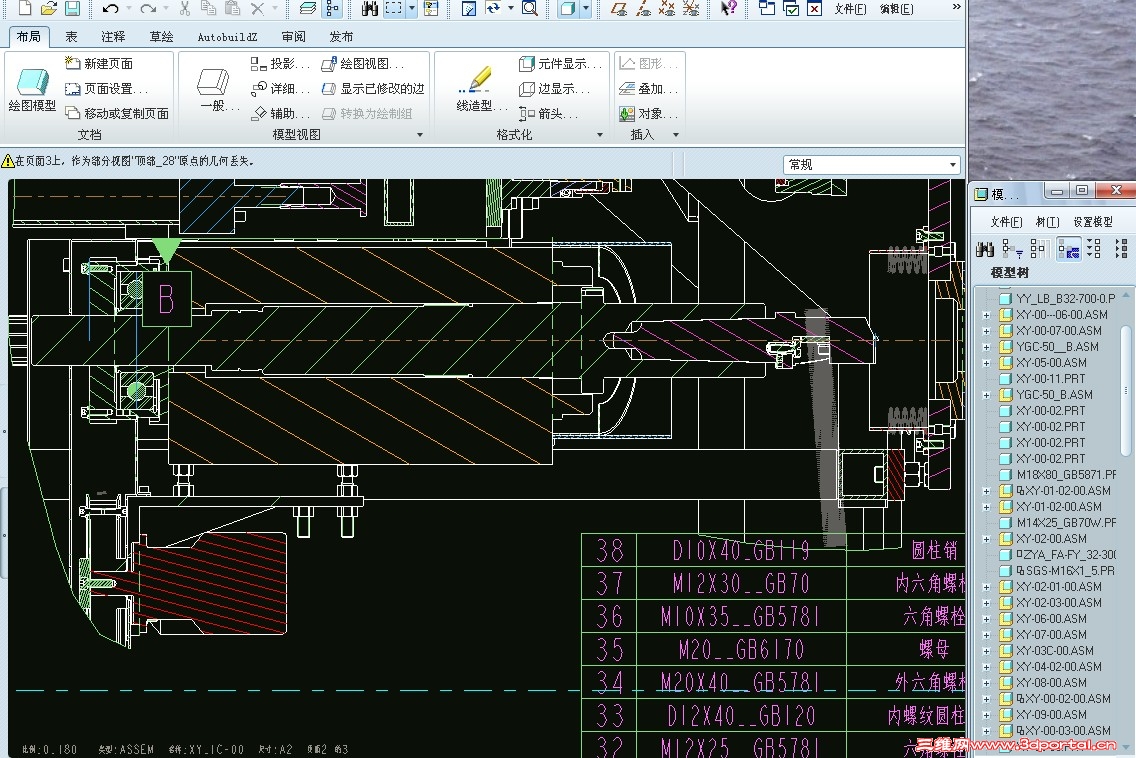
[求助] 工程图总图中的零件基准符号如何清除简便?

[复制链接]
发表于 2011-7-7 12:56:58 | 显示全部楼层 |阅读模式 来自: 中国北京

马上注册,结识高手,享用更多资源,轻松玩转三维网社区。

您需要 登录 才可以下载或查看,没有帐号?注册

x
工程图总图中的零件基准符号如何清除简便?下面我的工程图总图中左上角有一个零件基准符号,还是好清除的.由于零件的工程图不断出图,会使零件基准符号在工程图总图中大量出现,每次清除很是麻烦,有什么简单办法清除,请高手解答.
13y.jpg
发表于 2011-7-9 07:52:19 | 显示全部楼层 来自: 中国浙江台州
基准符号用 自定义球标的人走过。呵呵。
发表于 2011-7-9 08:59:38 | 显示全部楼层 来自: 中国广东潮州
很少用proe出图  支持楼主 学习
发表回复
您需要登录后才可以回帖 登录 | 注册

本版积分规则


Licensed Copyright © 2016-2020 http://www.3dportal.cn/ All Rights Reserved 京 ICP备13008828号

小黑屋|手机版|Archiver|三维网 ( 京ICP备2023026364号-1 )

快速回复 返回顶部 返回列表