|
|

楼主 |
发表于 2011-7-8 20:15:04
|
显示全部楼层
来自: 中国江苏盐城
本帖最后由 chungxh 于 2011-7-8 20:18 编辑
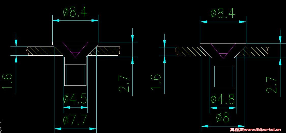
. v& x) v) w' V6 m/ m, F# c$ f一般沉孔通常用麻花钻钻出底孔,锪钻钻出角度来,角度通常是120°。$ O5 l$ @ l& o7 H, w$ e% Y
至于你的尺寸也比较奇怪。一般沉孔好像只标出底孔,最多加个角度而已。
, [1 }* K, ~0 C" W6 C至于0.5深是否指整个沉孔下沉0.5mm,形成类似台阶沉孔状态?
$ Q6 |. l* S/ [- A) Q钣金加工也 ...7 t% ?" E) I) L" E2 T
马尔马拉海 发表于 2011-7-8 17:10 http://www.3dportal.cn/discuz/images/common/back.gif , F4 j+ ] [9 E* b, W
唉,难搞的沉孔。 |
|