QQ登录

只需一步,快速开始

登录 | 注册 | 找回密码

三维网

 找回密码
 注册

QQ登录

只需一步,快速开始

展开

通知     

全站
7天前
查看: 2408|回复: 10
收起左侧

[求助] 这个问题有人会吗

[复制链接]
发表于 2011-7-27 08:09:53 | 显示全部楼层 |阅读模式 来自: 中国浙江杭州

马上注册,结识高手,享用更多资源,轻松玩转三维网社区。

您需要 登录 才可以下载或查看,没有帐号?注册

x
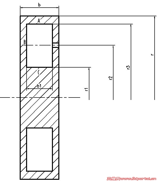
如下图,在转速为n的零件上有一处空隙内有密度为ρ的油液,试求在旋转状态下油液对A\B\C处的压力分别为多大?请各位大虾不吝赐教,谢谢!
5 A4 J. y* K- M. p2 _( ]$ {                                 lxl.JPG
发表于 2011-7-27 10:02:31 | 显示全部楼层 来自: 中国山西太原
空腔内存有油,在B点的对面有一孔,旋转起来油由于离心力作用会从此流出来,最后剩下的油都存在孔以外的圆环形空腔内,这样B点和C点都不存在油的压力了。对A下的压力F可用下式来求:- _! d& }1 b$ w4 E! e
F=mV^2/R  (N)  % L+ W$ u7 W% ]  {
m为剩余油的质量,m=Vρ,kg;V为A处零件的线速度,V=πDn/60,m/s;R为旋转半径,m。2 R+ ^$ E3 @: W& K7 e/ A- U
如果求压强(工程上常称压力),再除以受力面积就行了。

评分

参与人数 1三维币 +2 收起 理由
天际孤帆 + 2 鼓励交流

查看全部评分

 楼主| 发表于 2011-7-27 10:27:34 | 显示全部楼层 来自: 中国浙江杭州
不好意思没说清楚,旋转的时候那个孔是堵上的。不漏油!
发表于 2011-7-27 10:49:08 | 显示全部楼层 来自: 中国山西太原
3# sstone79 9 `3 l) c7 w: N& Z: M; q/ O
堵上孔后,旋转时由于油受的离心力是沿半径指向圆周的,在C处仍不受力。在B处,根据油在此处质量、旋转半径和线速度求出离心力,由于在液体内部某点受力各方向都是一样的,就可得到B处受的力。
 楼主| 发表于 2011-7-27 11:07:12 | 显示全部楼层 来自: 中国浙江杭州
非常感谢gaoyns,具体能给出计算公式吗?
发表于 2011-7-27 11:15:42 | 显示全部楼层 来自: 中国山西太原
5# sstone79 3 A* p7 n1 r& B( @0 O5 K- p
离心力计算公式在2楼不是都给出了吗。
发表于 2011-10-28 13:45:05 | 显示全部楼层 来自: 中国重庆
天高云淡的意见我很赞成,就这样了
发表于 2012-4-15 21:32:28 | 显示全部楼层 来自: 中国广东东莞
准确的计算要用到微积分知识。
发表于 2012-4-15 21:48:25 | 显示全部楼层 来自: 中国广西柳州
为什么B面会受力啊,受到的是液体内部的摩擦力?A出用离心力计算,B处也是离心力?
发表于 2012-4-15 22:48:10 | 显示全部楼层 来自: 中国广东东莞
液体离心力产生的压强力。
发表于 2012-4-16 08:40:23 | 显示全部楼层 来自: 中国山东德州
10# jackie230 比如量筒里装有液体,这个量筒受力的不仅是底面,侧面也会受一个ρgh的力。这是液体、气体的特性。
发表回复
您需要登录后才可以回帖 登录 | 注册

本版积分规则

Licensed Copyright © 2016-2020 http://www.3dportal.cn/ All Rights Reserved 京 ICP备13008828号

小黑屋|手机版|Archiver|三维网 ( 京ICP备2023026364号-1 )

快速回复 返回顶部 返回列表