QQ登录

只需一步,快速开始

登录 | 注册 | 找回密码

三维网

 找回密码
 注册

QQ登录

只需一步,快速开始

展开

通知     

全站
5天前
查看: 3581|回复: 6
收起左侧

[求助] SW 工程图标注样式,转CAD 中标注字体在下边

[复制链接]
发表于 2011-8-8 15:01:54 | 显示全部楼层 |阅读模式 来自: 中国江苏苏州

马上注册,结识高手,享用更多资源,轻松玩转三维网社区。

您需要 登录 才可以下载或查看,没有帐号?注册

x
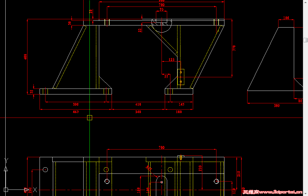
sW 工程图标注样式,转CAD 中标注字体在下边,如图所示 我把转好的CAD图新建了一个 结果水平方向字体往下,不知为何
QQ截图20110808145537.png

复件 Drawing5.rar

94.11 KB, 下载次数: 9

发表于 2011-8-8 20:27:15 | 显示全部楼层 来自: 日本
本帖最后由 hongwei_1987jp 于 2011-8-8 20:28 编辑 ) h# I1 }  o$ C7 U
6 o( G0 }5 F, H# I
改换样式就可以的
发表于 2011-8-9 08:45:02 | 显示全部楼层 来自: 中国江苏南京
新建一个标注样式就可以解决问题
发表于 2011-8-9 12:21:43 | 显示全部楼层 来自: 中国安徽铜陵
solid转CAD,我是转怕了,不是注释文字变成了问号,就是标注乱动,后来得到了HONGWEI-1987的指点,好多了,字体还没有完全解决,现在直接转PDF
发表于 2011-8-9 13:36:27 | 显示全部楼层 来自: 中国山东烟台
其实sw转cad,还是有技巧的,貌似邢启恩编著的一本书中有专门介绍.等回头看看是哪本书,再告诉大家
 楼主| 发表于 2011-8-10 14:57:45 | 显示全部楼层 来自: 中国江苏苏州
我转CAD 不乱码 呵呵 就是样式不对 !!!
发表于 2011-8-11 13:59:28 | 显示全部楼层 来自: 中国浙江杭州
其实sw转cad,还是有技巧的,貌似邢启恩编著的一本书中有专门介绍.等回头看看是哪本书,再告诉大家
7 T+ i# g/ z5 q& p+ k; B% plinux1234 发表于 2011-8-9 13:36 http://www.3dportal.cn/discuz/images/common/back.gif

& V# I: `) _) s; f6 s! n8 R* R- Q9 y' {7 Y
悠悠网上客  ----你那有没有邢启恩老师  三维一点通这本书的教程啊
发表回复
您需要登录后才可以回帖 登录 | 注册

本版积分规则


Licensed Copyright © 2016-2020 http://www.3dportal.cn/ All Rights Reserved 京 ICP备13008828号

小黑屋|手机版|Archiver|三维网 ( 京ICP备2023026364号-1 )

快速回复 返回顶部 返回列表