QQ登录

只需一步,快速开始

登录 | 注册 | 找回密码

三维网

 找回密码
 注册

QQ登录

只需一步,快速开始

展开

通知     

查看: 6367|回复: 33
收起左侧

[求助] 这个零件如何车削

[复制链接]
发表于 2011-8-10 21:37:43 | 显示全部楼层 |阅读模式 来自: 中国安徽蚌埠

马上注册,结识高手,享用更多资源,轻松玩转三维网社区。

您需要 登录 才可以下载或查看,没有帐号?注册

x
本帖最后由 zxpzxp 于 2011-8-11 07:18 编辑
0 R5 _5 _' A- z  {7 C
3 k2 Y. m6 R! |8 ?" t8 Z, X# s大家帮我看看这个零件怎么 车削加工,原工件外形尺寸ф15,要车削加工一个角度1.5°(图中绿色部分),急求!!!6 T" ^: y7 C! Y2 b, l
2 A8 w) j6 D# ]1 P8 N
补充说明一下,原工件外形尺寸是ф15,现在要把ф15的外圆加工一个角度1.5°,图中绿色部分为加工结束后的形状示意
未命名.JPG
发表于 2011-8-10 21:47:42 | 显示全部楼层 来自: 中国黑龙江哈尔滨
这个工件不用车削,如果毛坯右余量需要车削就按照Φ15加工。
$ p  ^/ V$ F8 y7 h7 V9 e# B然后用台钳夹住外圆把两个端面按角度要求加工出来就行了。
发表于 2011-8-10 21:50:32 | 显示全部楼层 来自: 中国江苏常州
本帖最后由 ftgww123 于 2011-8-10 21:54 编辑
: A  y/ A7 u' N, @& C6 X. z
2 a/ p, O2 h& ~( [" P3 n楼上说的有一定道理,但不是Φ15了吧。
发表于 2011-8-10 21:58:46 | 显示全部楼层 来自: 中国江苏无锡
楼主这个零件图纸视图不全啊,缺一张左视图
+ m! v+ D) G) `! P/ J4 w可以理解为:1、上下铣各铣一个15度的扁; S% K$ l$ v8 u% [, F2 \; L
            2、或者如3#所说
发表于 2011-8-10 22:00:21 | 显示全部楼层 来自: 中国江苏常州
楼主必须确认有关要求。
 楼主| 发表于 2011-8-11 07:21:01 | 显示全部楼层 来自: 中国安徽蚌埠
2# oilsuperman
4 H) i! X0 [% G" V4 b# {# B* M! X5 ]9 v* m# ]8 i) K& C& I
谢谢答复,但是我要补充说明一下的是,原工件外形尺寸已经成形是ф15,现在要把ф15的外圆加工一个角度1.5°,图中绿色部分为加工结束后的形状示意
发表于 2011-8-11 07:28:16 | 显示全部楼层 来自: 中国山东烟台
应该是椭圆吧,做个夹具把
发表于 2011-8-11 08:38:21 | 显示全部楼层 来自: 中国上海
很难想象这个零件的实际形状,问一下我给的示意图中问号尺寸处的截面形状是怎么样的?其他方向的视图有吗?
dd.jpg
发表于 2011-8-11 11:27:06 | 显示全部楼层 来自: 中国湖北武汉
用镗床加工吧,工件与机床主轴保持一个角度,上刀排镗外圆
发表于 2011-8-11 12:37:12 | 显示全部楼层 来自: 中国河北石家庄
楼主的表述不清楚,请问下面那个角度边是圆的还是平的呢?车只能是旋转车,车出来是一个圆弧,你所标的应该是一个平面,面与面之间才能有角度,那就不能车了,需要铣平面。
发表于 2011-8-11 13:14:34 | 显示全部楼层 来自: 中国广东深圳
算出加工后的直径是多少?,直接车削,端面铣相应的斜度。
 楼主| 发表于 2011-8-11 19:41:27 | 显示全部楼层 来自: 中国安徽蚌埠
10# likingtao - [% G" c8 `8 {! L
标注角度是指在原来φ15的基础上车削一个角度,车削后也应该是一个回转体,而不是一个斜面
发表于 2011-8-11 22:04:11 | 显示全部楼层 来自: 中国重庆
楼主,你能标注一下φ15的轴心线吗?
发表于 2011-8-11 22:15:59 | 显示全部楼层 来自: 中国江苏常州
楼主,搞个三维图也行。
发表于 2011-8-11 22:23:05 | 显示全部楼层 来自: 中国重庆
本帖最后由 qshnfj 于 2011-8-12 08:45 编辑
. I. l, h# D. i  Q4 u, k8 s
/ F4 o9 H! S: @! _& l楼主你是给大家开玩笑吧,你这个件沿1.5°截面是圆,而垂直母线的截面则是椭圆,其长轴为15,短轴为14.99468。我感觉椭圆好像好加工一些,但要将两端面加工成与短轴相交的母线呈1.5°可能要困难一些,有检测手段吗?
发表于 2011-8-12 01:52:33 | 显示全部楼层 来自: 中国浙江杭州
本帖最后由 yueren1980 于 2011-8-12 01:58 编辑 / m. T+ \% A% z4 c

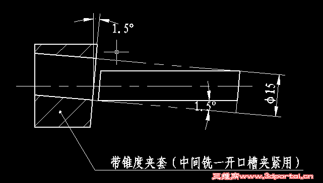
, ]* Q1 f" f1 [; o# E5 h- F5 d这种零件很普遍,做一个带角度的夹套就可以车加工了,示意图如下:7 H+ P$ z* w; l" v( s$ I
QQ截图20110812014950.png
* @& }; X* A  }# t1 H( W8 _& r( J% T" p
我觉得楼主画出来的只是零件的局部视图,如果你把零件全部画出来,这个夹具就可以更完善了,你只画一个局部位置,大概结构就是上面的样子,因为如果不是局部视图的话,就没有必要去车加工了,去拿15的棒子去车细,就为了两端倒斜面,那不是吃饱没有事干才怪,楼主如果真要别人帮助,建议将视图全部发出来,没有必要躲躲藏藏。
' V. e4 g* X  ]* {* y' O说句不该说的话,机械方面的零件不存在什么秘密,明白人一看就知道,不明白的人看了也白看。
% p4 D8 Z& F9 z7 l) G我感觉蛮多人求助,又不把图纸搞全和完善,搞得大家模模糊糊,差之一厘,失之千里,做机械就要严谨。2 U3 W4 j& i7 ?3 V% P! E, j
建议版主,如果以后求助的贴子,大家都看不懂就扣分,我想总不会大家水平都差到看不懂图纸吧。

评分

参与人数 1三维币 +2 收起 理由
mengfansheng + 2 应助

查看全部评分

发表于 2011-8-12 08:49:23 | 显示全部楼层 来自: 中国山西太原
1  先车成φ15的圆柱。/ k% s0 M' W7 E- C. \: Z
2  在铣床上铣1.5°的二斜面。用平口钳夹二端面,工作台摇1.5°,铣侧面。另一斜面同样方法加工。
头像被屏蔽
发表于 2011-8-12 08:53:12 | 显示全部楼层 来自: 中国辽宁大连
提示: 作者被禁止或删除 内容自动屏蔽
发表于 2011-8-12 09:00:41 | 显示全部楼层 来自: 中国重庆
看大家说了这么多,我看9楼的方法可行,只是不知零件的长度镗头的行程是否满足。
 楼主| 发表于 2011-8-12 09:19:45 | 显示全部楼层 来自: 中国安徽蚌埠
16# yueren1980
0 v8 [) n7 L% A- c- G( P你好,首先要谢谢你!其次需要说明的是:这只是一个设计构想,目前还没有图纸,因为觉得这样的设计进行批量加工可能有些难度,所以求助大家,帮忙出出主意的
发表于 2011-8-12 22:41:45 | 显示全部楼层 来自: 中国浙江杭州
如果是图纸,最好在你的斜面轴端部有一个台阶,这样好定位车你的斜面轴。
. Y+ _5 d6 y# I7 Q6 U; n, d这种零件很普遍,我们都做好多了。
发表于 2011-8-19 22:53:07 | 显示全部楼层 来自: 中国河南洛阳
难道不是一个直径为Φ13.65,长度为51.5365的圆钢,铣出1.5°的斜面!
发表于 2011-8-20 14:15:56 | 显示全部楼层 来自: 中国浙江杭州
20# zxpzxp 8 b9 ?# u& b) A% z: [$ G, m8 n

3 H0 _9 E8 M' }1 @' S真要批量生产,何必这么麻烦,计算出绿色部分直径是多少,先车到这个尺寸,接着进刀旋转1.5°车端面就可以了
发表于 2011-8-20 15:55:08 | 显示全部楼层 来自: 中国重庆
楼主公司里只有车床?如果安排其他设备是很好实现的,为什么要钻牛角尖呢?
发表于 2011-8-20 23:21:41 | 显示全部楼层 来自: 中国上海
十六楼说的很明白了,做设计的,连图纸的几个最基本的要素都没给全,不明不明白的,怎么帮你?如果没设计好,等你设计好了再来问,设计好了就给个三视图或三维图,别磨磨唧唧的,明摆着浪费时间嘛,
发表回复
您需要登录后才可以回帖 登录 | 注册

本版积分规则


Licensed Copyright © 2016-2020 http://www.3dportal.cn/ All Rights Reserved 京 ICP备13008828号

小黑屋|手机版|Archiver|三维网 ( 京ICP备2023026364号-1 )

快速回复 返回顶部 返回列表