QQ登录

只需一步,快速开始

登录 | 注册 | 找回密码

三维网

 找回密码
 注册

QQ登录

只需一步,快速开始

展开

通知     

查看: 5438|回复: 18
收起左侧

[求助] 请问该图中平衡阀的原理

[复制链接]
发表于 2011-8-12 22:28:08 | 显示全部楼层 |阅读模式 来自: 中国广西贵港

马上注册,结识高手,享用更多资源,轻松玩转三维网社区。

您需要 登录 才可以下载或查看,没有帐号?注册

x
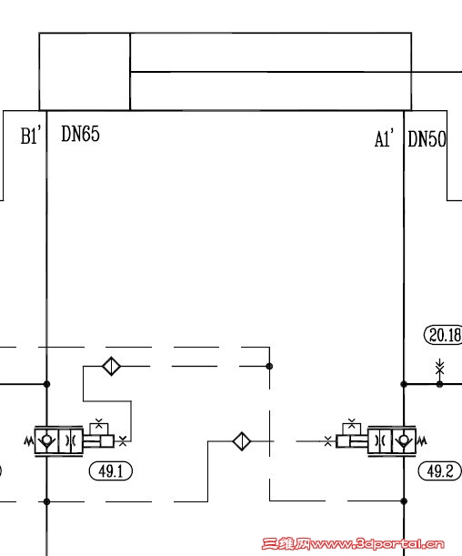
请问该图中(1)平衡阀的原理, v/ d1 K% J0 M0 Z
(2)失压的时候它怎么动作
9 L+ v: @: ~+ F7 j8 |+ C4 I谢谢!
未命名2.jpg
发表于 2011-8-12 22:38:58 | 显示全部楼层 来自: 中国宁夏银川
力士乐平衡阀,站内有相关介绍
发表于 2011-8-12 23:02:14 | 显示全部楼层 来自: 中国山西临汾
就49.1来说,当平衡阀右侧出现高压油后推动主阀芯向左移动,那么此时平衡阀处于节流工作状态,当右侧无高压油时,平衡阀左侧的弹簧使得主阀芯向右移到,那么此时平衡阀就相当于一个单向阀。
 楼主| 发表于 2011-8-13 11:01:30 | 显示全部楼层 来自: 中国广西贵港
3L的兄弟,是不是这样理解:当右侧管路有高压油时,高压油经过49.2平衡阀内的单向阀到有杆腔,控制油使得49.1平衡阀主阀芯向右移动,回油就通过节流阀回油箱?
发表于 2011-8-14 20:33:36 | 显示全部楼层 来自: 中国山东滨州
百度文库有一篇文章《平衡阀在液压系统中的应用及故障排除》,可以看一下,专门介绍这种平衡阀的。
发表于 2011-8-17 13:41:50 | 显示全部楼层 来自: 中国山东烟台
本帖最后由 cnsdwsm 于 2011-8-17 13:44 编辑
3 m) H. W3 V; m; l' }  i
0 U& N' U4 G% r6 w3 B% p3楼理解有误。
9 T, }7 o/ J2 j此油路工作原理是:! L! }( Y+ R4 J/ @5 g# f# |
一、活塞杆伸出,即大腔进油。
: J& Z- R5 i" h- C& G1、此时左侧油路下端进油,油液经过49.1单向阀,经B1进入大腔。此时小腔内油液被49.2阀单向阀阻止,油路不通。
* [1 p; Z1 B% U2、大腔压力持续升高,达到49.2阀开启压力,阀芯右移;小腔油经A1,49.2阀节流口流出。即回油调速。
# f4 x2 @# T5 |7 x3、如管路失压,则49.2阀阀芯左移,减少节流口,甚至关闭节流口阻断油路,此时活塞杆减速乃至停止,压力升高后继续伸出。$ f5 H  M5 j$ t3 t! K  n6 W
4、若活塞杆失速(即超速),则大腔内压力必然降低,状况如3所述,从而保证能够正常速度工作。
/ [1 ?" X% E! k  x二、活塞杆退回,即小腔进油。工作原理类似一。http://chrome://livemargins/skin/monitor-background-horizontal.png        http://chrome://livemargins/skin/monitor-background-vertical.png        http://chrome://livemargins/skin/monitor-play-button.png

评分

参与人数 1三维币 +3 收起 理由
柠檬咖啡 + 3 积极应助

查看全部评分

 楼主| 发表于 2011-8-20 22:10:12 | 显示全部楼层 来自: 中国广西贵港
谢谢各位!
发表于 2011-8-21 11:03:58 | 显示全部楼层 来自: 中国江苏镇江
诸位是不是说行有点复杂了,就是回油的流量和进油的压力成正比关系。
发表于 2011-10-6 13:30:54 | 显示全部楼层 来自: 中国山东潍坊
力士乐fd平衡阀
发表于 2011-11-30 15:08:44 | 显示全部楼层 来自: 中国江苏苏州
谢谢6楼兄弟的分析
发表于 2011-11-30 16:04:26 | 显示全部楼层 来自: 中国河南新乡
这个平衡阀可以比作液压锁(只是便于理解),前者连续控制,后者点控制。
发表于 2011-11-30 16:12:49 | 显示全部楼层 来自: 中国上海
平衡阀可以实现稳速下降,当油缸下降速度大于流量的速度,进油口必然失压,此时控制油口压力降低,平衡阀阀芯归位,平衡阀由节流状态转换为单向截止状态,此时油缸必然减速,直至P口重新建立压力
发表于 2011-11-30 20:34:09 | 显示全部楼层 来自: 中国四川成都
3L说的没错啊,我没发现有什么错,6L说的是3L相反的工况
发表于 2011-12-2 13:20:08 | 显示全部楼层 来自: 中国北京
3L说的没错啊,6L说的是3L是两种工况。
发表于 2011-12-4 14:23:58 | 显示全部楼层 来自: 中国陕西咸阳
看系统图是由两个平衡阀组成的双向平衡回路,用于油缸双向都存在所谓的“负负载”的情况。工作原理如6楼
发表于 2011-12-5 08:59:31 | 显示全部楼层 来自: 中国湖北十堰
这种平衡阀我厂有使用,效果很好。比用顺序阀的效果好
发表于 2012-4-2 11:15:50 | 显示全部楼层 来自: 新加坡
13和14楼真是搞笑
* y  D0 x& m1 J# ]) m你怎么看出人家6楼和3楼说的相反啦???- r& f$ h' k) M) H9 p0 T
6楼是对3楼最有力的补充,回答的相当完美!
发表于 2012-4-2 13:29:39 | 显示全部楼层 来自: 中国四川成都
楼上的,我没觉的我说的很搞笑
6 K) X/ y9 D) F+ D/ y3L说的是油缸缩回的工况,6L说的是油缸升出的工况,搞笑吗?
发表于 2012-4-5 22:24:26 | 显示全部楼层 来自: 中国天津
这两个平衡阀之间是用管路连接吗?我们的油缸有用到专门设计的螺纹插装平衡阀,内部连通。
发表回复
您需要登录后才可以回帖 登录 | 注册

本版积分规则


Licensed Copyright © 2016-2020 http://www.3dportal.cn/ All Rights Reserved 京 ICP备13008828号

小黑屋|手机版|Archiver|三维网 ( 京ICP备2023026364号-1 )

快速回复 返回顶部 返回列表