QQ登录

只需一步,快速开始

登录 | 注册 | 找回密码

三维网

 找回密码
 注册

QQ登录

只需一步,快速开始

展开

通知     

全站
5天前
查看: 4208|回复: 21
收起左侧

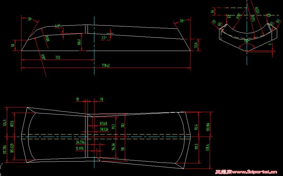
[求助] 请教:哪位高手能用solidworks画此图?

[复制链接]
发表于 2011-8-16 16:26:19 | 显示全部楼层 |阅读模式 来自: 中国湖北黄石

马上注册,结识高手,享用更多资源,轻松玩转三维网社区。

您需要 登录 才可以下载或查看,没有帐号?注册

x
本帖最后由 bush9898 于 2011-8-17 11:15 编辑 + y% s+ w! i$ C& Y

4 B% H5 ?$ a/ d3 L, a请教:哪位高手能用solidworks画此图?最好是用SW07画。
1.jpg

1.rar

66.67 KB, 下载次数: 166

发表于 2011-8-16 23:08:54 | 显示全部楼层 来自: 中国广东东莞
可能是本人没看懂吧,感觉主视图与左视图对不上号。从左视图看上去主视图上下方向应该有3个面才对,可是主视图上只有2个面?
 楼主| 发表于 2011-8-17 12:39:48 | 显示全部楼层 来自: 中国湖北黄石
cad图纸已上传,请高手帮忙画一下,谢谢!
发表于 2011-8-17 20:16:23 | 显示全部楼层 来自: 日本
3# bush9898
$ o6 G4 a5 h7 z! v/ H
: W) y! V" b  v# h4 M; M" K5 R0 \2 i6 H- t% G7 k$ m2 G/ o
你是完全一点不会呢?还是让别人给你做?& u- m5 }4 O& d

/ R. h" P# }* Y- v2 `还是看不懂图纸?
发表于 2011-8-17 20:18:41 | 显示全部楼层 来自: 日本
2# tangcarlos3d % a* K+ f3 w, f; m/ ]/ J9 d
5 b* q; L2 X0 t6 p8 r* |. a; U
. `) ^# W6 I9 d+ Q, O8 q1 v0 j- ?* S
图纸都不完整?叫人怎么去画
发表于 2011-8-17 20:23:49 | 显示全部楼层 来自: 中国湖北武汉
并不是太难呀!

评分

参与人数 1三维币 -2 收起 理由
chenjun520601 -2 画出来才是真理

查看全部评分

 楼主| 发表于 2011-8-17 21:08:06 | 显示全部楼层 来自: 中国江苏泰州
是厂家发给我的图纸,用SW画了两天没有画出来,所以请高手帮忙
发表于 2011-8-20 11:34:02 | 显示全部楼层 来自: 中国浙江杭州
有人画了么?. W/ L0 ?$ f% r) ]# b/ Z- N
我表示00看不懂,不知道怎么画~' r6 o/ r* E7 j8 Y7 q4 K- V0 b
求学习
发表于 2011-8-23 10:34:47 | 显示全部楼层 来自: 中国江苏扬州
你贴的CAD图画的不对呀   怎么画
发表于 2011-8-23 14:51:24 | 显示全部楼层 来自: 中国山东潍坊
做了一个,不知道对不对?不过你的二维图确实存在问题。 零件2.JPG 零件1.JPG
发表于 2011-9-3 08:58:46 | 显示全部楼层 来自: 中国浙江杭州
这个叫导板,10楼画的正确
发表于 2011-9-3 09:09:50 | 显示全部楼层 来自: 中国广东东莞
本帖最后由 tangcarlos3d 于 2011-9-3 09:15 编辑 $ i& v( Y  B, K3 g- d% E
做了一个,不知道对不对?不过你的二维图确实存在问题。19321711932172
2 X* P, G1 D3 X" U5 {5 ]7 _( Tykpsky 发表于 2011-8-23 14:51 http://www.3dportal.cn/discuz/images/common/back.gif

' ^5 |1 l8 u4 q9 H& a, z10楼请用你的模型贴三视图验证看看原图左视图对不对。最好也把3D模型传上来让大家学习学习。
发表于 2011-9-3 09:32:42 | 显示全部楼层 来自: 中国福建厦门
哪位高手能用solidworks画此图
发表于 2011-9-3 15:30:14 | 显示全部楼层 来自: 中国江苏无锡
10楼应该是不对的..但是呢也就基本这个样....
# O& j( w! z3 Y/ q) `9 q* P  G
  q! y% @% d8 a1 q它这图中显示每个面的斜度都不一样..真是吃饱了BT
发表于 2011-9-4 18:15:29 | 显示全部楼层 来自: 中国四川成都
真有点难哦。。。
 楼主| 发表于 2011-9-8 12:57:42 | 显示全部楼层 来自: 中国湖北黄石
本帖最后由 bush9898 于 2011-9-8 16:48 编辑
# ]! G0 J& J( I5 |/ o# \
1 o- g2 G9 m) |) {10楼的朋友,你画的正确。能否上传三维模型供大家学习?谢谢!我也画了,但就是画不出你中间红色部分。
1.png
2.png
发表于 2011-9-13 17:07:16 | 显示全部楼层 来自: 中国山东潍坊
不好意思,大家说画的不准我就删了,我使用放样来做的,中间的红色你可以尺寸不变然后拉伸或者放样都可以做得出来,试试看。如果不行,我就在做一份,呵呵
 楼主| 发表于 2011-9-13 18:38:48 | 显示全部楼层 来自: 中国广东揭阳
画得基本正确,能发源文件吗?
发表于 2011-9-14 15:57:31 | 显示全部楼层 来自: 中国江苏泰州
这是钢管厂用的导板
发表于 2011-9-14 16:48:41 | 显示全部楼层 来自: 中国山东潍坊
零件2.rar (233.98 KB, 下载次数: 67)
发表于 2011-9-21 18:57:55 | 显示全部楼层 来自: 中国广东佛山
谢谢分享,学习呢........
发表于 2011-9-27 19:32:22 | 显示全部楼层 来自: 中国广东深圳
学习下。。。。。
发表回复
您需要登录后才可以回帖 登录 | 注册

本版积分规则


Licensed Copyright © 2016-2020 http://www.3dportal.cn/ All Rights Reserved 京 ICP备13008828号

小黑屋|手机版|Archiver|三维网 ( 京ICP备2023026364号-1 )

快速回复 返回顶部 返回列表