QQ登录

只需一步,快速开始

登录 | 注册 | 找回密码

三维网

 找回密码
 注册

QQ登录

只需一步,快速开始

展开

通知     

查看: 2513|回复: 9
收起左侧

[已答复] 2管焊接,1管端面怎么加工?

[复制链接]
发表于 2011-8-17 10:43:44 | 显示全部楼层 |阅读模式 来自: 中国浙江杭州

马上注册,结识高手,享用更多资源,轻松玩转三维网社区。

您需要 登录 才可以下载或查看,没有帐号?注册

x
管2和管1焊接,画图时,管2端面是以管1内径尺寸为直径的圆柱切掉,但是实际是怎么加工实现的,管2的零件图上应该怎么标呢?
管.JPG
 楼主| 发表于 2011-8-17 12:37:33 | 显示全部楼层 来自: 中国浙江杭州
没人知道吗?高手呢?看帖的不知道麻烦回个不知道啊,是不是就我一个人不懂啊?
发表于 2011-8-18 00:09:47 | 显示全部楼层 来自: 中国浙江杭州
组焊图:+ _' j* O, D( V% b5 k# }$ V6 w2 A
QQ截图20110818000712.png
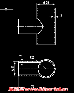
) v  r8 p* L8 H  [* h% P5 f管2零件图:$ D1 G+ J! i5 e7 `& L6 e
QQ截图20110818000721.png
7 T4 @4 l% v: Q, S8 y9 _- L左边圆弧直接在普铣上用44的铣刀铣就行了。1 n. v7 }: C) i: W0 [
我的尺寸是自己画的。
发表于 2011-8-18 01:41:58 | 显示全部楼层 来自: 美国
批量件一般都是楼上说的那样加工出焊接位置,严格的还要开焊接破口;& D* q8 L6 I* g. b
如果是单件要求也不严格的,焊工一般都会用用气割,差不多就算了。
发表于 2011-8-18 11:26:03 | 显示全部楼层 来自: 中国山西太原
如果二管直径不同,在大管上开一孔(割孔或钻孔),直径等于小管内径,再小管画出相贯线(按展开下料划线),按线割或铣切成形,然后焊接,焊缝为角焊缝。

评分

参与人数 1三维币 +2 收起 理由
渔樵 + 2 技术讨论

查看全部评分

发表于 2011-8-18 22:50:40 | 显示全部楼层 来自: 中国浙江杭州
圆管直接用立铣加工圆弧,多大圆弧就用多大的铣刀,直接铣就行,圆与圆相交,加工出来了就有相贯线。
7 L. K4 B, Z( G# f不需要画什么相贯线,那有那么麻烦。
! {( e* ?& ^  H# k看我画的图一组焊图就知道了,相贯线在主视图上,而俯视图其实就是两个圆柱贯穿,想铣多大圆弧就用多大铣刀,一刀就够了。
 楼主| 发表于 2011-9-2 10:58:16 | 显示全部楼层 来自: 中国浙江杭州
谢谢!看来我实际经验太少。应该去看看现场加工
发表于 2012-1-8 20:42:45 | 显示全部楼层 来自: 中国辽宁锦州
如果要求不严的话,并且量很大,直接在大圆管上钻孔,小圆不加工直接焊就可以。(注:在不影响管内流体流量流速的情况下)
发表于 2012-1-28 21:07:27 | 显示全部楼层 来自: 中国山东青岛
一般都是连同坡口一起手工气割,再进行打磨。
发表于 2012-3-17 18:43:56 | 显示全部楼层 来自: 中国河北邯郸
学习了哦,我是来学习的
发表回复
您需要登录后才可以回帖 登录 | 注册

本版积分规则


Licensed Copyright © 2016-2020 http://www.3dportal.cn/ All Rights Reserved 京 ICP备13008828号

小黑屋|手机版|Archiver|三维网 ( 京ICP备2023026364号-1 )

快速回复 返回顶部 返回列表