QQ登录

只需一步,快速开始

登录 | 注册 | 找回密码

三维网

 找回密码
 注册

QQ登录

只需一步,快速开始

展开

通知     

全站
7天前
查看: 4039|回复: 15
收起左侧

[讨论结束] 稀奇,大家有没有见过M9*1.25普通螺纹?

[复制链接]
发表于 2011-8-18 16:17:41 | 显示全部楼层 |阅读模式 来自: 中国广东东莞

马上注册,结识高手,享用更多资源,轻松玩转三维网社区。

您需要 登录 才可以下载或查看,没有帐号?注册

x
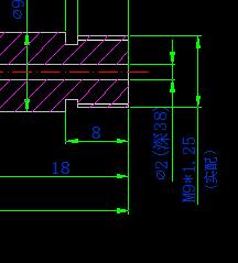
在公司的旧图档里看到M9*1.25的螺纹,真是稀奇了!
M9.JPG
发表于 2011-8-18 16:36:22 | 显示全部楼层 来自: 中国北京
写错了吧,应该是M8x1.25才对吧

评分

参与人数 1三维币 +2 收起 理由
plc + 2 参与讨论

查看全部评分

发表于 2011-8-18 16:41:59 | 显示全部楼层 来自: 中国台湾
M9*1.25这属M8系列第三类公制粗牙螺纹

评分

参与人数 1三维币 +2 收起 理由
plc + 2 参与讨论

查看全部评分

发表于 2011-8-18 16:59:13 | 显示全部楼层 来自: 中国山东东营
还真没用到过或这遇到过M9的螺纹。。。

评分

参与人数 1三维币 +2 收起 理由
plc + 2 参与讨论

查看全部评分

发表于 2011-8-18 17:48:32 | 显示全部楼层 来自: 中国北京
这个倒真没有见过,GB/T192;193;196里面只有M8.5X1.25(第二系列)。! R9 e3 M3 z, d, p7 C/ d1 G9 f& t
M9是第三系列,螺距只有1;0.75和0.5。没有1.25的。
3 X9 \. Q) f# `( J3 m这个应该是特制的螺纹吧。

评分

参与人数 1三维币 +2 收起 理由
plc + 2 技术讨论

查看全部评分

发表于 2011-8-18 18:12:29 | 显示全部楼层 来自: 中国湖南岳阳
第三系列,少用。
1.jpg

评分

参与人数 1三维币 +2 收起 理由
plc + 2 技术讨论

查看全部评分

 楼主| 发表于 2011-8-18 19:12:37 | 显示全部楼层 来自: 中国广东东莞
我们的一个设备供应商在一个经常要更换的零件上用的螺纹,我们每更换一个机种就要更换这个零件。不知那供应商是何居心!
发表于 2011-8-18 19:34:41 | 显示全部楼层 来自: 中国广东深圳
国标GB193-81、GB193-2003均有此螺经纹,第3系列粗牙螺距1.25,细牙螺距1.0、0.75、0.5都有。

评分

参与人数 1三维币 +2 收起 理由
plc + 2 技术讨论

查看全部评分

发表于 2011-8-18 20:37:53 | 显示全部楼层 来自: 中国上海
如果不需要通用的加工刀具、检具,零件上采用的螺纹用什么规格都无所谓。

评分

参与人数 1三维币 +2 收起 理由
plc + 2 技术讨论

查看全部评分

发表于 2011-8-18 22:00:44 | 显示全部楼层 来自: 中国上海
不稀奇 是有这种螺纹   手册上都有  。 未命名.jpg

评分

参与人数 1三维币 +2 收起 理由
plc + 2 技术讨论

查看全部评分

发表于 2011-8-18 22:02:27 | 显示全部楼层 来自: 中国上海
楼主  我建议你下个电子版的机械手册  很多问题就迎刃而解了

评分

参与人数 1三维币 +2 收起 理由
plc + 2 应助

查看全部评分

发表于 2011-8-19 09:27:57 | 显示全部楼层 来自: 中国山西太原
直径与螺距系列(GB/T 193-2003)中有规定:
直径与螺距标准组合系列.jpg

评分

参与人数 1三维币 +2 收起 理由
plc + 2 应助

查看全部评分

发表于 2011-8-20 16:40:18 | 显示全部楼层 来自: 中国湖南长沙
何必用这种呢,从成本的角度考虑用常规的,可能规格大点的还能比非常见的便宜

评分

参与人数 1三维币 +2 收起 理由
plc + 2 技术讨论

查看全部评分

发表于 2011-9-1 13:03:53 | 显示全部楼层 来自: 中国广东佛山
有些厂商为了商业母的为使用一些非标件或很少用的标准件(你只能买他的)
发表于 2011-9-3 12:49:10 | 显示全部楼层 来自: 中国江苏扬州
真没有注意这个M9螺纹,看了上面资料,长知识。不过建议,做设计,要选常用规格,实在没办法了,再选用特殊的规格。
发表于 2011-9-3 17:47:44 | 显示全部楼层 来自: 中国江苏无锡
不是别有用心,就是写错了
发表回复
您需要登录后才可以回帖 登录 | 注册

本版积分规则

Licensed Copyright © 2016-2020 http://www.3dportal.cn/ All Rights Reserved 京 ICP备13008828号

小黑屋|手机版|Archiver|三维网 ( 京ICP备2023026364号-1 )

快速回复 返回顶部 返回列表