QQ登录

只需一步,快速开始

登录 | 注册 | 找回密码

三维网

 找回密码
 注册

QQ登录

只需一步,快速开始

展开

通知     

查看: 1567|回复: 8
收起左侧

[讨论] 请大家帮忙分析下这种原理

[复制链接]
发表于 2011-8-20 19:29:00 | 显示全部楼层 |阅读模式 来自: 中国北京

马上注册,结识高手,享用更多资源,轻松玩转三维网社区。

您需要 登录 才可以下载或查看,没有帐号?注册

x
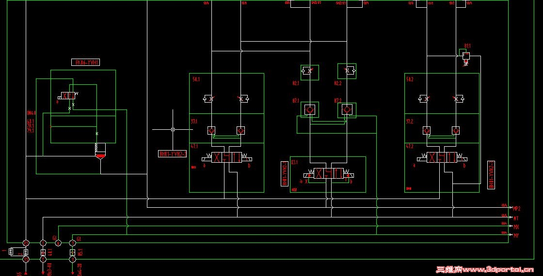
帮忙帮忙,现象是47.1得电时系统建立不起压力,油液通过液控单向阀87.1和87.2回油箱了
12.JPG
发表于 2011-8-20 19:50:51 | 显示全部楼层 来自: 中国四川成都
液控单向阀87.1和87.2的控制口仍有压力使其未能完全关闭,检查T油路的压力,或更换成开启压力再大些的液压锁。
发表于 2011-8-20 21:43:00 | 显示全部楼层 来自: 中国辽宁大连
同意楼上的 就是液控单向阀未完全关闭~
发表于 2011-8-21 09:55:03 | 显示全部楼层 来自: 中国福建龙岩
可以依次调下50.1、82.1、82.2节流阀,同时看下相对压力有没变化,再对症处理。
0 L: z, L+ Z. q, _个人观点只供参考。
 楼主| 发表于 2011-8-21 16:31:13 | 显示全部楼层 来自: 中国北京
就是因为T口压力太大,压力表测下来T口被压大概5Bar,这么低的压力怎么就把液控锁打开了呢,我们试过如果T口直接回油箱,中间不经过T口单向阀就没问题。
发表于 2011-8-21 23:38:56 | 显示全部楼层 来自: 中国福建龙岩
感觉泄油型单向阀有问题,拆看下。
* [+ j: ]% f$ b+ D$ \) f1 ?. m$ m2 p! e QQ截图未命名.jpg
发表于 2011-8-31 00:04:41 | 显示全部楼层 来自: 中国河北唐山
液压锁建议泄油直接回油箱,避免压力高,造成无法关闭。
发表于 2011-9-2 10:48:30 | 显示全部楼层 来自: 中国广东深圳
本帖最后由 厚积薄发 于 2011-9-2 10:49 编辑 % d3 K% I5 B  q, X8 O& u: D
' T: ~  D* {8 I; ~: K' C2 h1 y& y
液压锁需要接回油路时,需单接,不能接在总回油上由其是保压回路更不行,回油路有没有单向阀都不行,总回油压力有波动,锁闭不稳。
发表于 2011-9-2 14:18:20 | 显示全部楼层 来自: 中国重庆
液压锁需要接回油路时,需单接,不能接在总回油上由其是保压回路更不行,回油路有没有单向阀都不行,总回油压力有波动,锁闭不稳。
- [. s2 ?( C1 o4 W厚积薄发 发表于 2011-9-2 10:48 http://www.3dportal.cn/discuz/images/common/back.gif
不错,这种方式应该是最好的
发表回复
您需要登录后才可以回帖 登录 | 注册

本版积分规则


Licensed Copyright © 2016-2020 http://www.3dportal.cn/ All Rights Reserved 京 ICP备13008828号

小黑屋|手机版|Archiver|三维网 ( 京ICP备2023026364号-1 )

快速回复 返回顶部 返回列表