QQ登录

只需一步,快速开始

登录 | 注册 | 找回密码

三维网

 找回密码
 注册

QQ登录

只需一步,快速开始

展开

通知     

查看: 3400|回复: 12
收起左侧

[求助] 车削零件Φ50X5 Q235钢能用不停车夹具吗?

[复制链接]
发表于 2011-9-13 12:03:24 | 显示全部楼层 |阅读模式 来自: 中国广东江门

马上注册,结识高手,享用更多资源,轻松玩转三维网社区。

您需要 登录 才可以下载或查看,没有帐号?注册

x
本帖最后由 cyw 于 2011-9-16 19:30 编辑 7 {, V+ k2 T- \" K: x" t' m

8 d/ H% J$ m% _- }1 x' S请问:
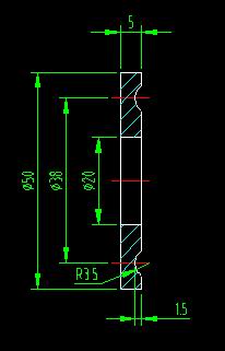
2 ?5 s; D- F3 ~      现有一零件,Φ50X5大,中间有通孔Φ20,在Φ50平面上 中心线Φ38处上加工R3.5圆弧槽,槽深1.5,能否利用不停车夹具加工此槽?有坛友有这方面经验吗?9 \8 v7 S6 e( V- L1 s. G+ n
     如果可以的话,装件有什么好办法?
" c3 P" [  i0 J2 B( N9 ]+ X+ C* \    谢谢!
" o: _' B! _& f0 u4 J     1.jpg     
7 R# y4 {: s5 U3 Q- L8 x
4 s: q! `) r7 k1 \5 c    注:本零件只问  可不可以用不停车夹具加工圆弧槽R3.5?
  e( b" U: f- h' ?6 o- Y  w$ v) X; A; P  x( N# t
   http://F:\\1.jpg
发表于 2011-9-14 12:40:18 | 显示全部楼层 来自: 中国广东深圳
上传图纸来帮助分析
发表于 2011-9-14 13:22:28 | 显示全部楼层 来自: 中国河南驻马店
完全可以的
发表于 2011-9-14 15:44:57 | 显示全部楼层 来自: 中国湖南岳阳
可以的,完全可以不停车加工
发表于 2011-9-15 10:52:32 | 显示全部楼层 来自: 中国山西太原
可以用不停车夹具加工。
 楼主| 发表于 2011-9-15 21:59:46 | 显示全部楼层 来自: 中国广东江门
谢谢各位回复,我准备搞一套试试。; o: i' a3 O4 m9 [' }( r

; o) K- `/ M7 e6 q. @         + _0 ?4 j0 d; R: @( s$ B2 `

5 k8 _1 Y& y8 N6 o, G; g" L$ F" e    请问哪位坛友有不停车夹具的图纸提供吗? 谢!
发表于 2011-9-16 09:30:06 | 显示全部楼层 来自: 中国江苏苏州
有点疑问啊5 H( ]1 r5 m/ i% Y0 S+ f# B
你这个工件不停车加工,意思难道是外圆 内孔 圆弧槽 以及圆弧槽的端面一起车?
- ?9 {6 B( h$ ~/ F1 f: x' w我的想法是是不是得先分为车一 车二可以可以选择车圆弧槽啊???
 楼主| 发表于 2011-9-19 22:52:08 | 显示全部楼层 来自: 中国广东中山
    零件图应该这样才对:' P2 t0 L& ^* l1 ]2 Y" ^
% M6 t& b( w& {/ j& P) \+ G- J

/ ]/ H, ?) W2 H- o& U      1.jpg
 楼主| 发表于 2011-9-19 23:04:43 | 显示全部楼层 来自: 中国广东江门
本帖最后由 cyw 于 2011-9-19 23:11 编辑 ! i1 ~+ Y2 U2 m

# o$ C! V8 m; x( M7 x! A, S+ C又问问:# o3 p6 t9 x- K4 p& N
; r. s2 T$ `" D' M' M  b% y
         这个不停车夹具中,螺纹挡圈  起什么作用?
1 o  Y6 ~" n$ F2 ^# E8 S+ t# F6 |- M9 S

; ]; I  |1 S* j  L) a         它跟弹簧夹头连接 还是跟 止推套 连接?   谢谢!& y" j9 U9 O1 a- G: I0 }1 t; [
/ F& h6 S, d, R/ M- V

7 T; _/ M+ {4 G        IMG0059A.jpg
发表于 2011-9-20 21:42:44 | 显示全部楼层 来自: 中国四川资阳
你好 楼主 请问你QQ好多呀 交流..
发表于 2011-11-22 10:24:39 | 显示全部楼层 来自: 中国辽宁大连
什么叫不停车夹具,真的不懂啊 谁知道告诉一下啊。
 楼主| 发表于 2012-1-15 16:34:14 | 显示全部楼层 来自: 中国广东江门
已使用不停车夹具加工这个零件,效果很好。
 楼主| 发表于 2012-1-15 16:35:38 | 显示全部楼层 来自: 中国广东江门
本帖最后由 cyw 于 2012-1-15 16:37 编辑
! A1 l) u' ~) |7 q/ M  X8 M* K- Q/ f; W& E1 A; d* L& O
已使用不停车夹具加工这个零件,不过在普通车床上完成,不知仪表车床行不。
发表回复
您需要登录后才可以回帖 登录 | 注册

本版积分规则


Licensed Copyright © 2016-2020 http://www.3dportal.cn/ All Rights Reserved 京 ICP备13008828号

小黑屋|手机版|Archiver|三维网 ( 京ICP备2023026364号-1 )

快速回复 返回顶部 返回列表