QQ登录

只需一步,快速开始

登录 | 注册 | 找回密码

三维网

 找回密码
 注册

QQ登录

只需一步,快速开始

展开

通知     

全站
7天前
查看: 1541|回复: 8
收起左侧

[求助] 一个焊接架的焊接问题和其上面的一条键槽设计及加工?

[复制链接]
发表于 2011-9-17 22:46:43 | 显示全部楼层 |阅读模式 来自: 中国广东肇庆

马上注册,结识高手,享用更多资源,轻松玩转三维网社区。

您需要 登录 才可以下载或查看,没有帐号?注册

x
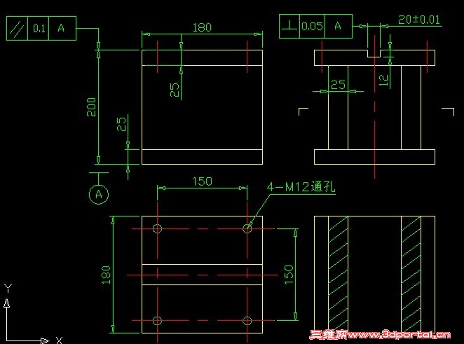
如图:A3板焊接起来的架子,用的时候上面垫百来斤重,安装有一个钻孔的动力头,用键条连接4 e6 N# U2 F, j4 A; g4 C' Q
问题1.象图纸那样,好焊接吗,感觉不够牢固,该如何加筋呢?
8 i1 C) e3 |# m& h2 H2 _1 r/ R9 X2.能保证键槽的加工精度吗?/ I) [- I& }3 D! Q4 y
3.如何能保证四个螺纹孔的中心线与键槽中心线平行和垂直呢。
焊接架(A3).jpg
 楼主| 发表于 2011-9-17 22:48:44 | 显示全部楼层 来自: 中国广东肇庆
CAD图纸解压

dijia.zip

22 Bytes, 下载次数: 4

发表于 2011-9-18 07:19:45 | 显示全部楼层 来自: 中国浙江嘉兴
按经验强度可以满足你的承重要求。
. w7 |. F" ~6 j7 m0.1mm的垂直度靠铆焊达到是不现实,先进行组焊,完成后再进行机加工,以此保证你的尺寸精度。3 V( B* y! H5 s  {
以此上表面及底面均需先加工,再进行开槽,螺孔加工。* j) [( w; C/ w% p$ ~- b2 z1 K
余量依据你们铆焊技能定,一般27mm即可。
发表于 2011-9-18 09:01:35 | 显示全部楼层 来自: 中国北京
1  先焊接好支架。
" x: {9 t; S9 D6 O0 n# X0 D2  加工基准面。! Z1 A" N5 t2 K9 C; j9 e! I
3  划线、钻孔。/ A8 ]. Z! |  O0 {3 ?3 f9 \" J, H
4  按线找正后刨或铣槽。
发表于 2011-9-18 09:36:42 | 显示全部楼层 来自: 中国浙江宁波
这个焊接件没有什么可担心了,200的高度,而且都是25厚的钢板,强度完全够了,不用筋也行,
$ Z% t9 ?1 V* W* `一般先点焊成型,然后再焊接。加工余量放5-6mm就够了,一台立式铣床就可以加工出来,
8 t9 s3 O' L$ S" \& U1 v( h' J) U一,先加工A基面,二,再加工对应面,铣面,分中铣槽。$ Q! I* l# V8 E
如果安装的东西是静载荷就不能这么厚钢板。
发表于 2011-11-20 15:05:43 | 显示全部楼层 来自: 中国辽宁大连
焊接后精加工。如果先加工靠焊接来保证精度是保证不了的。
发表于 2011-11-20 23:54:10 | 显示全部楼层 来自: 中国浙江台州
焊后再加工是可以保证的,单纯的焊接很难保证。
发表于 2011-11-21 08:00:49 | 显示全部楼层 来自: 中国江苏南通
螺纹孔的加工一般的精度就可以了,支架焊后最好退一下火。
发表于 2011-11-21 08:30:35 | 显示全部楼层 来自: 中国山东济南
从图示尺寸看,不用另外加筋,强度是足够了!
/ m5 ~5 ]7 v& l3 X0 m加工精度也不是什么问题,结构简单,平行度和垂直度的加工工艺也不复杂,基本属于再简单不过的件了。
( N7 f3 v- \' v; q) z1 i+ b不过,要注意焊后时效处理。否则,加工精度就难以保证了。
发表回复
您需要登录后才可以回帖 登录 | 注册

本版积分规则

Licensed Copyright © 2016-2020 http://www.3dportal.cn/ All Rights Reserved 京 ICP备13008828号

小黑屋|手机版|Archiver|三维网 ( 京ICP备2023026364号-1 )

快速回复 返回顶部 返回列表