QQ登录

只需一步,快速开始

登录 | 注册 | 找回密码

三维网

 找回密码
 注册

QQ登录

只需一步,快速开始

展开

通知     

全站
3天前
查看: 2034|回复: 9
收起左侧

[已解决] 大哥们紧急求救,求钣金长度

[复制链接]
发表于 2011-10-19 10:12:45 | 显示全部楼层 |阅读模式 来自: 中国江苏苏州

马上注册,结识高手,享用更多资源,轻松玩转三维网社区。

您需要 登录 才可以下载或查看,没有帐号?注册

x
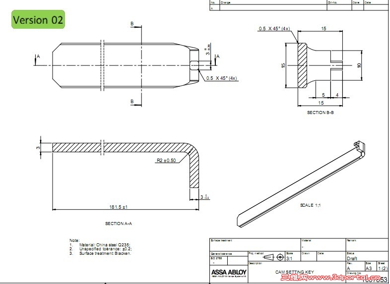
本人从来没有做过钣金,今天有个钣金图纸需要订料,固紧急求救,算零件的总长
aa.jpg
 楼主| 发表于 2011-10-19 10:14:42 | 显示全部楼层 来自: 中国江苏苏州
在线等,希望大家帮帮忙
发表于 2011-10-19 11:13:01 | 显示全部楼层 来自: 中国广东东莞
本帖最后由 repzk031 于 2011-10-19 11:14 编辑
; a; j# A4 ?8 w* P" y# P; ]" n6 \1 ^* w3 f+ w3 H
看图纸样子似乎不像是精密的钣金件,下料长度191.4,可以的.

评分

参与人数 1三维币 +2 收起 理由
chenjun520601 + 2 技术讨论

查看全部评分

发表于 2011-10-19 11:22:32 | 显示全部楼层 来自: 中国广东肇庆
这个长度是不够的,你最好是展开算一下,给点余量,然后做一个样品测试一下,待尺寸确定无误后,再批量投产

评分

参与人数 1三维币 +2 收起 理由
chenjun520601 + 2 技术讨论

查看全部评分

发表于 2011-10-19 11:22:43 | 显示全部楼层 来自: 中国江苏常州
展开长度192即可

评分

参与人数 1三维币 +2 收起 理由
chenjun520601 + 2 技术讨论

查看全部评分

发表于 2011-10-19 15:42:41 | 显示全部楼层 来自: 中国浙江杭州
楼主的问题到处都发。
发表于 2011-10-19 17:21:12 | 显示全部楼层 来自: 中国广东茂名
191就足够了
发表于 2011-10-25 16:34:58 | 显示全部楼层 来自: 中国广东佛山
看你用什么材料,: F: b  c( a+ Z* k; V0 c
如果精度要求不是很高的话192就可. `2 H% f, m. O
如果要求很高精度的就去查查他的K因子
发表于 2012-2-14 15:13:15 | 显示全部楼层 来自: 中国北京
这个展开是以软件为准,还是计算的为准呢?
发表于 2012-2-14 18:58:26 | 显示全部楼层 来自: 中国广东广州
本帖最后由 fsjt 于 2012-2-14 19:03 编辑
! d# l  A  ]( s8 Z5 N3 c
' O- J% x- _" X- i4 L- W20年前我在车间做冷作时,粗略计算方法,R角小于5mm,按板厚的内1/3计算,大于5mm的基本在1/2料厚的位置计算.......
发表回复
您需要登录后才可以回帖 登录 | 注册

本版积分规则


Licensed Copyright © 2016-2020 http://www.3dportal.cn/ All Rights Reserved 京 ICP备13008828号

小黑屋|手机版|Archiver|三维网 ( 京ICP备2023026364号-1 )

快速回复 返回顶部 返回列表