QQ登录

只需一步,快速开始

登录 | 注册 | 找回密码

三维网

 找回密码
 注册

QQ登录

只需一步,快速开始

展开

通知     

全站
7天前
查看: 2484|回复: 7
收起左侧

[讨论] 平台升降方式选择+减速

[复制链接]
发表于 2011-11-4 14:38:55 | 显示全部楼层 |阅读模式 来自: 中国内蒙古呼和浩特

马上注册,结识高手,享用更多资源,轻松玩转三维网社区。

您需要 登录 才可以下载或查看,没有帐号?注册

x
本帖最后由 lszdyx 于 2011-11-6 20:46 编辑
9 S" |. B& X; W
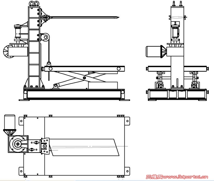
! B- {7 E, G6 e8 }- H; ~% n一、要实现升降平台的功能,厂家要求如下:8 M4 x+ @) O& S$ e
1、可升可降;
* |- Z2 }& R% a" b2、升降速度3~5mm/S;- w* F  M. M  d% J: @# Z& d: |  W
3、升降过程中任意位置可可靠锁紧;
+ N+ ^5 o0 H* g5 w1 w- H4、停止时不要产生大的冲击,升降平稳;5 r9 C+ h% t, }+ B, |) p; |" [7 j
5、该平台不得使用液压,可以使用电机驱动;
1 V/ y: X  I7 k# @' E% |# r" B6、平台上载荷重量为2T;: Q: D) v" T, t( ]* }) s" F/ O

1 m1 N8 K/ h  b二、针对以上,进行设计,模型图见图升降平面图、三维图,如下:1 q" c; L* p- g) I
( n( ~0 p0 A% t$ f- N
1、采用剪叉支架支撑平台;
3 W! A% ^# Q/ N5 J0 f5 R2、采用钢丝绳起吊;
+ P. C& c0 V& S" Q2 f4 W3、驱动机构采用涡轮蜗杆+摆线减速器+卷筒;" B) j( {. t- P9 x2 p: H
4、卷筒直径D=100MM;
6 T9 r. T$ j; G0 F) p) o5 Q5、平台行程S=500MM;) k- R- J6 D& }/ ~; ]" s- |0 q0 a

% j2 v2 y6 C! K5 C三、问题如下:
& Y/ L, K1 j) Z9 \$ B& I. T% [1、这种结构是否可行?
( d$ w3 R# q0 b9 [* p2、卖减速器的厂家帮我选择RV130-WB120减速器,但是尺寸有点大,能否选小一点的?
, A& |% {9 h& z/ b: D' _3、除了用电机减速器外,在这种结构中,还有没有更为可靠的驱动装置,既能升降,又能自锁,速度还能达到要求,功率也满足使用?# M& q5 X6 M3 T5 J
4、在这个模型中,采用了卷筒,本人从未设计或接触过这类东西,不知道如何设计卷筒,钢丝绳在卷筒上又怎么固定??
升降平面图.jpg
升降三维图.jpg
升降三维图2.jpg
升降三维图3.jpg
升降三维图4.jpg
发表于 2011-11-4 19:42:43 | 显示全部楼层 来自: 中国广东佛山
楼主的问题描述的不是很清楚,比如你的平台面积多大?稳定性要求多高等!平台升降的方法有很多种,也不一定要用电机卷扬的方式。
发表于 2011-11-9 16:09:52 | 显示全部楼层 来自: 中国新疆乌鲁木齐
厂里做了个累似的' q' [; e4 Q6 r# U
不过是用的链轮升降 刹车电机驱动
发表于 2011-11-17 15:04:26 | 显示全部楼层 来自: 中国广东中山
会设计,但设计这个东西成本太高,可以说不是很实用。能实现这个动作的很多,可以用把减速电机直接安装到下面,用齿轮,丝杆,链条等都可以实现这个动作。那样就会省去你那个大支架!

评分

参与人数 1三维币 +2 收起 理由
天际孤帆 + 2 鼓励交流

查看全部评分

发表于 2011-11-21 20:23:09 | 显示全部楼层 来自: 中国山东济南
楼主设计的结构若改卷筒为螺旋丝杠可能会更好一些。! Z6 h7 Y) F5 R! M+ |8 k+ W
同时,也提供给你一个我曾经设计应用过的“四丝杠同步升降机构”供你参考。具体结构见下图:
四丝杠同步升降机构.jpg

评分

参与人数 1三维币 +3 收起 理由
天际孤帆 + 3 鼓励交流

查看全部评分

发表于 2011-11-23 20:05:43 | 显示全部楼层 来自: 中国辽宁沈阳
你的剪式平台很好,但是动力卷筒方式不好,升降停位不准,且不安全。可以采用电动推杆,电动机可以换制动电动机。仿液压缸方式安装即可,供参考。

评分

参与人数 1三维币 +2 收起 理由
天际孤帆 + 2 鼓励交流

查看全部评分

发表于 2011-11-24 09:03:44 | 显示全部楼层 来自: 中国江苏苏州
楼主你好,关于这个剪式升降台我曾经也尝试过这个结构,固然它的结构很简单,但有一个很大的弊端,当平台的剪式连杆平行的时候,会产生一个死角现象。随着连杆的夹角变大,电机的负载也会随之变小。总之,那根钢丝绳的受力不是恒定的。
) B+ V' ?+ {. u5 p0 ?5 p8 m! {: o所以本人意见:这个结构用于升降较重的物体时不适合。

评分

参与人数 1三维币 +2 收起 理由
天际孤帆 + 2 鼓励交流

查看全部评分

发表于 2011-11-24 16:02:26 | 显示全部楼层 来自: 中国黑龙江哈尔滨
本帖最后由 wakang 于 2011-11-24 22:46 编辑 9 o* T9 ?( K2 m: |* j) n6 u6 {& ~
9 g, f9 S4 U; H/ {7 l
建议你采用丝杠驱动式升降台,这样靠丝杠可以实现可靠的自锁。如果不想自己做丝杠的话可以用丝杠升降机。避免启停冲击你可以采用变频调速。你的设计中采用剪叉导向,因行程很小可用导轨代替,这样效果好些。
: C8 e0 x* \% j. F( g2 s
也可采用齿轮齿条驱动式,但你要考虑制问题,光靠制动电机不行,还要加前端制动器。5 |5 D3 r! _$ o, g
hlj_yzl 发表于 2011-11-24 16:06 http://www.3dportal.cn/discuz/images/common/back.gif

评分

参与人数 1三维币 +2 收起 理由
天际孤帆 + 2 鼓励交流

查看全部评分

发表回复
您需要登录后才可以回帖 登录 | 注册

本版积分规则

Licensed Copyright © 2016-2020 http://www.3dportal.cn/ All Rights Reserved 京 ICP备13008828号

小黑屋|手机版|Archiver|三维网 ( 京ICP备2023026364号-1 )

快速回复 返回顶部 返回列表