QQ登录

只需一步,快速开始

登录 | 注册 | 找回密码

三维网

 找回密码
 注册

QQ登录

只需一步,快速开始

展开

通知     

查看: 1220|回复: 5
收起左侧

[求助] 不使用液压的升降平台中的相关问题咨询

[复制链接]
发表于 2011-11-6 20:23:26 | 显示全部楼层 |阅读模式 来自: 中国内蒙古呼和浩特

马上注册,结识高手,享用更多资源,轻松玩转三维网社区。

您需要 登录 才可以下载或查看,没有帐号?注册

x
本帖最后由 lszdyx 于 2011-11-6 20:44 编辑 ( f* h9 {; b# h% K8 B8 b

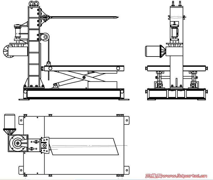
1 y. V5 [8 @2 O* z6 f一、要实现升降平台的功能,厂家要求如下:0 _8 J4 E( w# X$ O( y5 W; d
1、可升可降;$ i( w9 Z/ Y$ K1 h" h) d. M! w7 d, @
2、升降速度3~5mm/S;
' h  E. o/ v* c0 [( z7 J3、升降过程中任意位置可可靠锁紧;" P. g4 R+ q7 y2 W- `8 O4 k4 h
4、停止时不要产生大的冲击,升降平稳;
0 ~$ f. ~4 I, E! n* @) U5、该平台不得使用液压,可以使用电机驱动;3 h1 E2 p6 K* d
6、平台上载荷重量为2T;
, E* a- C, x4 o! j- L! l7 z6 y2 Y: ?
$ k5 C7 x; i  K$ C( a! h' L- i1 L二、针对以上,进行设计,模型图见图升降平面图、三维图,如下:
1 A* j& R& _2 h
1 U! L1 \# C, o- E+ z2 j- a1、采用剪叉支架支撑平台;
3 C* j" |. o8 `. Z( O+ ]) G5 L2、采用钢丝绳起吊;
/ H2 }( M4 O% y3、驱动机构采用涡轮蜗杆+摆线减速器+卷筒;
. d+ m1 Y1 _  N. r3 B4、卷筒直径D=100MM;
! M$ G/ j0 B& d: b% o- ?! ~9 o5、平台行程S=500MM;
* D/ p6 b& g3 B" ^2 D6 C1 t: [
' H( s! m3 U* l, V8 `三、问题如下:
# X' C. b6 ~. F1、这种结构是否可行?
: E5 q3 q8 v9 W" H" L2 `2、卖减速器的厂家帮我选择RV130-WB120减速器,但是尺寸有点大,能否选小一点的?
- D" O1 d; j; y/ V- J4 B3、除了用电机减速器外,在这种结构中,还有没有更为可靠的驱动装置,既能升降,又能自锁,速度还能达到要求,功率也满足使用?
; R# S3 K8 m; N' E4、在这个模型中,采用了卷筒,本人从未设计或接触过这类东西,不知道如何设计卷筒,钢丝绳在卷筒上又怎么固定??
升降平面图.jpg
升降三维图.jpg
升降三维图2.jpg
升降三维图3.jpg
升降三维图4.jpg

评分

参与人数 1三维币 +2 收起 理由
自流井 + 2 很好的方案呀

查看全部评分

发表于 2011-11-7 09:05:10 | 显示全部楼层 来自: 中国江苏南通
很不错的方案图呀,只需再具体完善了* T; I' m- s5 }. @) u, E: ?2 _

* }3 W) \) G+ k% W- I$ X" }  O4 J, D9 ]3 Y
用机械比液压还更可靠的
发表于 2011-11-7 09:27:10 | 显示全部楼层 来自: 中国上海
你这个平台多大,最低位置多少?剪刀叉上受力、各个支点受力是否计算过?还有就是急速刹车时造成的冲击结构是否能够承受?等等。
发表于 2011-11-7 09:29:26 | 显示全部楼层 来自: 中国上海
还有就是急速刹车对钢丝绳的影响,等等
发表于 2011-11-7 10:03:51 | 显示全部楼层 来自: 中国山东德州
卷筒竖着放置会不会导致缠绳比较费劲,可以借鉴一下电动葫芦采用的排绳器和滑轮组,这样会减小电机功率。不知道这个平台是干什么的,但是像这样敞开式的结构,而且是2T的重物,没有保护装置是不行的
发表于 2011-11-7 16:04:44 | 显示全部楼层 来自: 中国江苏无锡
针对问题3 可参考横臂钻床 横臂升降方式 用丝杠方式 结构会紧凑一些
发表回复
您需要登录后才可以回帖 登录 | 注册

本版积分规则


Licensed Copyright © 2016-2020 http://www.3dportal.cn/ All Rights Reserved 京 ICP备13008828号

小黑屋|手机版|Archiver|三维网 ( 京ICP备2023026364号-1 )

快速回复 返回顶部 返回列表