QQ登录

只需一步,快速开始

登录 | 注册 | 找回密码

三维网

 找回密码
 注册

QQ登录

只需一步,快速开始

展开

通知     

查看: 1395|回复: 5
收起左侧

[教程] Solid Edge ST4以参数表方式出弹簧工程图

[复制链接]
发表于 2011-11-7 22:12:52 | 显示全部楼层 |阅读模式 来自: 中国浙江丽水

马上注册,结识高手,享用更多资源,轻松玩转三维网社区。

您需要 登录 才可以下载或查看,没有帐号?注册

x
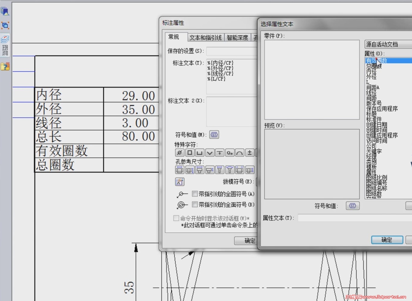
Solid Edge ST4以参数表方式出弹簧工程图# h6 X5 v# I, }2 G8 z7 B
掌握了二维弹簧的参数化画法后,再来尝试一下出个弹簧参数表,让数据更直观吧。而且这参数表设置好后是自动填写正确参数的,不需要你手动输入哦。6 F( J# X$ }) d) e" V' W
只需要记住一点。所有参数的改动最好不要直接在图形中改,而是打开变量表来修改,那样比较不易出错,而且圈数这一项只能在变量表中改,所以打开变量表改数值比图形中改一些,再得打开变量表改圈数要方便。+ l( R; l, s3 V5 G% ]5 m
) O+ u! W, f5 I4 ^' F, l
弹簧表.jpg
* C+ b; g( d$ p8 ?2 o2 ^4 [' X8 q9 `/ C0 W
弹簧表1.jpg
 楼主| 发表于 2011-11-7 22:15:14 | 显示全部楼层 来自: 中国浙江丽水
上传视频附件1-2

Solid Edge ST4以参数表方式出弹簧工程图.part01.rar

1.91 MB, 下载次数: 11

Solid Edge ST4以参数表方式出弹簧工程图.part02.rar

1.91 MB, 下载次数: 8

 楼主| 发表于 2011-11-7 22:17:02 | 显示全部楼层 来自: 中国浙江丽水
上传视频附件3-4

Solid Edge ST4以参数表方式出弹簧工程图.part03.rar

1.91 MB, 下载次数: 8

Solid Edge ST4以参数表方式出弹簧工程图.part04.rar

1.91 MB, 下载次数: 9

 楼主| 发表于 2011-11-7 22:19:56 | 显示全部楼层 来自: 中国浙江丽水
上传视频附件5-6

Solid Edge ST4以参数表方式出弹簧工程图.part05.rar

1.91 MB, 下载次数: 10

Solid Edge ST4以参数表方式出弹簧工程图.part06.rar

1.91 MB, 下载次数: 8

 楼主| 发表于 2011-11-7 22:21:41 | 显示全部楼层 来自: 中国浙江丽水
上传视频附件7-8

Solid Edge ST4以参数表方式出弹簧工程图.part07.rar

1.91 MB, 下载次数: 9

Solid Edge ST4以参数表方式出弹簧工程图.part08.rar

1.91 MB, 下载次数: 10

 楼主| 发表于 2011-11-7 22:22:21 | 显示全部楼层 来自: 中国浙江丽水
上传视频附件9

Solid Edge ST4以参数表方式出弹簧工程图.part09.rar

1.25 MB, 下载次数: 8

发表回复
您需要登录后才可以回帖 登录 | 注册

本版积分规则


Licensed Copyright © 2016-2020 http://www.3dportal.cn/ All Rights Reserved 京 ICP备13008828号

小黑屋|手机版|Archiver|三维网 ( 京ICP备2023026364号-1 )

快速回复 返回顶部 返回列表