QQ登录

只需一步,快速开始

登录 | 注册 | 找回密码

三维网

 找回密码
 注册

QQ登录

只需一步,快速开始

展开

通知     

查看: 1205|回复: 6
收起左侧

[教程] Solid Edge ST4二维弹簧图的比例控制方法1——块

[复制链接]
发表于 2011-11-8 08:59:19 | 显示全部楼层 |阅读模式 来自: 中国浙江丽水

马上注册,结识高手,享用更多资源,轻松玩转三维网社区。

您需要 登录 才可以下载或查看,没有帐号?注册

x
Solid Edge ST4二维弹簧图的比例控制方法1——块
3 b4 }+ k* h- v0 t9 `4 }2 L5 O+ g" ]( }. Q+ b& V7 |1 U
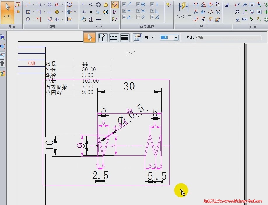
通过前面几个视频相信大家已经掌握了弹簧二维图及参数表的这些操作,但还有一个最大的难题没有攻破——那就是这样画出来的弹簧的比例控制及标注。这样设想一下,一根很微小的弹簧,怎么个画法,要想标注时操作简单,就是按1比1画图。但那样图形实在太小了,只占图纸页面的一点点,显然不符合作图尽量让视图铺满页面的原则。另外标注文字和图形也会不对称,字会显得很大。解决这个问题时,我首先想到的就是用块,就是将图形都画好后,设置成块,然后放大块比例,这样图形变大了,但标注还是正确的,不会出现5比1时,原本10的尺寸变成50的问题。做块时,千万别忘了把隐藏的那几个标注显示出来,否则把它们漏了,到时候驱动就乱了。但这样缩放,如果仍然用原来的标注,那么标注文字和箭头也会跟着缩放,当然也不符合GB规定的字号要求了。解决方法:根据实际缩放的比例进入样式调整字体大小。这个有点不方便,就是标注相对于图形的位置,编辑块时和退出后是不同的,所以全凭感觉来控制了。
- y8 B: q: R5 Y; }1 A9 k, e8 T: w1 Y# ?; x
块.jpg
% K" P8 q9 q+ `' U$ W2 t+ P. Q: C8 ?9 [8 n: U
块1.jpg 6 Y" ]2 _- |6 j# h
$ c1 u6 K) h' w7 y& ?! Y
块2.jpg
 楼主| 发表于 2011-11-8 09:00:08 | 显示全部楼层 来自: 中国浙江丽水
上傳視頻附件1-2

Solid Edge ST4二维弹簧图的比例控制方法1——块.part01.rar

1.91 MB, 下载次数: 3

Solid Edge ST4二维弹簧图的比例控制方法1——块.part02.rar

1.91 MB, 下载次数: 3

 楼主| 发表于 2011-11-8 09:00:41 | 显示全部楼层 来自: 中国浙江丽水
上傳視頻附件3-4

Solid Edge ST4二维弹簧图的比例控制方法1——块.part03.rar

1.91 MB, 下载次数: 6

Solid Edge ST4二维弹簧图的比例控制方法1——块.part04.rar

1.91 MB, 下载次数: 3

 楼主| 发表于 2011-11-8 09:01:12 | 显示全部楼层 来自: 中国浙江丽水
上傳視頻附件5-6

Solid Edge ST4二维弹簧图的比例控制方法1——块.part05.rar

1.91 MB, 下载次数: 4

Solid Edge ST4二维弹簧图的比例控制方法1——块.part06.rar

1.91 MB, 下载次数: 11

 楼主| 发表于 2011-11-8 09:01:50 | 显示全部楼层 来自: 中国浙江丽水
上傳視頻附件7-8

Solid Edge ST4二维弹簧图的比例控制方法1——块.part07.rar

1.91 MB, 下载次数: 3

Solid Edge ST4二维弹簧图的比例控制方法1——块.part08.rar

1.91 MB, 下载次数: 3

 楼主| 发表于 2011-11-8 09:02:36 | 显示全部楼层 来自: 中国浙江丽水
上傳視頻附件9-10

Solid Edge ST4二维弹簧图的比例控制方法1——块.part09.rar

1.91 MB, 下载次数: 3

Solid Edge ST4二维弹簧图的比例控制方法1——块.part10.rar

1.91 MB, 下载次数: 3

 楼主| 发表于 2011-11-8 09:02:47 | 显示全部楼层 来自: 中国浙江丽水
上傳視頻附件11

Solid Edge ST4二维弹簧图的比例控制方法1——块.part11.rar

31.51 KB, 下载次数: 3

发表回复
您需要登录后才可以回帖 登录 | 注册

本版积分规则


Licensed Copyright © 2016-2020 http://www.3dportal.cn/ All Rights Reserved 京 ICP备13008828号

小黑屋|手机版|Archiver|三维网 ( 京ICP备2023026364号-1 )

快速回复 返回顶部 返回列表