QQ登录

只需一步,快速开始

登录 | 注册 | 找回密码

三维网

 找回密码
 注册

QQ登录

只需一步,快速开始

展开

通知     

全站
3天前
查看: 1949|回复: 11
收起左侧

[求助] 关于CAD图纸插入草图中问题

[复制链接]
发表于 2011-11-9 13:41:05 | 显示全部楼层 |阅读模式 来自: 中国江苏

马上注册,结识高手,享用更多资源,轻松玩转三维网社区。

您需要 登录 才可以下载或查看,没有帐号?注册

x
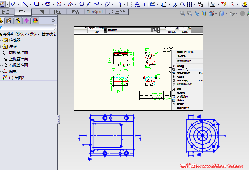
本人新建了个零件,先做了个拉伸,完成后点击了拉伸切除% @- X8 A3 b, H' L# n
然后出现草图3,想把一个CAD图纸放入这个零件拉伸切除的草图3中
/ ^9 C- `% ~( f, j5 @- I请高手指点
001.png
发表于 2011-11-9 15:12:06 | 显示全部楼层 来自: 中国浙江金华
打开CAD图纸到新二维草图,复制粘贴即可。

评分

参与人数 1三维币 +2 收起 理由
chenjun520601 + 2 技术讨论

查看全部评分

 楼主| 发表于 2011-11-9 17:12:42 | 显示全部楼层 来自: 中国江苏
能不能给个详细图解啊
3 y- T7 V& R; h/ f3 S7 p1 Y刚试了好像不行吗
9 N9 \9 [% [+ j* m! f+ }7 Z( R谢谢,求解
发表于 2011-11-9 23:06:46 | 显示全部楼层 来自: 中国广东佛山
1. 复制CAD图
" S" l) T' [# E9 ], w* L
8 j2 C) W2 ]; Q* [, d, H" ]) W A-1.png
  X/ U0 C: O9 l
( h: e! a" q$ V2.新SW构图面粘贴CAD图或JPG图片也可以+ K/ A2 X% p/ ~8 ^

7 i+ X: A1 Z+ Y, x9 V! ~ A-2.png

评分

参与人数 1三维币 +4 收起 理由
chenjun520601 + 4 技术讨论

查看全部评分

发表于 2011-11-10 07:58:00 | 显示全部楼层 来自: 中国广东深圳
直接在CAD里用CTRL+C
! ^- h& @4 E4 Q# D4 L* M在SW里用CTRL+V就可以了( g6 O% B/ B% g! Q  @

8 X; |9 b2 n+ j5 s; h" ?希望能帮到楼主~~
发表于 2011-11-10 08:13:06 | 显示全部楼层 来自: 中国广东深圳
这个功能SW2008以上的有,不过也可以插入CAD
 楼主| 发表于 2011-11-11 15:04:18 | 显示全部楼层 来自: 中国江苏南京
构图面粘贴CAD图或JPG图片也可以
; j/ z+ t9 ^/ S: P% q6 D6 K3 H
1 v. ~; V; s. a" _9 ?  U5 N在哪里有
7 Z2 c+ F& M3 y1 A2 i2 T构图面粘贴CAD
发表于 2011-11-19 11:09:17 | 显示全部楼层 来自: 中国江苏
1# 抹殺的溫柔 . Q! b' @/ ?! @' Q( e
你完成拉伸后,先不要点击切除命令,应将草图采用DWG或DXF插入后再进行切除命令。

评分

参与人数 1三维币 +2 收起 理由
chenjun520601 + 2 技术讨论

查看全部评分

发表于 2011-11-20 17:15:12 | 显示全部楼层 来自: 中国浙江温州
不知可以修改吗3 x4 y8 u8 d; s- B
就是约束是不是完整……
发表于 2011-11-20 20:59:55 | 显示全部楼层 来自: 中国陕西
要把中心线等辅助线去掉后再复制
发表于 2011-11-21 12:59:09 | 显示全部楼层 来自: 中国河北廊坊
8楼说的对,但是插入前要先选择要插入的平面,即:你要把你插入的草图插到哪个平面。2 W7 U% k1 h+ W" @
9#问的答案是:约束不变,插入的相当于一个块。但是可能位置不是你想要的位置,因为CAD做的原点可能和你在sw里的原点不是重合的。
0 D0 g% H, O3 E5 ]- f以上,希望有用!
 楼主| 发表于 2011-11-23 12:50:37 | 显示全部楼层 来自: 中国江苏南京
此问题,根据“唐依依”的已经做出来
: V" \* z; _& b' n  w- B谢谢解答
发表回复
您需要登录后才可以回帖 登录 | 注册

本版积分规则


Licensed Copyright © 2016-2020 http://www.3dportal.cn/ All Rights Reserved 京 ICP备13008828号

小黑屋|手机版|Archiver|三维网 ( 京ICP备2023026364号-1 )

快速回复 返回顶部 返回列表