QQ登录

只需一步,快速开始

登录 | 注册 | 找回密码

三维网

 找回密码
 注册

QQ登录

只需一步,快速开始

展开

通知     

查看: 1961|回复: 5
收起左侧

[已答复] 这个焊件的工程图如何表示?

[复制链接]
发表于 2011-11-15 09:34:05 | 显示全部楼层 |阅读模式 来自: 中国北京

马上注册,结识高手,享用更多资源,轻松玩转三维网社区。

您需要 登录 才可以下载或查看,没有帐号?注册

x
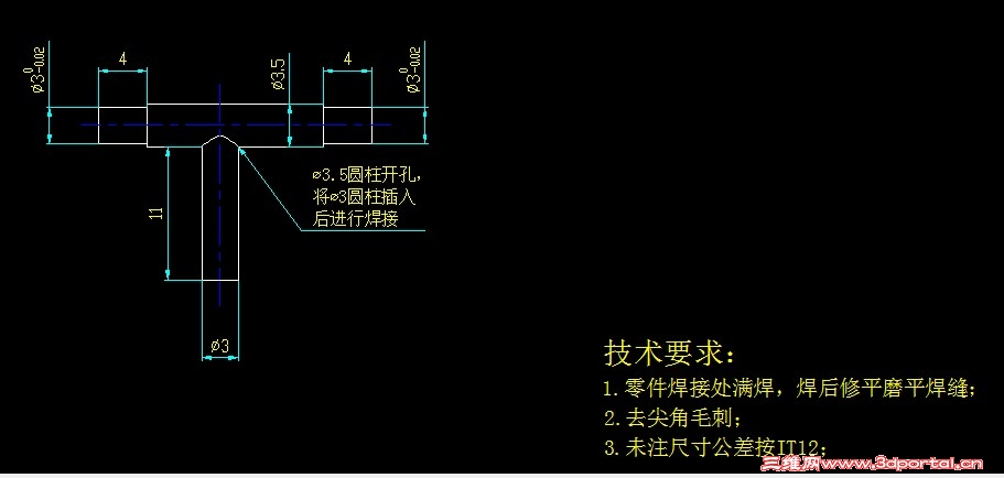
QQ截图20111111140044.jpg QQ截图20111111140712.jpg
0 M6 n4 D: L& A: v) E做两个不锈钢的圆柱,焊接到一起,请问焊接的部分怎么表示(左图中画红圈区域)?像右边的表示方法可以么?2 O1 c. y& j% s; G& g' b
  Y8 A+ w  Q2 g* b* r+ a
各位大侠能否帮忙给个标准的焊接零件的表示方法,最好在此图上做一些修改贴上来,十分感谢!/ ^0 G, r/ r0 h

8 A+ ]& j: J; V# t另外想问,这种小尺寸零件的焊接用什么焊法?
发表于 2011-11-15 10:38:41 | 显示全部楼层 来自: 中国江苏泰州
开孔和插入深度是多少?有没有必要画带剖面的焊接详图?焊接符号,只要能看懂随意标注一下就可以了。

评分

参与人数 1三维币 +2 收起 理由
天际孤帆 + 2 鼓励交流

查看全部评分

发表于 2011-11-15 12:26:00 | 显示全部楼层 来自: 中国山东青岛
可查阅GB324-88,上面说的很详细。
: A3 [  g! b; c5 T具体的焊接方法跟产品要求和用量有关。你这个如果没有什么特殊要求,比如受力或者压力管道,一般手工电弧焊一下就可以了。用量大的话可以考虑用机器人焊接。& z9 |9 e0 ~5 p2 e9 I
另外粗管的内部没有什么要求吗?还是规定一下插入深度(细管露出高度)为好。

评分

参与人数 1三维币 +2 收起 理由
天际孤帆 + 2 鼓励交流

查看全部评分

发表于 2011-11-15 12:34:10 | 显示全部楼层 来自: 中国江苏泰州
可查阅GB324-88,上面说的很详细。
  B5 k7 j4 x; d具体的焊接方法跟产品要求和用量有关。你这个如果没有什么特殊要求,比如受力或者压力管道,一般手工电弧焊一下就可以了。用量大的话可以考虑用机器人焊接。
+ S* k: ^, i; \! u. T6 u0 U( H另外粗管的内部没有 ...
' E8 \* q6 o2 \) R' |) `workbysolid 发表于 2011-11-15 12:26 http://www.3dportal.cn/discuz/images/common/back.gif
应该是GB/T 324-2008。
 楼主| 发表于 2011-11-15 17:31:54 | 显示全部楼层 来自: 中国北京
本帖最后由 wakang 于 2011-11-17 21:15 编辑 , a$ b+ l" ^* [9 y$ ]4 J

, q& @+ m0 {: G$ O5 q% M/ x3# workbysolid
; K1 N9 ~4 h8 d+ ]" b( |十分感谢!
) [) ?6 h4 J" ^/ X3 `$ I& `
0 F& G' a9 f( C1 t( f, B7 z
4# qilupzh  
1 w+ P* G/ L! y; s% V" P' x: z十分感谢!
) H0 m/ W+ g( A5 W  Manymoon 发表于 2011-11-15 17:32 http://www.3dportal.cn/discuz/images/common/back.gif
发表于 2011-11-17 21:25:38 | 显示全部楼层 来自: 中国河北邢台
原标准 GB 324-88 焊缝符号表示法
" w$ s3 @: @" F7 `0 U新标准 GB/T 324-2008  焊缝符号表示法
发表回复
您需要登录后才可以回帖 登录 | 注册

本版积分规则


Licensed Copyright © 2016-2020 http://www.3dportal.cn/ All Rights Reserved 京 ICP备13008828号

小黑屋|手机版|Archiver|三维网 ( 京ICP备2023026364号-1 )

快速回复 返回顶部 返回列表