QQ登录

只需一步,快速开始

登录 | 注册 | 找回密码

三维网

 找回密码
 注册

QQ登录

只需一步,快速开始

展开

通知     

查看: 1919|回复: 9
收起左侧

[分享] 给大家推荐一个比较的液压软件

[复制链接]
发表于 2011-11-16 10:56:16 | 显示全部楼层 |阅读模式 来自: 中国北京

马上注册,结识高手,享用更多资源,轻松玩转三维网社区。

您需要 登录 才可以下载或查看,没有帐号?注册

x
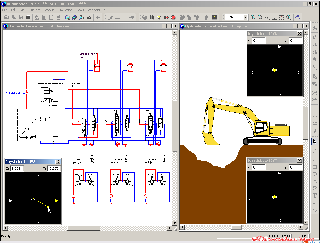
是Automation Studio 5.0在电驴上有下载的,不过是英文的,我拿金山2003翻译,在点开时翻一下就可以看了。
发表于 2011-11-16 11:13:07 | 显示全部楼层 来自: 中国陕西西安
楼主是否已经用过,是否好用?
发表于 2011-11-16 11:21:07 | 显示全部楼层 来自: 中国北京
最好能附图,避免浪费
发表于 2011-11-16 11:23:49 | 显示全部楼层 来自: 中国安徽马鞍山
同意三楼看法,建议所有的下载都能附图就好了!!!
 楼主| 发表于 2011-11-16 11:34:28 | 显示全部楼层 来自: 中国北京
你们自己去电驴上下载,是免费的,可以模拟比例阀和电控手柄的动作,比较实用的。
发表于 2011-11-16 13:44:41 | 显示全部楼层 来自: 中国广东深圳
现在电驴能下载软件吗???
* I8 u. r9 C3 e0 [  O8 h。。。。
发表于 2011-11-16 17:00:36 | 显示全部楼层 来自: 中国河南安阳
请楼主截图。
发表于 2011-11-17 13:35:07 | 显示全部楼层 来自: 中国广东深圳
论坛FTP没有吗?
- n% c$ d2 g2 k7 {。。。
2 `: j. r- _* q- r这个软件出了很久了
发表于 2011-11-18 07:56:52 | 显示全部楼层 来自: 中国北京
好用?使用说明哪有?
 楼主| 发表于 2011-12-2 13:06:16 | 显示全部楼层 来自: 中国北京
这个教程很少的,我在网上没有找到
11111.png
发表回复
您需要登录后才可以回帖 登录 | 注册

本版积分规则


Licensed Copyright © 2016-2020 http://www.3dportal.cn/ All Rights Reserved 京 ICP备13008828号

小黑屋|手机版|Archiver|三维网 ( 京ICP备2023026364号-1 )

快速回复 返回顶部 返回列表