QQ登录

只需一步,快速开始

登录 | 注册 | 找回密码

三维网

 找回密码
 注册

QQ登录

只需一步,快速开始

展开

通知     

查看: 1759|回复: 10
收起左侧

[求助] 有谁知道parker的这种阀是什么?

[复制链接]
发表于 2011-12-1 20:10:19 | 显示全部楼层 |阅读模式 来自: 中国辽宁沈阳

马上注册,结识高手,享用更多资源,轻松玩转三维网社区。

您需要 登录 才可以下载或查看,没有帐号?注册

x
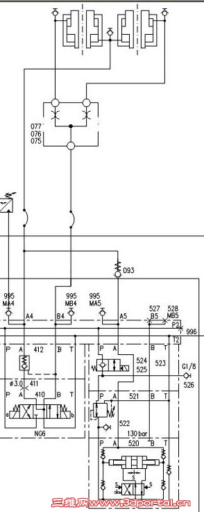
这是一个利用增压缸为模具油缸施加压力的原理图,% O4 x& w6 m0 r% s3 Z
而我不明白的是那三个小圆圈代表的是什么阀?
2 w" X8 L. Z! G. E3 Y- d$ Y/ ?9 j075、076、077这三个阀的型号如下:3 D* k4 b% r, T/ M7 T+ ]

/ y" k- Y* p/ Y: {6 Y* L, J075:FDC101A66V-20
2 ?; c% Z5 B3 M0 N/ b076:B10-4-8B
& t' \5 K9 P- ?7 r077:VSTI1/2EDCF7 A4 i  f: y6 @7 H, ^2 v2 y; I
+ H) \3 \, u, q( f
请了解的朋友介绍一下?
问问.jpg
发表于 2011-12-1 21:02:37 | 显示全部楼层 来自: 中国山东威海
应该是同步阀中的分流阀吧

评分

参与人数 1三维币 +1 收起 理由
自流井 + 1 SF

查看全部评分

发表于 2011-12-2 16:32:03 | 显示全部楼层 来自: 中国北京
075:FDC101A66V-20是分流集流阀(插装结构)6 e( F+ {+ f9 L0 s8 r( m* e
076:B10-4-8B是阀体,也就是钢结构油路块( m  _6 d! S2 b( Y2 Q' M, x0 P: }
077:VSTI1/2EDCF是派克的接头
9 l, V% j4 L$ U' Q3 l# |我想你说的那3个圆圈是接头吧

评分

参与人数 1三维币 +1 收起 理由
自流井 + 1 有理

查看全部评分

发表于 2011-12-2 20:38:29 | 显示全部楼层 来自: 中国山西太原
三个小圈是在阀的框图上。框里面代表插装阀总成,小圈应该是分流阀阀的接口吧。
 楼主| 发表于 2011-12-2 23:05:58 | 显示全部楼层 来自: 中国辽宁沈阳
太谢谢楼上几位的回答了
" t; k' m/ z8 w5 X: x* W( q三楼能否给我分流集流阀的样本呢?
头像被屏蔽
发表于 2011-12-2 23:48:10 | 显示全部楼层 来自: 中国广东湛江
提示: 作者被禁止或删除 内容自动屏蔽
 楼主| 发表于 2011-12-3 10:28:19 | 显示全部楼层 来自: 中国辽宁沈阳
075:FDC101A66V-20( P/ d8 d* T# p7 X: N8 H7 L4 A
076:B10-4-8B! |# G/ N3 H( G+ z* X1 Z' R
077:VSTI1/2EDCF
5 b! j9 K: d, |! S$ U  r1 b# x
, ?6 L$ v1 A8 {6 i3 q, O确实parker的,我有备件清单,就是我的样本里找不到
发表于 2011-12-3 12:58:49 | 显示全部楼层 来自: 中国天津
分流节流阀,为了速度的同步控制
发表于 2011-12-5 12:03:56 | 显示全部楼层 来自: 中国湖北武汉
3105c07.pdf (210.37 KB, 下载次数: 7)

评分

参与人数 1三维币 +2 收起 理由
自流井 + 2 资料

查看全部评分

发表于 2011-12-5 13:44:41 | 显示全部楼层 来自: 中国江苏南通
同步分流阀。。。带节流功能
 楼主| 发表于 2011-12-6 21:24:54 | 显示全部楼层 来自: 中国辽宁沈阳
谢谢各位0 M! r2 @7 y: z# s' B% @
问题解决
/ i  t1 r( I& |. N' \+ h2 \; g9 U+ _' V帖子关闭!
发表回复
您需要登录后才可以回帖 登录 | 注册

本版积分规则


Licensed Copyright © 2016-2020 http://www.3dportal.cn/ All Rights Reserved 京 ICP备13008828号

小黑屋|手机版|Archiver|三维网 ( 京ICP备2023026364号-1 )

快速回复 返回顶部 返回列表