QQ登录

只需一步,快速开始

登录 | 注册 | 找回密码

三维网

 找回密码
 注册

QQ登录

只需一步,快速开始

展开

通知     

goto3d 说: 在线网校重磅上线MC2022&Inventor2022全新课程,虞为民老师、大表哥同事精彩讲解,快去围观!
2021-06-25
查看: 1973|回复: 9
收起左侧

[求助] 在草绘里怎么旋转曲线

[复制链接]
发表于 2011-12-8 19:37:43 | 显示全部楼层 |阅读模式 来自: 中国北京

马上注册,结识高手,享用更多资源,轻松玩转三维网社区。

您需要 登录 才可以下载或查看,没有帐号?注册

x
初学PROE,想画一个DNA图 但是不知道 曲线怎么旋转。。。请高人指点
发表于 2011-12-8 20:26:18 | 显示全部楼层 来自: 中国广东东莞
那个曲线可以用方程做出, 或者用vss 扫出。 草绘里是做不出那种旋转曲线的。
发表于 2011-12-9 13:11:51 | 显示全部楼层 来自: 中国广东珠海
那个曲线可以用方程做出, 或者用vss 扫出。 草绘里是做不出那种旋转曲线的。9 h: w7 a1 Q/ [, H
ganyiwei 发表于 2011-12-8 20:26 http://www.3dportal.cn/discuz/images/common/back.gif
: @; d1 T# d  U1 h' K/ u
& z, d/ _' F* l6 [) Y, t  e
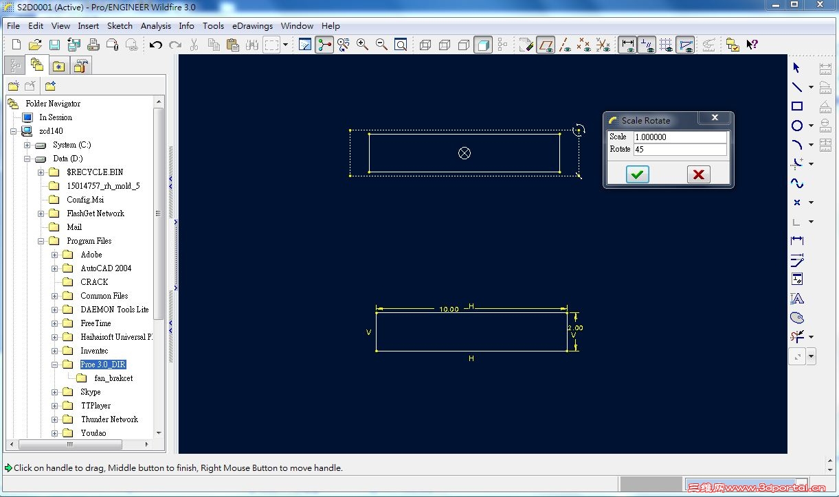
誰說草繪做不出旋轉曲線的 ??? 當然可以啊! 只是要看你會不會用而已,依順序看圖吧!: N- A% s' r# {; u
看圖:  T7 l  h/ w0 _3 Z/ y- K
step 11 a, ]3 [9 t( s
sketch.jpg , y  i0 Y& b/ W$ h5 ~/ w
step 2
( B" x( K2 j) j  f. t9 n sketch1.JPG * p) `& O: J8 z+ T5 y6 c
step 3- C: b0 b2 p$ c* h9 \. Z; b7 `* y
sketch2.JPG
' B" C  L2 k! nstep 4  n1 w. z. {, E- ~5 w+ W" q6 A
sketch3.jpg
( U: B' K3 Q0 |( ]  U6 Istep 5+ t# p9 j0 E$ [1 Y2 W* I
sketch4.JPG   H0 l- ~! m/ q+ T* ?% u
step 62 _& C1 |* d0 g8 j6 S2 u# N7 ?
sketch5.JPG
; I0 I# Y5 R) w* N7 c/ S# z2 c/ a" _" B, h. f
依次類推
发表于 2011-12-9 20:11:14 | 显示全部楼层 来自: 中国安徽淮北
誰說草繪做不出旋轉曲線的 ??? 當然可以啊! 只是要看你會不會用而已,依順序看圖吧!. U) A1 ^4 k: G. Y
看圖:, }' d4 l, N$ r+ ]$ T
step 1  Z2 C) g* Z9 L' s
1982210
. f' r9 e  f! E6 g' Kstep 2
- k% ^6 [* [, K  V$ w1982211. r& U" ^( |8 f
step 3, H' g0 E, c4 \- {7 E, t+ t
19822127 ]7 w7 p* s$ a+ c  O. d
step 4
6 ]8 u% P- k# r: I) P% g1982213
( h3 i/ z" d- _" k7 ]1 K5 estep 5
. s  K; m% k0 a) D! J8 `19822143 m, ]1 x# x: z+ B+ P1 W8 h
step 6
$ b$ [- J' U% ]( B; @, F1982215
/ z1 R# H1 {* k& M
; n- M4 J* `- X1 V# U2 }依次類 .... {; V; }/ U0 b% _8 y
serene_cao 发表于 2011-12-9 13:11 http://www.3dportal.cn/discuz/images/common/back.gif

1 n1 O' K7 a) \+ {7 V兄弟,你理解错了。
发表于 2011-12-9 20:12:02 | 显示全部楼层 来自: 中国安徽淮北
可考虑螺旋线。
发表于 2011-12-9 21:19:28 | 显示全部楼层 来自: 中国广东东莞
DNA, proe5.0 文件。
dna.png

dna.prt.rar

92.65 KB, 下载次数: 17

评分

参与人数 1三维币 +5 收起 理由
唐依依 + 5 技术讨论

查看全部评分

发表于 2012-2-21 23:58:13 | 显示全部楼层 来自: 中国江苏苏州
楼主是做什么工作的,PROE也用到DNA的研究上了,难道是医生做研究也用这画图啊!
发表于 2012-3-11 11:40:19 | 显示全部楼层 来自: 中国上海
发表于 2012-3-15 14:53:06 | 显示全部楼层 来自: 中国陕西西安
用螺旋线然后扫描
发表于 2012-3-23 12:04:12 | 显示全部楼层 来自: 中国广西南宁
用方程画螺旋线
发表回复
您需要登录后才可以回帖 登录 | 注册

本版积分规则


Licensed Copyright © 2016-2020 http://www.3dportal.cn/ All Rights Reserved 京 ICP备13008828号

小黑屋|手机版|Archiver|三维网 ( 京ICP备2023026364号-1 )

快速回复 返回顶部 返回列表