QQ登录

只需一步,快速开始

登录 | 注册 | 找回密码

三维网

 找回密码
 注册

QQ登录

只需一步,快速开始

展开

通知     

全站
7天前
查看: 1330|回复: 2
收起左侧

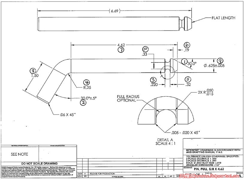
[求助] 弯销检具设计和测量系统分析

[复制链接]
发表于 2011-12-20 01:32:54 | 显示全部楼层 |阅读模式 来自: 中国江苏宿迁

马上注册,结识高手,享用更多资源,轻松玩转三维网社区。

您需要 登录 才可以下载或查看,没有帐号?注册

x
根据图纸标注的尺寸和公差范围,怎么设计检具去检测呢?
0 J5 Y0 i2 o. E- S, n# J类似的检具怎么做测量系统的分析?
4 V( l$ q$ W/ h* x; f谢谢!
1.JPG
发表于 2011-12-20 10:24:02 | 显示全部楼层 来自: 中国辽宁大连
你的图纸上面没有特殊的尺寸啊,用一般的测量检具以及三坐标就可以测量了;
; o3 H) C$ B) I: {8 r9 v& P测量系统分析,不是针对检具的,必须具有测量数据,检具是得不到测量数据的;
发表于 2011-12-20 22:49:29 | 显示全部楼层 来自: 中国广东东莞
测量系统的分析要做GRR。即量规的可靠性和重复性。
发表回复
您需要登录后才可以回帖 登录 | 注册

本版积分规则

Licensed Copyright © 2016-2020 http://www.3dportal.cn/ All Rights Reserved 京 ICP备13008828号

小黑屋|手机版|Archiver|三维网 ( 京ICP备2023026364号-1 )

快速回复 返回顶部 返回列表