QQ登录

只需一步,快速开始

登录 | 注册 | 找回密码

三维网

 找回密码
 注册

QQ登录

只需一步,快速开始

展开

通知     

全站
7天前
查看: 4800|回复: 26
收起左侧

[求助] 帮忙看看这张图纸有那些毛病

[复制链接]
发表于 2012-1-2 19:37:18 | 显示全部楼层 |阅读模式 来自: 中国浙江丽水

马上注册,结识高手,享用更多资源,轻松玩转三维网社区。

您需要 登录 才可以下载或查看,没有帐号?注册

x
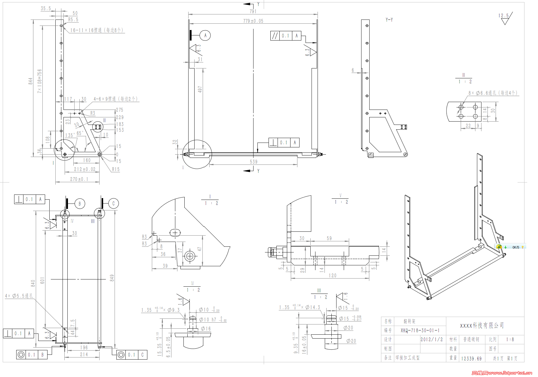
新手出图,请师傅们批批,我这张图纸能拿去加工没。谢谢!
2012-1-2 19-07-59.png

555 - 图纸4_2.pdf

64.23 KB, 下载次数: 47

555.rar

623.69 KB, 下载次数: 17

发表于 2012-1-2 21:17:15 | 显示全部楼层 来自: 中国广东东莞
本帖最后由 slang868 于 2012-1-2 21:21 编辑 ) A5 T; t- L& e; b. K% K. k6 b/ s
- J6 m# u8 b( v1 x9 B
楼主制图水平挺高的。
% ?5 g4 P  D. }- [; f* Q$ B& S/ B* N
" R' o, W! o  a" L" y: Q; i这个6mm钢板的翻转架不太容易做,焊接夹具肯定少不了,请技术高的师傅也肯定能做出来。

2 L0 O9 X4 H8 |9 X. z这种零件批量了以后报废率会不断降低的。( J0 d( }* i; B* {: U
0 v; s, r% `' y) U
以前我在的一个单位做取款机的机身,保险柜焊接要求有很多形位公差,焊点大小,外观情况,& C$ |) A1 Z/ V+ |* ?- _
刚开始报废率有接近50%,经过努力,二年多后是零点几。。。。。。

评分

参与人数 1三维币 +2 收起 理由
plc + 2 技术讨论

查看全部评分

发表于 2012-1-2 23:07:08 | 显示全部楼层 来自: 中国北京
本帖最后由 wjljp2046 于 2012-1-2 23:38 编辑 9 D1 k! m( H( I% q8 S+ F/ N6 _

) X& B  d1 s# `' g/ W7 ^9 D1. 应该多出几份图纸。装配和零件应分开,否则备料准备会很麻烦。
# _1 h; a3 j5 F, L* T& ~+ |2. 装配图中还应该有明细表的。; w6 L+ y  m0 z( @0 S: p. o
3. 有的尺寸交叉了。比如左上角的35.5和50。有的重复了,有的漏了。
/ b: t6 ?+ j2 Z- A# C8 |4. 没有焊接要求和加工要求。
; G5 p% e; g! ?  u& D。。。。。。- v( }. [  Q  s
N. 注意视图之间的投影关系,不知道你的图是哪国标准。! X! X1 j0 F3 H0 Q+ Z

9 |3 r8 T& U& r) C3 [+ o总之,真的投入生产的话,会不断有人来问你的!

评分

参与人数 1三维币 +4 收起 理由
天际孤帆 + 4 鼓励交流

查看全部评分

发表于 2012-1-3 08:24:30 | 显示全部楼层 来自: 中国河南新乡
毛病还是有的,在仔细审查一下!
发表于 2012-1-3 10:16:44 | 显示全部楼层 来自: 中国内蒙古巴彦淖尔
楼主没在车间干过活,没有一点概念,6个的钢板折弯有圆角,装配后,其坯平行度0.05是空的,根本没法做到,必须有相配件才能控制,形位公差就是全机加工件,有的都很难达到
 楼主| 发表于 2012-1-3 14:34:52 | 显示全部楼层 来自: 中国浙江丽水
本帖最后由 xf81519 于 2012-1-3 14:52 编辑
7 ^2 @  L5 S  L7 K' V' d
: Q% F9 G1 Q; i/ C6 o, m4 u谢谢各位师傅点评,这是我自己设计的一台自动化设备中的一张图,师傅们都看出来了,我是新手,没在车间干过活,确实没有什么概念,对工程图的规范、尺寸标注、公差的合理性、加工的可行性等我肯定掌控得不好,还望各位大力批批。9 i9 Y" V  ], t1 O8 Y2 U9 w
几个要求说明一下: 2012-1-3 14-13-33.png ) E; r: p; X7 e9 I$ e
1.这个公差要在0.1以下,因为工件进入后,边侧空隙总余量只有1mm,大了影响精度。- T; c. ]* c: X2 N0 P
2.两侧必须保持平行,否则影响后续步骤的对接。6 k9 X: n5 f: d3 z& f
2012-1-3 14-23-03.png
% Z! ~* \, F+ `) W9 m  a3.6mm钣这里不能折弯,要求直角。
1 g0 S  S1 Q- s  p* Z5 i4.同心度的要求,加工易做到吗?
/ \$ `* C# L* m4 l- ?) f9 q5.加工焊接要求我该怎么写?
. i% |1 M2 X) c. N- A5 _  p谢谢!
发表于 2012-1-3 15:25:22 | 显示全部楼层 来自: 中国浙江宁波
Y-Y剖方向颠倒一下
发表于 2012-1-3 19:38:12 | 显示全部楼层 来自: 中国浙江嘉兴
本帖最后由 zhoushan403 于 2012-1-3 19:39 编辑
6 A( ~& h* J8 P3 d9 r* k0 I4 H1 l9 X3 [6 U3 V
图纸细腻,楼主谦虚了。( ^* C/ a" r; |6 Q9 e4 @
问一下楼主:  z# p7 f, x/ P9 b) U2 t( T
长度844mm厚度为6mm这二块板的平行度要求是设备最终安装尺寸要求吗?6 J; {' i- B, h! W2 F
如果是车间预制,个人认为是不可取,因为这个长度的6mm钢板平行度都达不到。况且是组焊件。8 \; ~  H+ {, B' x( q7 c8 v7 e  J: V
除非靠机加工保证,靠铆焊有点强人所难,如果我是你们那的工人拒不参加交底。

评分

参与人数 1三维币 +2 收起 理由
天际孤帆 + 2 鼓励交流

查看全部评分

 楼主| 发表于 2012-1-3 22:06:04 | 显示全部楼层 来自: 中国浙江丽水
本帖最后由 xf81519 于 2012-1-3 22:07 编辑
. Z. o3 E0 n8 f( |6 ~1 R3 V; G
9 T" o2 o" G/ [# ^, L& {7 E8# zhoushan403 ! j7 O; q, `8 w4 e* I% w: k2 ~

. q0 ^, D1 q6 `; V0 o0 k谢谢,提得很好,我的想法是这样的:" T1 L5 I1 {, D! p* D3 S
1.B板取大于6的板铣磨后达到要求,并左右两对称块板同步打孔切割加工。
' |* n$ |1 X$ O% [6 h2.A板同样取大于6的板,90度角焊接后铣磨后达到要求,并成直角。
( Q9 S. @2 s* J: b& M3.问题是C处在焊接加工时如何保证平行与公差?是否可以在D、E两杆的两端做定位然后做焊接?
2012-1-3 21-38-59.png
发表于 2012-1-4 10:36:06 | 显示全部楼层 来自: 中国浙江宁波
1.如果是试样,B板可以2块一起铣,两对称块板同步打孔切割加工,切割时,割出2个凹形槽,作为A板的定位基准,你A板焊接没有可依据的基准,靠工人测量不准7 c! s& G1 s- N. |7 V# ~# ^1 o
2.A板铣后,事先要在A板上割出 对应B板的凹形槽的凸缘,方便定位,由于是全焊峰,板子又薄,焊接后要做时效处理 或者整平处理,4 O( [& F. E( I, j6 s
3.D杆子 两头 要铣出一个凸台,方便B板定位,连接方式是螺纹连接,有扭矩 ,把土台变成一个限位面,靠紧就说明一个方向对齐了。

评分

参与人数 1三维币 +2 收起 理由
plc + 2 技术讨论

查看全部评分

发表于 2012-1-4 16:14:55 | 显示全部楼层 来自: 中国上海
见到年轻人这么认真地作图,并且谦虚求教,很是感动。专门下载了打印出来,以便仔细看看。2 ^* O: {  M* B" _" P9 ~
也看了各位的评论,其中3楼wjljp2046说的基本到位。# z0 K+ u8 |4 R5 q1 X- r
先说图纸:
( `; I8 A7 L3 n  ?% }* P1、你的最大问题在于想在一张图纸中表达全部内容,这个很要命。在工厂生产,这种总装图(装配图)需要有,目的是给装配人员以及后续检验、包装等人员参考。但零件图同样必不可少,那是给冲压、机加工等部门使用的图纸(各人看各人的图最好,集中在一起反而坏事)。在总装图上主要标注装配尺寸和要求,需要附带零件列表——有图的零件需标出图号。而零件图则细致标出零件的尺寸公差。) m0 _. n, Y9 T6 S( B5 u( e. q9 q
2、(由于我多年没动手制图了,对新的标准不是特别清楚,可能有说的不对的地方。)7 _, f$ j5 x  I4 }' B) G' L! l, P/ }
  a、11*16椭圆孔,应标注两个中心线,分别代表两个中心点。尺寸也应该以某个中心点为基准。利于加工和测量。“16-11*16通(每边8个)”,还是头一回见到这样的标注方法。毕竟不是在一个零件上的,标准做法是分别出具图纸。0 e6 z. |/ ^( M; h  D' Z
  b、0~275这个尺寸链,不知是不是新标准容许的标法,最大问题在于你的基准是底边两孔(或轴)的中心线,看着明白,制成品如何测量呢?想了解某一部分的尺寸,必须自行加减算出来。通常是用下底边及844一侧的长边为基准。11*16椭圆孔的起始尺寸36也有同样问题。7 e* u$ n/ |6 I8 v/ B
  c、重复或多余的标注不少。不一一举例了。总之,粗看还行,往细里看后,越看越晕。
, a, O5 ~8 A% j. N) t+ v8 W+ y再说工艺:  B: B+ h; X3 D, F* Z- H9 ~
侧板厚6mm【(791-799)/2】——应该单独标出,较为直观。别说这个厚度,放大十倍,加工、装配未必能够满足你那个0.05、0.1的公差要求。你说的那个铣磨加工,纯属臆想。对于这么薄而大的零件如何铣?又如何磨?只怕倒腾半天,变形越来越大。$ c4 V9 x! g1 Y+ [7 _
从结构看这是一个装配件,整体尺寸还需依赖其他装配件的结合。这么高的公差要求,首先是“办不到”,其次是“没必要”。

评分

参与人数 2三维币 +4 收起 理由
天际孤帆 + 2 回帖认真
plc + 2 技术讨论

查看全部评分

发表于 2012-1-4 16:47:43 | 显示全部楼层 来自: 中国广东深圳
看了一下,不谈图纸,只谈结构  
( z% F7 d, N3 v3 K1. 内面为配合面? ......坑爹
% W- R4 b- Y% y2 Y2. 一个零件?检验及厂内转运......坑爹! D/ z/ m* y/ N9 j
3. 锐角不倒钝?这个....太坑爹
- B9 y& R  B- m8 @4. 费料啊费料,这个坑老板的爹
# ?. D2 o+ E3 I  k! l9 A: R% ^5. ...
, D3 L2 E7 a7 E3 }9 V) H; A* t" y建议,把CDE拆开,通过装配控制达到你的要求。另外,AB焊接的话,要注意考虑变形,或者考虑采用角钢。:)
发表于 2012-1-6 19:53:56 | 显示全部楼层 来自: 中国江苏南京
学习了。本人刚进入机械加工行业,为各位的水平折服。
发表于 2012-1-31 08:50:07 | 显示全部楼层 来自: 中国江苏淮安
本帖最后由 xiayongjun 于 2012-1-31 09:27 编辑
* L) T* C. f7 c
* S" ?$ `  a- r. h1 V; L  z2 v; f装配图不需要这么多详细尺寸。有过定位的尺寸。出明细表和零件图,各零部件具体用的什么材料。
+ |1 ^4 V% I: {" G( j! W- Y$ W装配图右上角不要粗糙度符号,6mm的长板条用去除材料的加工的方法不可行。
# C( H4 P+ b* f; r- J9 I同轴度公差带为圆柱状,前面加Φ。单单这一张图是没法拿去加工的。  {# c: U- D9 e! p
应该多了解了解工艺,想想看,让你拿着这张图你用什么方法能做出来,怎么保证各个尺寸?5 O' g# N" S& X
:dizzy:

评分

参与人数 1三维币 +2 收起 理由
天际孤帆 + 2 鼓励交流

查看全部评分

发表于 2012-1-31 11:12:04 | 显示全部楼层 来自: 中国山东济南
首先对楼主的谦虚好学的精神表示钦佩。这是未来能取得技术进步和成长的内在条件!8 T% {5 p5 a7 g9 N: j8 x9 o: w
1.机械设计首先要了解和吃透工艺要求,而楼主只上传图纸,未加足够工艺说明,难以获得适宜的技术意见。
& C8 h/ h1 K# }  L& B" u2.要想保证精度,须使设计的结构具有一定刚度。图中多处显示刚度难以保证,其相关精度将失去实际意义。4 s+ z9 x) c0 u: ?& n2 `5 L
3.提出设计要求后,要认真想一想,如何去实现。若不清楚具体实现的工艺方法,最好应先请教经验丰富者。
" _& \0 P7 @" }. j5 [3 X8 f1 E4.机械制图方面的提高应加强对相关国标的了解、掌握和实践。多请前辈点评有益提高。
3 R3 l0 ], _4 n5.机械结构的实现原则应“以最简单、实用的方式和低廉的成本,全面满足工艺要求”。. t! ], Z5 X* X2 J9 I
从认真和负责任的角度考虑,图示中反映出的问题较多,不便一一细说,仅给楼主一些原则性意见,希望能有助一二。

评分

参与人数 1三维币 +3 收起 理由
天际孤帆 + 3 鼓励交流

查看全部评分

发表于 2012-2-1 12:50:03 | 显示全部楼层 来自: 中国江苏徐州
表述过于集中,还缺少技术要求
发表于 2012-2-1 16:05:26 | 显示全部楼层 来自: 中国广东深圳
6mm薄板组焊件,公差要求太严了,形位公差几乎都不需要。6 `% n3 x# r# L( R" V1 Y
你材料要求普通碳钢,最后表面喷个漆啥的,尺寸能准到哪儿去,
, ]* X/ s4 {$ L, Z0 ?. C" t装配时就利用薄板件的易变形,尺寸可以适当粗一点。
发表于 2012-2-9 23:02:58 | 显示全部楼层 来自: 中国江苏苏州
只说一点,对于腰形孔的标注,LZ使用了简化标注,但还是不大符合规范吧。; i. X6 }1 J% f5 O( I8 ]* m2 V

9 ~- b5 Y! Y/ @/ R其实,对于腰形孔的标注方法不同,所要表达的含义也是不一样的。
3 d$ l3 G2 J5 e
( a! H7 g7 q+ _: U# F% o一种是:数量×宽度×长度
6 p" b0 Q) E, b4 C4 J
1 z) j9 M9 {' w+ B* ?& m. A1 [ 3.jpg ( D- u+ h7 B3 D: O2 b9 @$ q8 Z
; T3 j1 m" b, \9 a/ F
简化标注如下:% s8 d% _; G3 ^' n

' ?7 j) K- w) ^, `, n. N 1.jpg & o' h: T' z4 C

! G3 Y$ i+ M; l  T: x  Q* _: F这样的标注方法的好处是:便于测量,一般的键/键槽都是这么标注的。' G. `, s+ D; [( `! c) r+ R

) M. U5 \/ I* g! y还有一种标注方法:
) x4 U8 J2 Z5 [5 q: B$ ` - ^& s9 [1 }) o' ]9 P# L% [) z
2.jpg
% @% s2 ~1 `- d& _7 | ; y: e. P' G( X/ l. P( p
一般这样的腰形孔是用来做调整位置用的,能反应出调整距离(15)
9 q& [- K! O! S3 P8 t
* u# e( s* l, R6 N但是,无论那种标注方式,那个半径R,都不具体标注出数值,就用一个“R”表示。7 S) p2 S+ Y6 S3 @

  f0 g, g9 h# c/ J' }说的很简略,不一定对,请包涵。。
发表于 2012-2-11 22:39:00 | 显示全部楼层 来自: 中国江苏苏州
总的来说,单张的图纸不好评价,零件总是要满足使用性能的,根据装配,工况才能进行评价。
 楼主| 发表于 2012-2-14 23:27:25 | 显示全部楼层 来自: 中国浙江丽水
本帖最后由 xf81519 于 2012-2-14 23:31 编辑 ( ]8 ?2 n2 w* D* v7 x& M
5 L4 [+ ^9 V: A' @
非常感谢各位前辈、师傅们的点评和建议,对我的帮助非常之大。我的主要错误是把它作为一个零件来出图,认为如何完成这个零件的加工那是加工师傅的任务,这是不对的。不了解工艺,缺少实际经验的结果。     最近又出差耽误了些时间没及时把情况反馈给师傅们,好象消失了一样,对不住大家。6 B( ]" ?+ ]# u9 M
     根据师傅们的点评,我重改了整个机构以适对这个结构,现将改过的图纸再发上来,还请师傅位多改改,先谢谢了!* N. J3 E% ?2 H, a# [
4.jpg & Q2 d& o3 M. E9 A1 s3 Y* e

/ t* {8 s  b) k2 T9 ` 5.jpg 4 ]7 X% ?& D5 i  I6 O& d
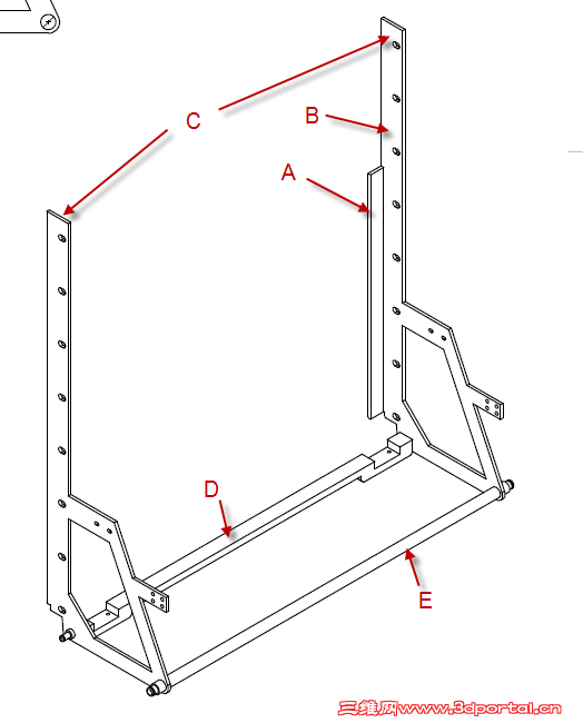
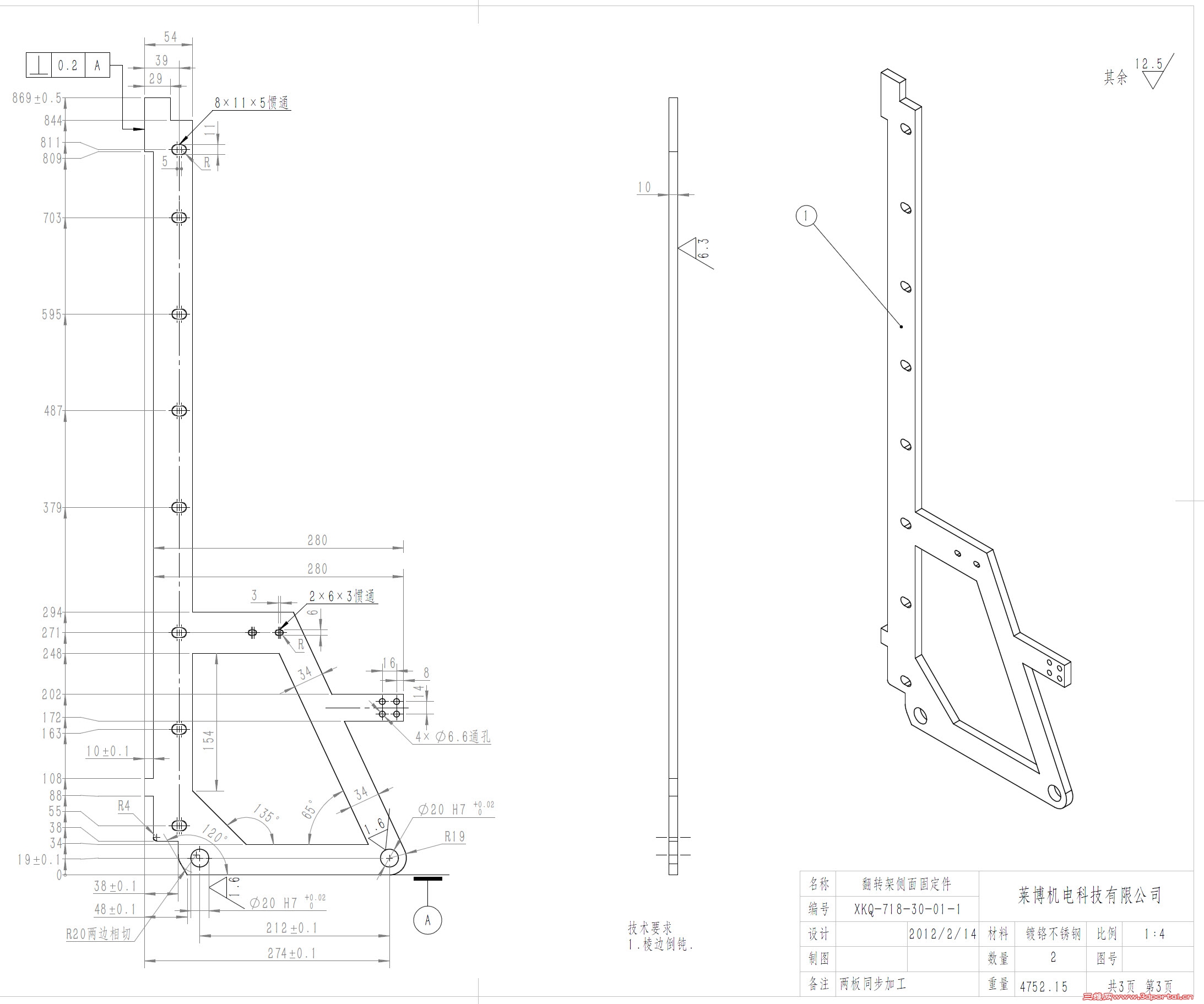
这是翻转机构。
+ |. y" X: |( T) p( x5 _3 O 1.jpg
& V* I, Y; p9 F, `% i这是爆炸图
8 \; y& ]6 k$ {( v 2.jpg ; s4 M& H( U5 B4 E, o7 [2 v
这是装配图2 e9 }* e) i, A, s  O2 _
3.jpg   S# S# }8 C3 I& }8 u  c; n, q
这是一号零件图
 楼主| 发表于 2012-2-17 16:53:27 | 显示全部楼层 来自: 中国浙江丽水
请各位师傅再帮我点评一下,我这样出图可以了吗,能达到我的结构设计要求了吗,谢谢!
发表于 2012-2-18 14:13:19 | 显示全部楼层 来自: 中国上海
图纸分开做,大方向就对了,尺寸细节不去谈啦。6 f6 o  s# s- G
只是看到你的三维结构模型,莫名地生出些恐惧来。因为不了解你的用途等具体细节,谈不上啥看法。1 ?* V" {7 |9 ?& Y( g; y- O
只是觉得,运动的可靠性、冲击、噪音、使用寿命,这些楼主考虑过了吗?
7 M$ Q$ }, j% @" P+ w+ v8 n. }* f2 I我看看悬啊!

评分

参与人数 1三维币 +2 收起 理由
天际孤帆 + 2 鼓励交流

查看全部评分

 楼主| 发表于 2012-2-19 00:07:48 | 显示全部楼层 来自: 中国浙江丽水
图纸分开做,大方向就对了,尺寸细节不去谈啦。9 |+ [! a9 M( X8 G2 V* p: U$ [) z
只是看到你的三维结构模型,莫名地生出些恐惧来。因为不了解你的用途等具体细节,谈不上啥看法。
) g6 W# P7 E3 u% w) s( ?& h, `! E只是觉得,运动的可靠性、冲击、噪音、使用寿命,这些楼主考虑过了 ...
: ~0 m1 p, {& m: w4 s4 O马尔马拉海 发表于 2012-2-18 14:13 http://www.3dportal.cn/discuz/images/common/back.gif
* S# Z' c5 Y" u) d
谢谢马尔马拉海师傅,你提到几点我是考虑过了,但还是心里没底,毕竟是第一次设计这个自动化的设备,还请师傅们给我看看,谢谢!7 T# X. G) B6 N, R2 N
6.jpg
% U; Q$ M) a* h* g
) p: ]9 C  f/ x! A5 Q: R 7.jpg 0 y- {7 s" `1 H, G

$ z1 x7 j6 J" v1 T2 p6 {( Q* o 8.jpg
发表于 2012-2-19 08:41:20 | 显示全部楼层 来自: 中国江苏苏州
弱弱的问下,水平后您的板出料靠的啥动力呀!
发表于 2012-2-19 09:58:53 | 显示全部楼层 来自: 中国山东青岛
楼主的图是准备自己加工?' a( w' @' G- x" H+ ^0 y
如果给别人看的图,还是要遵循国家相关标准(国外标准另当别论)
发表回复
您需要登录后才可以回帖 登录 | 注册

本版积分规则

Licensed Copyright © 2016-2020 http://www.3dportal.cn/ All Rights Reserved 京 ICP备13008828号

小黑屋|手机版|Archiver|三维网 ( 京ICP备2023026364号-1 )

快速回复 返回顶部 返回列表