QQ登录

只需一步,快速开始

登录 | 注册 | 找回密码

三维网

 找回密码
 注册

QQ登录

只需一步,快速开始

展开

通知     

全站
7天前
查看: 4569|回复: 8
收起左侧

[求助] 怎样加工台阶内孔两端同心

[复制链接]
发表于 2012-2-9 10:48:15 | 显示全部楼层 |阅读模式 来自: 中国浙江台州

马上注册,结识高手,享用更多资源,轻松玩转三维网社区。

您需要 登录 才可以下载或查看,没有帐号?注册

x
锻件.rar (140.35 KB, 下载次数: 5)
 楼主| 发表于 2012-2-9 10:49:55 | 显示全部楼层 来自: 中国浙江台州
怎么才能直接把图画出来
 楼主| 发表于 2012-2-9 11:02:28 | 显示全部楼层 来自: 中国浙江台州
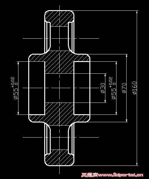
这个就是两端为直径55的内孔深度18,中间有个32孔,总厚66外径160,两孔55的要求同心度为0.025。
4 [# G: g( ^9 Z& u求各位高手帮忙!
发表于 2012-2-9 12:40:08 | 显示全部楼层 来自: 中国湖南岳阳
可否先粗车,留0.5余量,用90°弯头切刀一次精车出来。刀杆不大于17。
0.jpg
发表于 2012-2-9 13:12:31 | 显示全部楼层 来自: 中国湖北武汉
1,用双面车床加工;2,工件先车好一面孔下车,然后在主轴孔内上个莫氏锥度定位芯轴(这个要求主轴锥孔精度良好),定位段φ55带1/200锥度,以车好的台阶孔和端面定位,重新装夹车另一面孔。3,与方法2类似,车床上花盘,先装夹一个φ56的定心轴,自车至φ55,再上工件后用工件上的减重孔压紧。
发表于 2012-2-9 15:23:55 | 显示全部楼层 来自: 中国山西太原
1  在车床上一道工步车出台阶孔不太方便,刀具刚度小,误差大。可先车一端大孔及中间孔,然作定位芯头调头车另一端孔,这样可保证要求。
0 Q$ |/ D% X+ b4 O0 T0 v; ~; S# {2  在镗床加工更方便,左边孔可反向进给及刮孔底端面,可一道工序加工成。
 楼主| 发表于 2012-2-9 17:06:12 | 显示全部楼层 来自: 中国浙江台州
谢谢各位朋友帮忙!
. }! v# u, H" f- l! j; P9 d% ~还有4楼的朋友这图纸是怎么发的?我再发个完全点的图纸让大家给我参考下?
发表于 2012-2-9 17:45:23 | 显示全部楼层 来自: 中国广东东莞
批量大小、设备情况?如果有数控双端面车床就可一次装夹搞定。没有的话如果批量大,在车床装一个可180度调头的夹具也可以加工。
发表于 2012-2-10 17:54:54 | 显示全部楼层 来自: 中国山东
同意8楼批量大可以做个专用夹具
发表回复
您需要登录后才可以回帖 登录 | 注册

本版积分规则

Licensed Copyright © 2016-2020 http://www.3dportal.cn/ All Rights Reserved 京 ICP备13008828号

小黑屋|手机版|Archiver|三维网 ( 京ICP备2023026364号-1 )

快速回复 返回顶部 返回列表