QQ登录

只需一步,快速开始

登录 | 注册 | 找回密码

三维网

 找回密码
 注册

QQ登录

只需一步,快速开始

展开

通知     

查看: 3427|回复: 10
收起左侧

[讨论] 设计的阀块, 初学者参考

[复制链接]
发表于 2012-2-28 20:43:36 | 显示全部楼层 |阅读模式 来自: 中国湖北武汉

马上注册,结识高手,享用更多资源,轻松玩转三维网社区。

您需要 登录 才可以下载或查看,没有帐号?注册

x
本帖最后由 w00m 于 2012-2-29 20:12 编辑 ) c: V  I( n) ^: T; F. i/ {9 ^. J

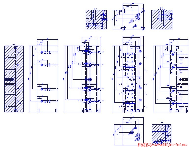
# S( C# S1 A6 J最近设计的液压阀块,放在帖子里,初学者可以看看。也请大家提提意见。阀块1有两孔有问题,壁厚太薄,希望大家发现后在帖子里提出来。
4 p- i" S8 R- G9 n$ j! [& K+ r+ _1 c5 j2 u2 `: h4 H
未命名.jpg

阀块2.rar

80.8 KB, 下载次数: 46

阀块1-Model.rar

81.18 KB, 下载次数: 37

发表于 2012-3-1 16:42:47 | 显示全部楼层 来自: 中国江苏苏州
1# w00m * j; Z4 v, p# l* h% D

) o7 K% t# ^9 o0 u- Z! p( P貌似标准的多组集成块。
发表于 2012-3-1 16:49:45 | 显示全部楼层 来自: 新加坡
为了节约流量没有下载5 C' c' S& G5 x/ F0 h
看图片觉得挺好的。
& G3 v1 X' b* ^- H但就是这个阀块本身怎么固定呢?没有安装螺孔啊?
 楼主| 发表于 2012-3-1 20:07:32 | 显示全部楼层 来自: 中国浙江杭州
1# w00m  / b; }! n) B/ S! `9 T6 ~

0 B7 _) r' |& m* u貌似标准的多组集成块。
$ ]1 Q# h5 S7 E6 vzhousm620 发表于 2012-3-1 16:42 http://www.3dportal.cn/discuz/images/common/back.gif

3 _$ l; d  p! }呵呵,再仔细看看,不是标准块。
 楼主| 发表于 2012-3-1 20:08:33 | 显示全部楼层 来自: 中国浙江杭州
为了节约流量没有下载+ B% q2 F6 g2 j* K& r  e$ U1 d9 _" c
看图片觉得挺好的。
& O& D+ X; b% M& `但就是这个阀块本身怎么固定呢?没有安装螺孔啊?
8 [0 |6 O/ n# _/ H4 S9 V% U/ [oceandee 发表于 2012-3-1 16:49 http://www.3dportal.cn/discuz/images/common/back.gif

3 t( i: q" p$ q- A- ]2 o4 n, R( Q
+ D: V! A9 E% Z5 r5 B主视图最下边有四个螺纹孔,可以进行安装。但是没有画吊装孔。
发表于 2012-3-1 20:47:34 | 显示全部楼层 来自: 中国河北秦皇岛
楼主用什么软件打的阀块啊,是proe还是solidworks?感觉还是用solidworks打的阀块看起来更好些。
发表于 2012-3-3 21:39:48 | 显示全部楼层 来自: 中国陕西宝鸡
算是很简单的阀块啦!这个不用研究,画的多了自然就好。
 楼主| 发表于 2012-3-4 20:11:42 | 显示全部楼层 来自: 中国广东珠海
1# w00m * h5 [5 P6 e1 o. ~$ [4 m

8 d1 Y" P, D: g! g 未命名.jpg
$ U. [* U/ O% s$ y  W; e0 X
- @; T% v, e7 a& Q, b. s, u; y, V. ]( C
原理图如上所示。看看你对了么?
发表于 2013-5-9 17:16:13 | 显示全部楼层 来自: 中国山东烟台
谢谢楼主分享
发表于 2013-5-14 10:20:07 | 显示全部楼层 来自: 中国江苏无锡
支持楼主,以后下载
发表于 2015-10-9 08:41:00 | 显示全部楼层 来自: 中国山东青岛
大家好  谁能把楼主传的压缩包  免费发一遍啊  谢谢
发表回复
您需要登录后才可以回帖 登录 | 注册

本版积分规则


Licensed Copyright © 2016-2020 http://www.3dportal.cn/ All Rights Reserved 京 ICP备13008828号

小黑屋|手机版|Archiver|三维网 ( 京ICP备2023026364号-1 )

快速回复 返回顶部 返回列表