QQ登录

只需一步,快速开始

登录 | 注册 | 找回密码

三维网

 找回密码
 注册

QQ登录

只需一步,快速开始

展开

通知     

全站
3天前
查看: 2425|回复: 12
收起左侧

[求助] 这个图怎么画呀

[复制链接]
发表于 2012-3-3 16:52:14 | 显示全部楼层 |阅读模式 来自: 中国天津

马上注册,结识高手,享用更多资源,轻松玩转三维网社区。

您需要 登录 才可以下载或查看,没有帐号?注册

x
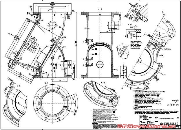
各位师傅们这个图怎么画呀,最好能给做个视频 谢谢

845817 Geh剈se SPV-DN200-FSX-ANSI-150FF 100006066_Rev01_Vers00.pdf

246.92 KB, 下载次数: 73

发表于 2012-3-3 20:37:28 | 显示全部楼层 来自: 中国山东潍坊
贴个图上来,下载怪麻烦人
发表于 2012-3-4 09:35:28 | 显示全部楼层 来自: 中国江苏徐州
很复杂,贴个图
1.JPG
发表于 2012-3-4 09:36:20 | 显示全部楼层 来自: 中国江苏徐州
大家看看,期待高手上传3D文件。
发表于 2012-3-4 10:41:18 | 显示全部楼层 来自: 中国河北张家口
图太小,尺寸看不清。
发表于 2012-3-4 13:08:26 | 显示全部楼层 来自: 中国江西赣州
没二维档 吗
发表于 2012-3-4 15:11:14 | 显示全部楼层 来自: 中国湖北十堰
本帖最后由 pansuiliu 于 2012-3-4 15:12 编辑
4 ]! H# E; R+ s  K, A& `" K% L! |0 s" V7 K* c3 J
楼主不要再这里求助了。如果你画不出来你也就不要画了。说明你不能胜任这份工作或者你还没有学好!(说话有点直接,勿在意)
 楼主| 发表于 2012-3-6 07:49:23 | 显示全部楼层 来自: 中国天津
谢谢各位大侠,我只是刚接触到ug
发表于 2012-3-6 08:00:05 | 显示全部楼层 来自: 中国台湾
楼主不要再这里求助了。如果你画不出来你也就不要画了。说明你不能胜任这份工作或者你还没有学好!(说话有点直接,勿在意)" Q: m, M$ ?2 f
pansuiliu 发表于 2012-3-4 15:11 http://www.3dportal.cn/discuz/images/common/back.gif
( W% F$ {4 O2 \) |
說得好!樓主應該用自己熟悉的軟體來畫,這種想吃白飯的求助是不可能的事。
发表于 2012-3-6 09:38:57 | 显示全部楼层 来自: 中国辽宁盘锦
画这种图还真是没有给白画的,无论你是想做夹具、编程抑或模具,这都是自己实打实干的活
发表于 2012-3-6 09:55:48 | 显示全部楼层 来自: 中国浙江杭州

RE: 这个图怎么画呀

本帖最后由 liusihai520 于 2012-3-6 09:57 编辑 # O+ o: V% _; q; Z
: F4 v4 N- H2 p( K
T4L`1U{QZ_M@DMF`RUWCXS9.jpg D142Z]~CQ$B49JYJXJ0SE7L.jpg     刚画的产品给你做参考,有参数

148B0557 rev.2二次开模工艺图.pdf

1.32 MB, 下载次数: 68

148B0557.zip

1.2 MB, 下载次数: 54

 楼主| 发表于 2012-3-7 20:21:22 | 显示全部楼层 来自: 中国天津
20112182011217    刚画的产品给你做参考,有参数6 q3 }( b; b% x8 u& U( x+ k
liusihai520 发表于 2012-3-6 09:55 http://www.3dportal.cn/discuz/images/common/back.gif

% s+ R1 v* ]' E" f8 v# T谢谢这样的我会画    只是我的那个图弯头交接的地方画不出来
发表于 2012-3-7 22:29:09 | 显示全部楼层 来自: 中国台湾
你要先大概說明一下! A. w4 H% m- v0 _' s; t' U( q2 j
哪裡不會這樣有心者才會比較好教你畫呀
发表回复
您需要登录后才可以回帖 登录 | 注册

本版积分规则

Licensed Copyright © 2016-2020 http://www.3dportal.cn/ All Rights Reserved 京 ICP备13008828号

小黑屋|手机版|Archiver|三维网 ( 京ICP备2023026364号-1 )

快速回复 返回顶部 返回列表