QQ登录

只需一步,快速开始

登录 | 注册 | 找回密码

三维网

 找回密码
 注册

QQ登录

只需一步,快速开始

展开

通知     

查看: 2326|回复: 7
收起左侧

[求助] 大家看看这个零件怎么加工

[复制链接]
发表于 2012-4-3 12:39:23 | 显示全部楼层 |阅读模式 来自: 中国广东深圳

马上注册,结识高手,享用更多资源,轻松玩转三维网社区。

您需要 登录 才可以下载或查看,没有帐号?注册

x
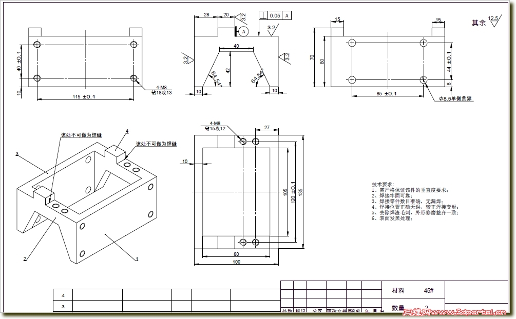
大家好,如果将这个零件处理成用四个件焊接的组合方式加工是否合理,如果不用焊接的方式,应该用什么加工方法为好,附件里面有该零件的三维模型和工程图,先谢谢大家

零件三维图及工程图.rar

318.18 KB, 下载次数: 6

发表于 2012-4-3 12:52:37 | 显示全部楼层 来自: 日本
本帖最后由 虎强 于 2012-4-3 13:07 编辑 3 W, ]- I- V( [) h0 T4 R& t
) Y  {1 }: s6 _4 L" n
1# 丑丑熊 2 N0 l! m! B$ X' @2 n

7 [0 X: |3 A  {: s' R; v' j铣削加工:
. [  r( T  S. }3 @6 r! W下方料-铣下部V坑-铣凸位-铣中空-钻孔-攻牙
; L" I* q& q" u8 j方孔清角有难度
/ e4 N* n* p" e2 }4 b, C0 F6 c" T. L. J$ s' P8 e3 E
1.JPG
发表于 2012-4-3 13:38:57 | 显示全部楼层 来自: 中国福建厦门
10mm厚的45钢应该是激光切割,然后钻孔攻牙,4块板留对接焊缝口,就是凸字形的,这样垂直度应该是没有问题,只要保证外形尺寸就好了,不过这样会影响出货,比较繁琐。
发表于 2012-4-3 16:15:48 | 显示全部楼层 来自: 中国山东烟台
线切割加数控钻
发表于 2012-4-3 16:33:20 | 显示全部楼层 来自: 中国安徽合肥
既然技术要求允许焊接:按图纸尺寸裁钢板,长边板厚12,端板厚18,铣或刨钢板四边及坡口(拼接后保证内腔尺寸),焊接后精铣四面。线切割上凸台和下V型槽,然后钻孔攻丝。
 楼主| 发表于 2012-4-3 19:17:57 | 显示全部楼层 来自: 中国广东深圳
前面几位都是高手,谢谢大家的意见。
 楼主| 发表于 2012-4-3 19:19:36 | 显示全部楼层 来自: 中国广东深圳
多向前辈们学习下工艺方面的知识
发表于 2012-4-5 21:47:00 | 显示全部楼层 来自: 中国江苏无锡
此件采用焊接方式备料应保证宽度尺寸100及高度70有充足的加工余量,焊完后以内腔为基准加工100两侧面,再以100两侧(其中一面)为基准加工出底面保证垂直,然后再以底面及加工出顶面台阶保证图示形位尺寸要求,再以顶面两侧台阶为精基准,线切割加工V型槽与宽度100方向平行,剩下来的我想应该自己能搞定了吧,呵呵呵。。。。。
发表回复
您需要登录后才可以回帖 登录 | 注册

本版积分规则


Licensed Copyright © 2016-2020 http://www.3dportal.cn/ All Rights Reserved 京 ICP备13008828号

小黑屋|手机版|Archiver|三维网 ( 京ICP备2023026364号-1 )

快速回复 返回顶部 返回列表