QQ登录

只需一步,快速开始

登录 | 注册 | 找回密码

三维网

 找回密码
 注册

QQ登录

只需一步,快速开始

展开

通知     

查看: 6337|回复: 19
收起左侧

SolidWorks装修自己的新房

[复制链接]
发表于 2012-4-30 22:56:27 | 显示全部楼层 |阅读模式 来自: 中国陕西渭南

马上注册,结识高手,享用更多资源,轻松玩转三维网社区。

您需要 登录 才可以下载或查看,没有帐号?注册

x
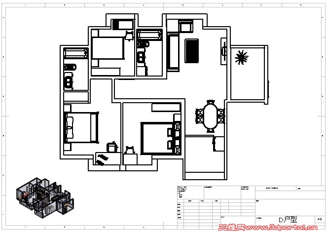
以前常设计机械方面的东西,最近买的新房用SW设计下,欢迎拍砖。
D户型.JPG
D户型-1.JPG

评分

参与人数 1三维币 +3 收起 理由
chenjun520601 + 3 支持!

查看全部评分

发表于 2012-4-30 23:10:45 | 显示全部楼层 来自: 中国江苏常州
得多少银子啊?做的好,等我再买房时,也学学。
发表于 2012-4-30 23:16:00 | 显示全部楼层 来自: 中国四川乐山
楼主的家具是自己画的 还是下载的素材  3 t6 k- ?! V! q1 e8 a# J
能共享一下吗  我也准备自己弄个装修房子图
发表于 2012-5-1 09:34:55 | 显示全部楼层 来自: 中国安徽蚌埠
楼主家的住房面积很大呀,羡慕楼主啊……
: P  ]' A5 P& n* b8 v从画面看画的很不错,就是实际的东东看不清……
发表于 2012-5-1 10:51:13 | 显示全部楼层 来自: 中国江苏泰州
本帖最后由 ZHYJ99 于 2012-5-1 11:18 编辑 4 \3 n( z+ [/ i0 w0 s/ ~

1 u( {7 H! L0 U% B) W! P/ ]) [好像是一层楼,最左边的房间衣服放哪里?
发表于 2012-5-1 13:29:38 | 显示全部楼层 来自: 中国浙江宁波
像以前打游戏里的一个场面……暗黑?
发表于 2012-5-1 17:00:20 | 显示全部楼层 来自: 中国河南三门峡
来个原文件,大家共享一下
发表于 2012-5-2 10:50:01 | 显示全部楼层 来自: 中国湖南长沙
学习学习...
发表于 2012-5-2 14:18:53 | 显示全部楼层 来自: 中国河南洛阳
想不出来这个用SW怎么做?
发表于 2012-5-8 15:52:31 | 显示全部楼层 来自: 中国江西新余
创意无限!不错,值得借鉴!
发表于 2012-5-14 17:16:20 | 显示全部楼层 来自: 中国江苏南京
楼主还是比较有钱的嘛
发表于 2012-5-15 13:22:10 | 显示全部楼层 来自: 中国浙江湖州
楼主太强大了
发表于 2012-5-16 09:07:27 | 显示全部楼层 来自: 中国广东惠州
楼主简单介绍下话的过程!
发表于 2012-5-17 16:25:39 | 显示全部楼层 来自: 中国河北唐山
不错,有时间我也自己规划个自己的家啊!
发表于 2012-5-18 09:57:07 | 显示全部楼层 来自: 中国北京
好像不错  就是感觉太挤了
发表于 2012-5-20 21:29:24 | 显示全部楼层 来自: 中国上海
楼主怎么做的呀
发表于 2012-5-23 19:59:15 | 显示全部楼层 来自: 中国江苏宿迁
我只能说,太强悍了!
发表于 2012-5-25 10:50:39 | 显示全部楼层 来自: 中国上海
楼主创意啊
发表于 2012-5-25 12:49:31 | 显示全部楼层 来自: 中国上海
楼主电脑配置也不错吧?
发表于 2012-5-26 11:54:25 | 显示全部楼层 来自: 中国安徽六安
好像不错的,是用SW设计的么?
发表回复
您需要登录后才可以回帖 登录 | 注册

本版积分规则


Licensed Copyright © 2016-2020 http://www.3dportal.cn/ All Rights Reserved 京 ICP备13008828号

小黑屋|手机版|Archiver|三维网 ( 京ICP备2023026364号-1 )

快速回复 返回顶部 返回列表