QQ登录

只需一步,快速开始

登录 | 注册 | 找回密码

三维网

 找回密码
 注册

QQ登录

只需一步,快速开始

展开

通知     

查看: 5088|回复: 10
收起左侧

[讨论] 油缸缓冲结构

[复制链接]
发表于 2012-5-5 13:03:10 | 显示全部楼层 |阅读模式 来自: 中国江苏无锡

马上注册,结识高手,享用更多资源,轻松玩转三维网社区。

您需要 登录 才可以下载或查看,没有帐号?注册

x
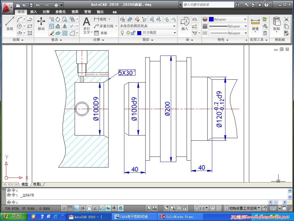
下图是我设计的200油缸的缓冲结构,大家帮我看看这样的结构和配合可以吗,1 q1 o6 B" D/ M; o
' t9 ]+ ^* v( M4 }1 p
如果不用缓冲调节阀,它们之间的间隙要放多大合适。  ^6 c/ g; I$ W4 D  g
" x; O- e5 i/ z+ p
缓冲.JPG
 楼主| 发表于 2012-5-5 14:16:57 | 显示全部楼层 来自: 中国江苏无锡
补充一下,上面的小节流孔是6mm,好像是太小了点。
发表于 2012-5-11 16:15:39 | 显示全部楼层 来自: 中国安徽马鞍山
, ]2 g+ G& k8 I5 h. n% a6 I+ H
会撞缸de ~
发表于 2012-5-17 22:51:07 | 显示全部楼层 来自: 中国四川达州
应该增加调节缓冲速度装置
发表于 2012-5-18 14:15:23 | 显示全部楼层 来自: 中国北京
在螺纹口上加个锥芯调节节流口开口
发表于 2012-5-19 13:05:07 | 显示全部楼层 来自: 中国江苏常州
100的直径应该缓冲效果最好的是公差在30~40丝,那个缓冲的倒角是不是小点(10X5°)更好点?
  o# R" ?, X7 a; n2 G$ n8 B2 j有杆腔端没有缓冲?
2 z8 e/ k# F% g- ?' ?缸底上应该加个启动槽上部是更好?

评分

参与人数 1三维币 +3 收起 理由
9619 + 3 技术讨论

查看全部评分

发表于 2012-7-29 21:35:06 | 显示全部楼层 来自: 中国河南新乡
你这样还是会撞缸的!
发表于 2012-7-30 08:11:32 | 显示全部楼层 来自: 中国广东深圳
他那个螺纹孔里   是有个阀的    相当于单向节流阀   可调的在外面  
发表于 2012-7-30 10:19:58 | 显示全部楼层 来自: 中国湖南衡阳
自己设计油缸的缓冲确实勇气可嘉,但这里面要冒很大的风险,要么缓冲效果不好,要么就会撞缸,还是参考设计比较好。那个缓冲装置最好要有浮动功能,以防活塞受力时径向的跳动。

评分

参与人数 1三维币 +2 收起 理由
9619 + 2 技术讨论

查看全部评分

发表于 2012-7-31 00:30:28 | 显示全部楼层 来自: 美国
http://www.hyzk.cn/news/78_762.html) ~6 ], b! l; i
6 w+ I0 [. ]: l  _
    1、一般液压油缸的试验压力为其额定压力的1.5倍,如果缓冲压力超过此数或缓冲能力不足时,要另外采取缓冲措施。例如采用溢流阎来控制缓冲压力,或采用减速阈、行程阀等来进行缓冲等。3 g3 W" X) W0 q9 d4 Q% S' e* ~7 ~
0 w5 z8 E" B: K5 ]

9 J1 u! q9 F. x6 h9 @7 G# s8 M    2、普通液压油缸缸在工作压力> 10MPa、活塞速度>0.1m/s时,应当采用缓冲装置或其他缓冲办法   w  a, T- I; v  n  X6 K
  c! b4 j2 j- I# U8 ?, f6 b7 I2 ]; s8 t
    3、缸外制动机构,当括塞速度≥4.5 m/s时缸内缓冲机构不可能吸收全部动能,须在缸外加装制动机构,如:  ^& a, D2 k& O
5 ~- n! v7 ?: x% J
    1)外部加装行程开关。当开始进入缓冲阶段时,开关即切断供油,使液压能等于零,但仍可能形成压力脉冲。! p8 {2 ~8 ?8 ?* O0 {+ {3 j
     2)在活塞杆与负载之间加装减振器。7 m$ y8 A0 U, Q* r- r: \
     3)在液压油缸出口加装液控节流阀。3 O1 a) _, X1 t+ A/ U( d

0 V& J# k. J& x- |6 y; g" y  k; L% F4 j& n9 r7 p
    4、可按工作过程对话塞线速度变化的要求,确定缓冲机构的形式,如:
' w& Z9 b% ^: O! K     1)减速过渡过程要求十分柔和,如砂型操作、易碎物品托盘操作、精密磨床进给等,宜选用近似恒减速型缓冲机构如多孔缸筒或多孔柱塞型以及自调节流型。. A* F% U  u$ R  D0 i+ h$ T
     2)减速过程允许微量脉冲,如普通机床粗轧机等,可采用铣槽型、阶梯型缓冲机构。3 c* y( V( ^. H$ u7 g6 W, |
     3)减速过程允许承受一定的脉冲,可采用圆锥型、双哑锥型或圆柱型柱塞的缓冲机构.  n9 Z9 M' v* d6 U. f
, S* a: h1 {* o5 t: x

( t8 c, W2 Y% C$ J: ~    5、快速动作液压油缸应设置缓冲装置。当液压油缸运动速度较快时,由于负载及液压油缸活塞及活塞杆本身的质量较大,故动量很大,在行程终点突然停止时易产生很大的冲击及噪声,这种冲击不仅会引起液压油缸的损坏,而且会引起各类阀、配管及相关机械部件的损坏,具有很大的危害性。为消除这类冲击,可在液压回路中设置相应的元件对液压油缸速度进行控制,也可在液压缸上设置缓冲装置(如固定式或可调式液压油缸缓冲装置等)。
3 `% C1 }7 J8 }* O2 z; N* R $ i0 E5 v5 N1 {8 W

% d0 X: I/ g6 J+ f
! L0 b# h3 N- O0 F% j  [    6、短行程液压油缸不宜用两端缓冲装置。当液压油缸行程较短(小于100mm)时,原则上应采用无缓冲装置的液压油缸。如果非常必要,只能在一个动作方向上放置一个缓冲装置。否则将会导致非缓冲行程太短,甚至没有非缓冲行程.
) ~# a, I7 b% O1 H8 I2 w" A
& r4 |4 E3 s# L; C7 Z: F- b) e. ~( H' g; [% h% _
    7、低速液压油缸不必采用缓冲装置。缓冲装置的作用就是在行程终点减低活塞杆的速度,以免引起冲击。当液压油缸速度较低(小于100mm/s)时,缓冲装置已经失去意义。
; X% o. x* o3 J7 z+ o* c1 ~
  ?' O4 u- t/ t0 n1 A* @% n: X+ w) m6 {4 R" V
    8、液压油缸的缓冲结构中单向阀的通流能力不能太小。当液压油缸缓冲装置设计得不合理时,容易使液压油缸在从有缓冲装置一侧起动时,起动后容易突然停止或后退,这是由于缓冲装置中的单向阀通流能力太弱造成的。
( l9 {; g! T1 Q( s9 k3 d ; Q( L' `# x$ A. z  @. |
     当活塞高速起动时,出于单向阀通流能力有限,不能将缓冲容腔充满油液,使得容腔内出现真空现象,当缓冲柱塞脱离端盖的时候,就会引起活塞突然停止甚至后退现象。待介质容积足够以后,液压油缸才能继续动作。因此,在设计液压油缸缓冲装置时应充分考虑单向阀的通流能力,只有在单向阀的通流能力足够才能避免上述现象的发生。
; G" Q6 ^; M6 u3 R7 l6 ^4 H1 D" v6 J8 a9 ]9 C  J) l
4 y; t- ^2 m' f# m- h+ h! j
以上摘自网络,基本上与我平时使用的油缸缓冲是接近的,也是标准油缸惯用的。
2 ^- N2 ~, ^( W" a) Y: i

评分

参与人数 1三维币 +2 收起 理由
9619 + 2 技术讨论

查看全部评分

发表于 2012-8-29 21:38:29 | 显示全部楼层 来自: 中国河北唐山
楼主可以选用针阀式缓冲,保险些。
发表回复
您需要登录后才可以回帖 登录 | 注册

本版积分规则


Licensed Copyright © 2016-2020 http://www.3dportal.cn/ All Rights Reserved 京 ICP备13008828号

小黑屋|手机版|Archiver|三维网 ( 京ICP备2023026364号-1 )

快速回复 返回顶部 返回列表